Objektdaten
Objektbeschreibung
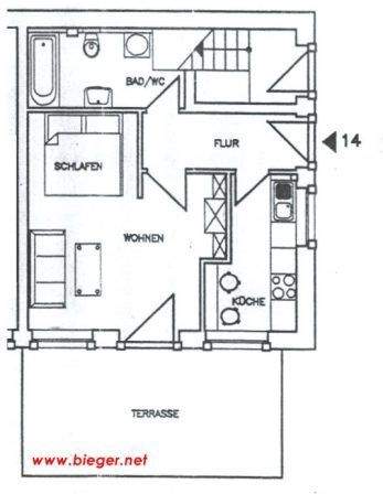
Diese stilvolle 2-Raumwohnung mit ca. 43 m² befindet sich im ersten Obergeschoss und ist in einem sehr gepflegten Zustand. Der Grundriss ist funktionell geschnitten.Nur wenige Minuten von der Innenstadt entfernt, bleiben hier keine Wünsche offen.Empfangen vom mit Laminat ausgelegten Flur geht es gleich links in das Badezimmer der Wohnung. Helle und zeitlose Fliesen, Wandheizkörper und eine Badewanne lassen keine Wünsche offen.Weiter entlang des Flures, erwartet Sie der großzügige Wohn- und Essbereich. Angrenzend befindet sich die offene Küche, welche genügend Platz für eine großzügige Einbauküche bietet. Sehr praktisch ist auch die Abstellkammer direkt im Flurbereich. Das Schlafzimmer ist vom Wohnzimmer, anders als im Grundriss abgebildet, abgetrennt.Eine Gegensprechanlage erhöht den Wohnkomfort. Zur Wohnung gehört ein Kellerabteil und ein Tiefgaragen-Stellplatz.Derzeit wird eine Nettojahreskaltmiete in Höhe von ca. 5.290,80 Euro erzielt.Überzeugen Sie sich selbst und entdecken Sie weitere Highlights!Ähnliche Angebote
So funktioniert es
- Alle neuen Anzeigen matchen wir kostenlos mit Deinen Suchparametern.
- Passende Angebote senden wir Dir in einer E-Mail pro Tag.
- Du kannst auch verschiedene Suchen anlegen und Dich jederzeit abmelden. Mehr dazu




