Objektdaten
Objektbeschreibung
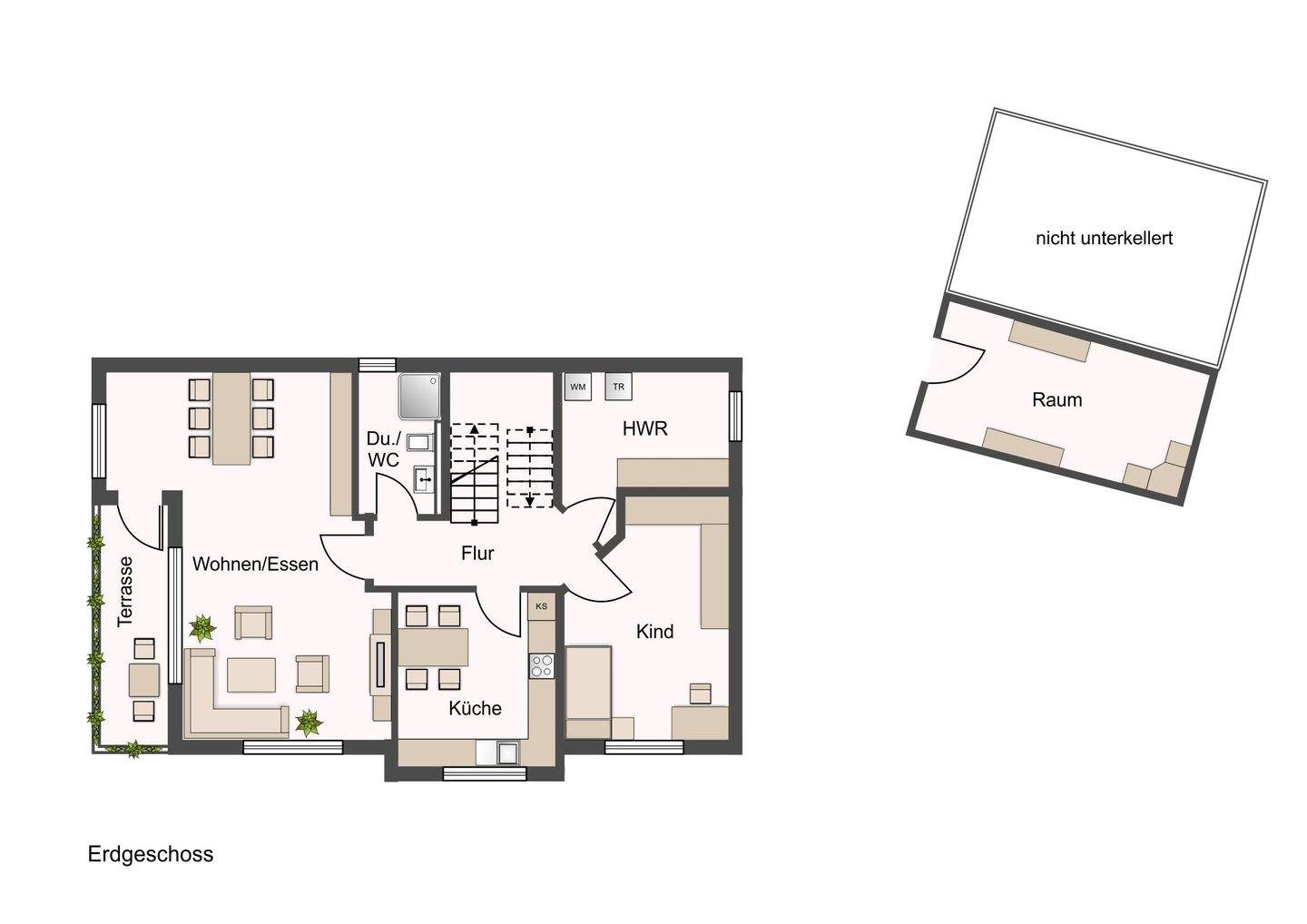
Der Bau des ökologisch hochwertigen Einfamilienhauses wurde im Jahr 2010 begonnen. Mit einer Wohnfläche von 167 m² und insgesamt 5 Zimmern bietet das zweistöckige Gebäude ausreichend Platz für eine Familie. Zwei Parkplätze stehen direkt am Haus zur Verfügung, während die großzügige Grundstücksfläche von 2267 m² genügend Raum für Aktivitäten im Freien bietet.Im Inneren des Hauses befinden sich drei Schlafzimmer und zwei Badezimmer, die modern und funktional eingerichtet sind. Die Küche verfügt über alle notwendigen Einrichtungen und bietet genügend Platz zum Kochen und Essen. Der Wohnbereich ist großzügig gestaltet und lädt zum Entspannen und Verweilen ein. Die Ofenheizung / Kamin sorgt pro Etage für wohlige Wärme in allen Räumen.Das Haus besticht durch seine ruhige Lage im Wald und die gute Anbindung an öffentliche Verkehrsmittel. Einkaufsmöglichkeiten, Schulen und Kindergärten befinden sich in der Nähe und sind bequem zu erreichen. Der große Garten lädt zum Spielen und Entspannen ein und bietet viel Raum für individuelle Gestaltungsmöglichkeiten. Insgesamt handelt es sich um eine ideale Immobilie für eine Familie, die auf der Suche nach einem modernen und komfortablen Zuhause ist.Ähnliche Angebote
So funktioniert es
- Alle neuen Anzeigen matchen wir kostenlos mit Deinen Suchparametern.
- Passende Angebote senden wir Dir in einer E-Mail pro Tag.
- Du kannst auch verschiedene Suchen anlegen und Dich jederzeit abmelden. Mehr dazu




