Objektdaten
Objektbeschreibung
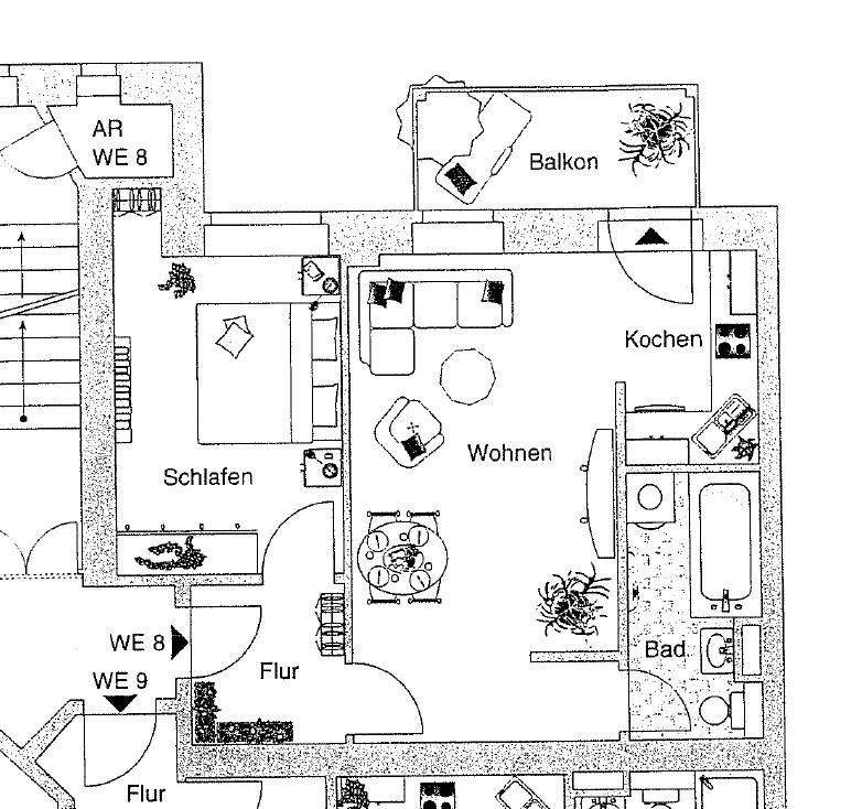
Diese gepflegte Eigentumswohnung befindet sich in attraktiver Lage auf dem Chemnitzer Kaßberg, in einer ruhigen Seitenstraße innerhalb eines schönen Jugendstilhauses. Das Gebäude steht unter Denkmalschutz und wurde ca. 2003 umfassend und aufwendig saniert.Die Wohnung liegt im 2. Obergeschoss und bietet auf ca. 48 m² eine funktionale und gut nutzbare Raumaufteilung mit einem sehr guten Preis-Leistungs-Verhältnis.Wohn- und Schlafzimmer sind zum ruhigen Innenhof ausgerichtet und sorgen dadurch für eine angenehme Wohnatmosphäre. Ein Balkon ergänzt den Wohnkomfort. Das Badezimmer ist gefliest, ebenso die Küche. In den Wohnräumen wurde Laminat verlegt.Zur Wohnung gehören zusätzlich ein Abstellraum auf halber Treppe sowie ein Kellerabteil, welche weiteren praktischen Stauraum bieten.Die Wohnung ist seit März 2013 zuverlässig vermietet und erzielt derzeit eine monatliche Kaltmiete von 288 €. Das monatliche Hausgeld beträgt aktuell 246 €, davon sind etwa 141 € auf den Mieter umlagefähig.Das Mehrfamilienhaus umfasst insgesamt 17 Einheiten. Die Miteigentumsanteile der Wohnung betragen 57,55 / 1.000. Eine dominierende Mehrheit einzelner Eigentümer besteht innerhalb der Eigentümergemeinschaft nicht.Insgesamt handelt es sich um eine gepflegte, langfristig vermietete Wohnung in einer der beliebtesten Wohnlagen von Chemnitz. Durch die solide Vermietung, die attraktive Lage auf dem Kaßberg sowie die überschaubare Eigentümerstruktur eignet sich die Wohnung besonders gut als Kapitalanlage.Die Bilder sind von einer Wohnung mit gleichem Grundriss in einer anderen Etage.Ähnliche Angebote
So funktioniert es
- Alle neuen Anzeigen matchen wir kostenlos mit Deinen Suchparametern.
- Passende Angebote senden wir Dir in einer E-Mail pro Tag.
- Du kannst auch verschiedene Suchen anlegen und Dich jederzeit abmelden. Mehr dazu




