Kaufpreis 845.890 €
Zimmer 6
Größe 178 m²
63165 Mühlheim am Main
Objektdaten
Veröffentlicht am: 15. März 2026
Energieausweis: Liegt bei der Besichtigung vor
Danke! Bitte bestätige Deine E-Mail-Adresse – wir haben Dir soeben eine Mail geschickt.
Es gab ein Problem beim Absenden. Bitte versuche es erneut.
Bitte bestätige Deine E-Mail-Adresse, um Updates zu erhalten.
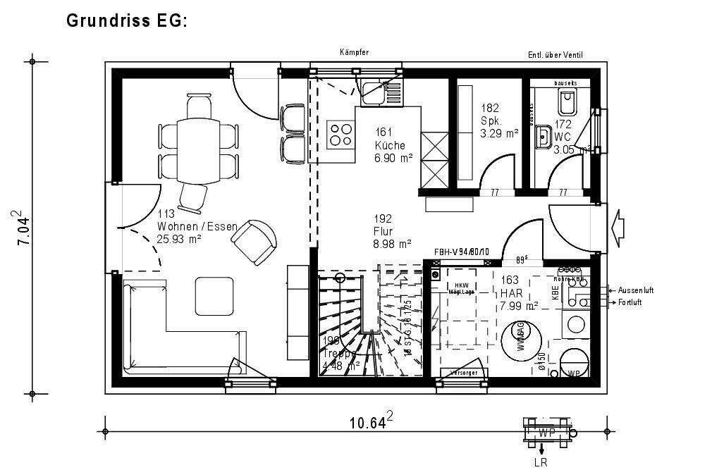
Objektbeschreibung
Dieses projektiertes Einfamilienhaus in Mühlheim am Main bietet Ihnen die Möglichkeit, Ihre ganz persönlichen Wohnträume zu verwirklichen. Mit 6 Zimmern auf einer großzügigen Wohnfläche von 178 m² und einem 645 m² großen Grundstück ist Raum für die ganze Familie vorhanden. Das Haus erstreckt sich über drei Etagen und umfasst 5 Schlafzimmer sowie 2 moderne Badezimmer. Eines der Badezimmer ist mit einer Dusche, einer Wanne und einem Fenster ausgestattet, sodass Sie den Komfort und die Helligkeit genießen können. Dieses Haus entsteht nach Ihren individuellen Wünschen und Vorstellungen, sodass jedes Detail auf Sie zugeschnitten ist. Das inkludierte Dienstleistungspaket "Free Time für Vielbeschäftigte" sorgt dafür, dass der Bauprozess für Sie besonders komfortabel abläuft, da wir alle wichtigen Gewerke wie Trockenbau, Estrich, Sanitär, Heizung und Elektroinstallation für Sie übernehmen.
So funktioniert es
- Alle neuen Anzeigen matchen wir kostenlos mit Deinen Suchparametern.
- Passende Angebote senden wir Dir in einer E-Mail pro Tag.
- Du kannst auch verschiedene Suchen anlegen und Dich jederzeit abmelden. Mehr dazu
Wir haben soeben eine E-Mail mit Deinem Suchauftrag an Dich geschickt. – Klicke in dieser Mail auf den Bestätigungslink und schon geht's los. Prüfe ggf. auch Deinen Spamordner.
Es gab ein Problem beim Absenden Deiner E-Mail-Adresse. Bitte versuche es erneut.
WARNUNG: Bitte bestätige Deine E-Mail-Adresse, um regelmäßige Updates zu erhalten.