Kaufpreis 311.000 €
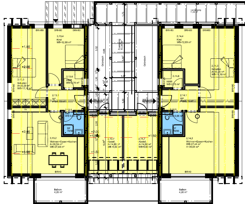
Zimmer 3
Größe 74 m²
18209 Bad Doberan
Objektdaten
Veröffentlicht am: 16. März 2026
Energieausweis: Liegt bei der Besichtigung vor
Danke! Bitte bestätige Deine E-Mail-Adresse – wir haben Dir soeben eine Mail geschickt.
Es gab ein Problem beim Absenden. Bitte versuche es erneut.
Bitte bestätige Deine E-Mail-Adresse, um Updates zu erhalten.
Objektbeschreibung
Ostseenahes leben in Bad Doberan, in hochwertiger Eigentumswohnung Unser Neubauprojekt MFH Kühnemannweg entsteht zurzeit unweit der Ostseebäder Heiligendamm und Kühlungsborn im Baugebiet Kammerhof. Hier errichten wir 16 hochwertige Wohneinheiten in 2 Wohnhäusern. Die beiden Häuser erhalten eine Putzfassade, Aufzug, großzügige Balkonanlagen und werden durch einen Treppenhausturm und einen Laubengang verbunden.Die liebevoll gestalteten Details im Haus sowie die angrenzenden Schuppen ergänzen das Gesamtbild und laden genauso zum Wohnen und Verweilen ein wie die teilüberdachten Terrassen und Balkone.Das besondere Wohnklima verdanken wir der ökologischen Dämmung und der diffusionsoffenen Wandkonstruktion, welche alle MAKRA-Häuser als umfassendes Detail vereint.Seien Sie gespannt auf die detailverliebte Ausstattung und erleben Sie das gesunde und angenehme Wohnklima in Zusammenarbeit mit den neuesten Dämmvorschriften, der innovativen Luftwärmepumpe und freuen Sie sich auf ein ganz besonderes Objekt. Als ortsansässiges Unternehmen in Kröpelin, mit unserer mehr als 30-jährigen Erfahrung im Bereich der Zimmerei und des Hochbaus, garantieren wir Ihnen, höchste Qualität und natürlich unsere Freude am Bauen, denn "Planen, Bauen und Leben mit Holz", ist unser Motto seit 1993.Wir freuen uns auf Ihre Fragen und sind gerne für eine Besichtigung da.Ihr MAKRA-BAU Team.
So funktioniert es
- Alle neuen Anzeigen matchen wir kostenlos mit Deinen Suchparametern.
- Passende Angebote senden wir Dir in einer E-Mail pro Tag.
- Du kannst auch verschiedene Suchen anlegen und Dich jederzeit abmelden. Mehr dazu
Wir haben soeben eine E-Mail mit Deinem Suchauftrag an Dich geschickt. – Klicke in dieser Mail auf den Bestätigungslink und schon geht's los. Prüfe ggf. auch Deinen Spamordner.
Es gab ein Problem beim Absenden Deiner E-Mail-Adresse. Bitte versuche es erneut.
WARNUNG: Bitte bestätige Deine E-Mail-Adresse, um regelmäßige Updates zu erhalten.