Kaufpreis 1.328.000 €
Zimmer 6
Größe 189 m²
79111 Freiburg im Breisgau
Objektdaten
Veröffentlicht am: 17. März 2026
Energieausweis: Liegt bei der Besichtigung vor
Danke! Bitte bestätige Deine E-Mail-Adresse – wir haben Dir soeben eine Mail geschickt.
Es gab ein Problem beim Absenden. Bitte versuche es erneut.
Bitte bestätige Deine E-Mail-Adresse, um Updates zu erhalten.
Objektbeschreibung
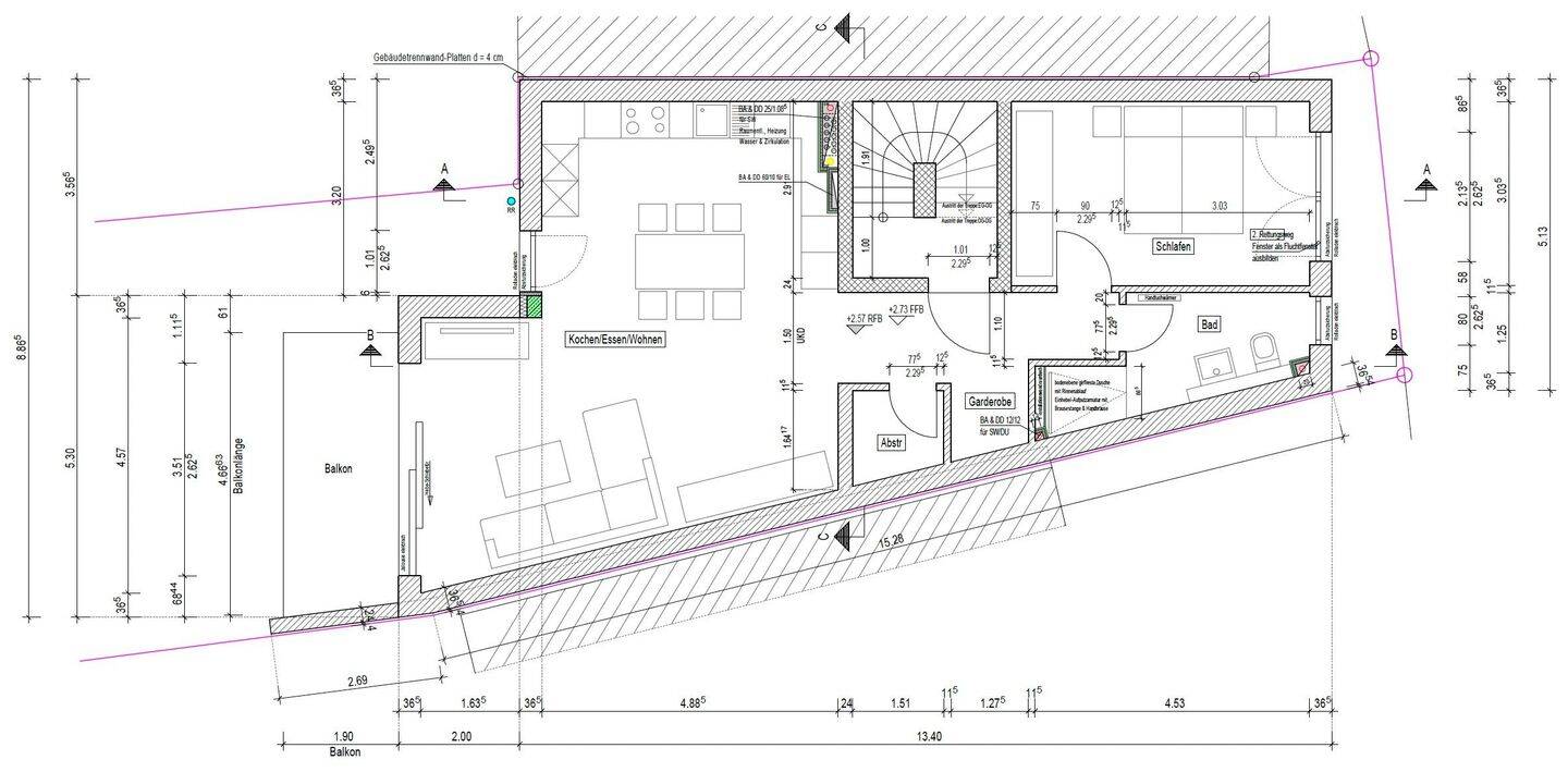
Dieses moderne KfW-55 Townhaus in Freiburg-St. Georgen ist ein wahrer Schatz und besticht durch die perfekte Ausnutzung einer Baulücke im Herzen des Viertels. Hier heißt es: einfach den Schlüssel umdrehen und einziehen! Das schlüsselfertig angebotene Haus bietet dank zweier separater Wohneinheiten reichlich Platz und Flexibilität - ideal für ein Mehrgenerationenhaus oder um das Leben mit guten Freunden oder der Familie zu teilen.Die erste Wohnung umfasst ca. 89,06 m² und erstreckt sich über das Erdgeschoss und das Obergeschoss. Im Erdgeschoss finden Sie ein gemütliches Schlafzimmer sowie ein separates WC. Das Obergeschoss beherbergt ein weiteres Schlafzimmer, ein großzügiges Wohn- und Esszimmer mit Zugang zu einem einladenden Balkon, ein helles Tageslichtbad mit Dusche und einen praktischen Abstellraum.Die zweite Wohnung im Dachgeschoss und Dachspitz mit einer Fläche von ca. 99,46 m² strahlt Gemütlichkeit aus und verfügt über zwei Schlafzimmer. Der offene Wohn- und Essbereich bietet Zugang zu einem weiteren Balkon und lädt zu entspannten Abenden ein. Ein Tageslichtbad mit Dusche und ein Abstellraum runden das Raumangebot ab.Beide Wohnungen teilen sich einen gemeinschaftlichen Garten - der perfekte Ort für gesellige Nachmittage oder ruhige Morgenstunden. Jedem Wohnbereich ist ein eigener Außenstellplatz zugeordnet, und im Kellergeschoss gibt es für jede Einheit ein eigenes Kellerabteil sowie Anschlüsse für Waschmaschine und Trockner im gemeinschaftlichen Technikraum.Dieses Townhaus ist ein Wohlfühlort, der den Charme von St. Georgen mit modernem Wohnkomfort verbindet und sich ideal für all jene eignet, die das städtische Leben mit einem Hauch von Exklusivität genießen möchten.Der Kaufpreis für das schlüsselfertige Haus beträgt 1.328.000,- € zuzüglich der Stellplätze, die jeweils mit 21.000,- € berechnet werden. Sonderwünsche hinsichtlich der Ausstattung können auf Wunsch berücksichtigt werden, wobei eventuell entstehende Mehrkosten vom Käufer zu tragen sind.Für weitere Fragen oder eine persönliche Beratung kontaktieren Sie uns gerne.
So funktioniert es
- Alle neuen Anzeigen matchen wir kostenlos mit Deinen Suchparametern.
- Passende Angebote senden wir Dir in einer E-Mail pro Tag.
- Du kannst auch verschiedene Suchen anlegen und Dich jederzeit abmelden. Mehr dazu
Wir haben soeben eine E-Mail mit Deinem Suchauftrag an Dich geschickt. – Klicke in dieser Mail auf den Bestätigungslink und schon geht's los. Prüfe ggf. auch Deinen Spamordner.
Es gab ein Problem beim Absenden Deiner E-Mail-Adresse. Bitte versuche es erneut.
WARNUNG: Bitte bestätige Deine E-Mail-Adresse, um regelmäßige Updates zu erhalten.