Objektdaten
Objektbeschreibung
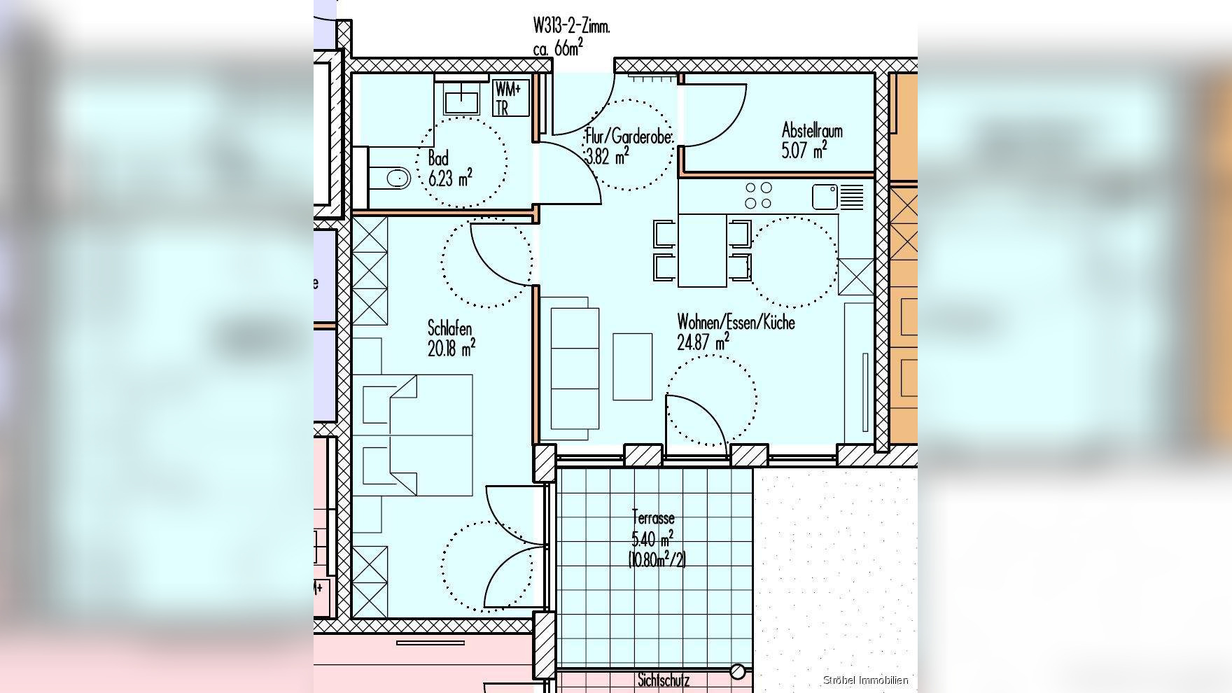
Unser Generationenpark "Cosmea" ist etwas ganz Besonderes. Er bietet allen Komfort, den Sie für ein selbstbestimmtes Leben brauchen, egal ob zu zweit oder alleine. Moderne und gelungene Wohnungsgrundrisse bieten viel Platz, um den individuellen Bedürfnissen des Einzelnen genügend Raum zu geben. Neben den Wohnungen sind auch Apartments in zwei Wohngruppen sowie Gewerberäume in die Anlage integriert.So funktioniert es
- Alle neuen Anzeigen matchen wir kostenlos mit Deinen Suchparametern.
- Passende Angebote senden wir Dir in einer E-Mail pro Tag.
- Du kannst auch verschiedene Suchen anlegen und Dich jederzeit abmelden. Mehr dazu




