Kaufpreis 249.000 €
Zimmer 3
Größe 99 m²
04347 Leipzig
Objektdaten
Veröffentlicht am: 17. März 2026
Energieausweis: Liegt bei der Besichtigung vor
Danke! Bitte bestätige Deine E-Mail-Adresse – wir haben Dir soeben eine Mail geschickt.
Es gab ein Problem beim Absenden. Bitte versuche es erneut.
Bitte bestätige Deine E-Mail-Adresse, um Updates zu erhalten.
Objektbeschreibung
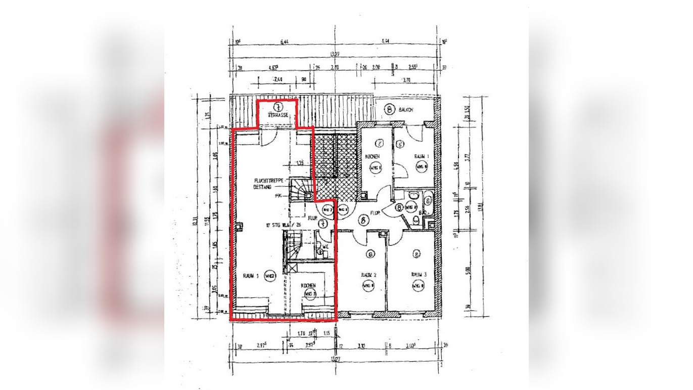
Die charmante Dachgeschosswohnung befindet sich in einem gepflegten Altbau aus dem Jahr 1900. Sie erstreckt sich über eine Wohnfläche von 89,7 m² (Grundfläche der Wohnung beträgt 121 m²) auf der vierten Etage eines vierstöckigen Gebäudes. Die Wohnung verfügt über zwei Balkone, einen Keller und ist derzeit vermietet.Beim Betreten der Wohnung gelangt man in den geräumigen Wohnbereich, der viel Platz für gemütliche Stunden bietet. Die offene Küche ist modern ausgestattet und lädt zum Kochen und Genießen ein. Das Schlafzimmer bietet ausreichend Platz für ein großes Bett und einen Kleiderschrank. Ein weiteres Zimmer kann entweder als Arbeitszimmer oder Gästezimmer genutzt werden. Das Badezimmer verfügt über eine Badewanne, eine Dusche und ein Waschbecken. Beide Balkone bieten genügend Platz für einen Tisch und Stühle, um das schöne Wetter zu genießen.Die Lage der Wohnung ist ideal, denn sie befindet sich in einer ruhigen Straße mit guter Anbindung an öffentliche Verkehrsmittel und Einkaufsmöglichkeiten. Trotzdem ist die Umgebung grün und bietet die Möglichkeit für entspannte Spaziergänge. Der Zustand des Gebäudes und der Wohnung ist sehr gepflegt, sodass man sich hier sofort wohlfühlen kann. Insgesamt bietet die Dachgeschosswohnung mit ihren drei Zimmern und den beiden Balkonen ein ansprechendes und komfortables Zuhause für Singles oder Paare.Ausstattung:-Kernsanierter Altbau (1998)-Wohnung über 2 Ebenen (Maisonette)-2 Balkone-moderner Grundriss-Kaltmiete p.a. 11.760 €" frisch, engagiert, solide " Die Künne Immobilien Gruppe ist professioneller Dienstleister der Immobilienbranche und steht Ihnen in den Bereichen Projektentwicklung, Verkauf, Vermietung, Verwaltung und Facility Management zur Verfügung. Für weitere Informationen und Einblicke besuchen Sie unsere Homepage: www.kuenne-gruppe.de Sie wollen Ihre Immobilie verkaufen? Egal ob Mehrfamilien- oder Einfamilienhaus, Eigentumswohnung, Grundstück oder Neubau- bzw. Bauträgerprojekt. Wir vermitteln kompetent, transparent und zügig Ihre Immobilie, bundesweit.
So funktioniert es
- Alle neuen Anzeigen matchen wir kostenlos mit Deinen Suchparametern.
- Passende Angebote senden wir Dir in einer E-Mail pro Tag.
- Du kannst auch verschiedene Suchen anlegen und Dich jederzeit abmelden. Mehr dazu
Wir haben soeben eine E-Mail mit Deinem Suchauftrag an Dich geschickt. – Klicke in dieser Mail auf den Bestätigungslink und schon geht's los. Prüfe ggf. auch Deinen Spamordner.
Es gab ein Problem beim Absenden Deiner E-Mail-Adresse. Bitte versuche es erneut.
WARNUNG: Bitte bestätige Deine E-Mail-Adresse, um regelmäßige Updates zu erhalten.