Historisches Postamt in Kappeln – Ihre Projektidee für eines der prägnantesten Gebäude im Zentrum

Kaufpreis 650.000 €
Zimmer 27
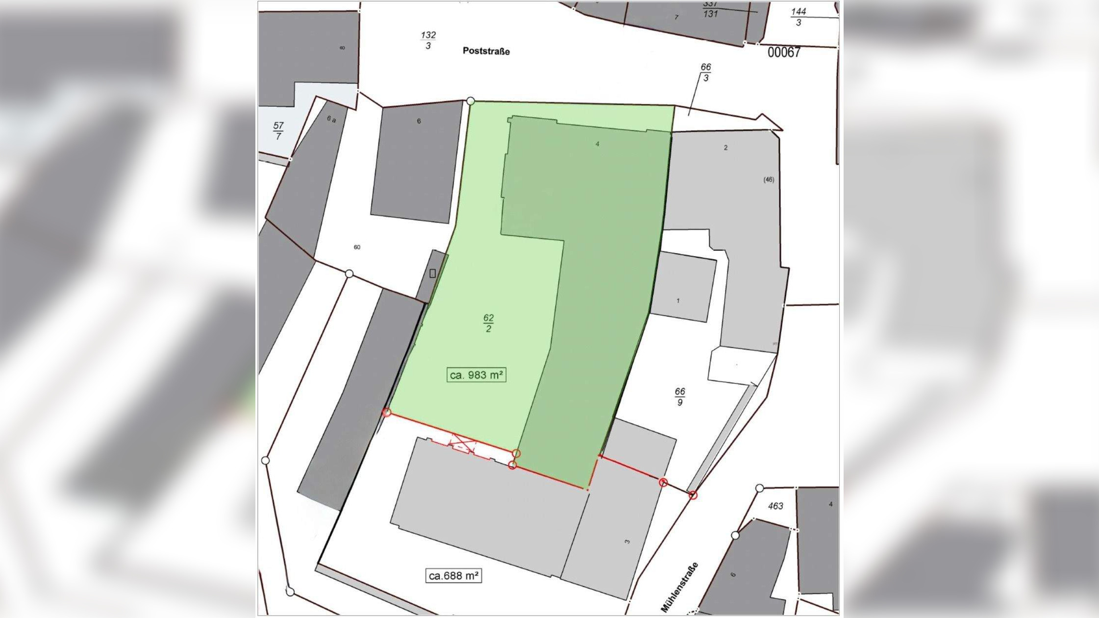
Größe 1217 m²
24376 Kappeln

Objektdaten

Veröffentlicht am: 17. März 2026
Energieausweis: Liegt bei der Besichtigung vor
  • Objektbeschreibung

    Inmitten der Altstadt und Fußgängerzone von Kappeln, steht dieses beeindruckende Wohn- und Geschäftshaus mit Geschichte. Das 1897 errichtete, denkmalgeschützte Hauptgebäude besticht durch repräsentative Lage und vielseitiges Nutzungspotential auf mehreren Flächen. Das zweigeschossige Hauptgebäude mit ausgebautem Dachgeschoss wurde ehemals als Postamt genutzt und ist vollständig unterkellert. Ergänzt wird es durch einen eingeschossigen, unterkellerten Zwischenbau aus dem Jahr 1971, der als Lagerfläche diente. Beide Gebäudeteile sind miteinander verbunden und bilden gemeinsam eine Gesamtmietfläche von rund 1.217 m² auf einem 983 m² großen Grundstück.Die direkte Lage innerhalb einer Ortsgestaltungssatzung eröffnet gestalterische Spielräume, erfordert jedoch auch Rücksichtnahme auf das historische Stadtbild. Das zweigeschossige Hauptgebäude wurde 1897 als Backsteinbau errichtet; die Fassadengestaltung folgt einer aufwändigen Gliederung und beinhaltet bauliche Zierelemente wie Eck- und Giebelrisalite, Blendgiebel und Giebeltürmchen.Das Gebäude hat städtebaulichen Wert und wurde auf die Liste der Kulturdenkmale gesetzt, steht also unter Denkmalschutz. Hinsichtlich Ihrer baulichen Überlegungen bleibt festzuhalten, dass das Ensemble dem Bebauungsplan Nr. 34 "Innenstadt" unterliegt und sich somit in einem als Mischgebiet ausgewiesenen Bereich befindet.Die Lage in der Poststraße gilt als eine der zentralsten und bestfrequentierten Lagen Kappelns. Das Haus ist in Kappeln und über die Grenzen hinaus bekannt. Die Nähe zur Schlei, zu gastronomischen Einrichtungen, Einzelhandel sowie kulturellen Angeboten macht diese Adresse besonders reizvoll.Das Objekt weist an verschiedenen Stellen Instandsetzungsbedarf auf, insbesondere im Bereich des Kellers sowie unter dem Dach, wo Nässeschäden vorhanden sind. Gleichzeitig bietet die Immobilie eine solide bauliche Grundlage für ein attraktives Konzept.Diese Immobilie wird zu einem attraktiven Kaufpreis von 650.000€ an Käufer (provisionsfrei) veräußert.Wenn Sie auf der Suche nach einem geschichtsträchtigen Gebäude mit Entwicklungspotenzial und herausragender Lage sind, dann freuen wir uns auf Ihre Anfrage und ein persönliches Gespräch. Wir stehen in engem Austausch mit unserem Auftraggeber und möchten Kaufinteressenten aktiv an die Hand nehmen. Gern erläutern wir alle Details zur Immobilie, geben auf Wunsch Auskunft zur derzeitigen Nutzung, Einblick in einen umfangreichen Unterlagenbestand und ermöglichen gern eine gemeinsame Begehung.
    Nach oben scrollen