Kaufpreis 1.480.000 €
Zimmer 8
Größe 260 m²
14482 Potsdam
Objektdaten
Veröffentlicht am: 17. März 2026
Energieausweis: Liegt bei der Besichtigung vor
Danke! Bitte bestätige Deine E-Mail-Adresse – wir haben Dir soeben eine Mail geschickt.
Es gab ein Problem beim Absenden. Bitte versuche es erneut.
Bitte bestätige Deine E-Mail-Adresse, um Updates zu erhalten.
Objektbeschreibung
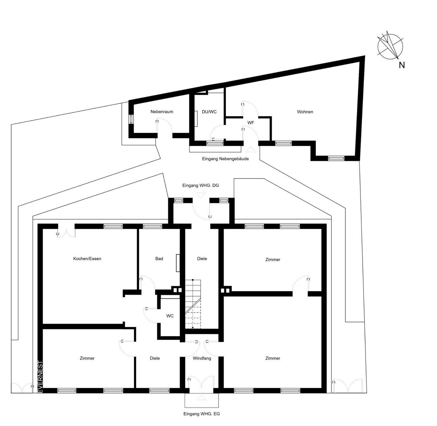
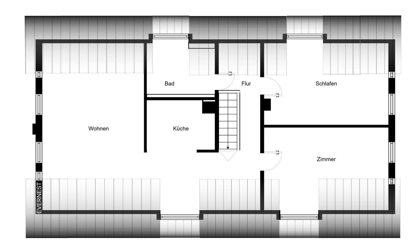
Historic weaver's house in Potsdam-Babelsberg - stylishly renovated with three residential units and flexible usage potentialThis listed weaver's house in Potsdam-Babelsberg is in exceptionally good condition following extensive renovation and careful modernization. The combination of historic charm and contemporary living comfort makes this property very special.The outdoor facilities have been completely redesigned and blend harmoniously into the overall picture. Clinker brick paths, well-maintained lawns, and two newly constructed gate systems underline the high-quality overall impression.There are three rented units:On the ground floor is a spacious, self-contained apartment with a living area of approx. 120 m². It has a separate entrance from the street and offers an elegant living style with high-quality porcelain stoneware flooring. Particularly noteworthy is the preservation of the original interior doors, which remain true to the historic character of the house.The attic houses a modern 3-room apartment with approx. 100 m² of living space and separate access from the quiet courtyard area. The apartment is equipped to a high standard - including a stylish bathroom with granite and marble elements and elegant parquet flooring. The hallway also impresses with elegant granite slabs.The ensemble is complemented by a solid outbuilding in the courtyard. Here, a separate apartment with a spacious room of approx. 40 m² and a heated adjoining room of approx. 6 m² has been created. This unit has previously been used commercially as an office and offers a wide range of possible uses.It would be structurally feasible to combine the residential units in the main house, which would allow the building to be used as a spacious single-family home with plenty of space and charm. This creates the opportunity to realize an extraordinary home with historical substance and modern amenities-in one of Potsdam's most sought-after locations.This property combines history, quality, and flexibility-a stylish retreat with development potential in the popular Potsdam-Babelsberg district.
So funktioniert es
- Alle neuen Anzeigen matchen wir kostenlos mit Deinen Suchparametern.
- Passende Angebote senden wir Dir in einer E-Mail pro Tag.
- Du kannst auch verschiedene Suchen anlegen und Dich jederzeit abmelden. Mehr dazu
Wir haben soeben eine E-Mail mit Deinem Suchauftrag an Dich geschickt. – Klicke in dieser Mail auf den Bestätigungslink und schon geht's los. Prüfe ggf. auch Deinen Spamordner.
Es gab ein Problem beim Absenden Deiner E-Mail-Adresse. Bitte versuche es erneut.
WARNUNG: Bitte bestätige Deine E-Mail-Adresse, um regelmäßige Updates zu erhalten.