Kaufpreis 449.000 €
Zimmer 3
Größe 85 m²
21502 Geesthacht
Objektdaten
Veröffentlicht am: 17. März 2026
Frei ab: 1. September 2026
Baujahr: 2025
Energieausweis: Liegt bei der Besichtigung vor
Danke! Bitte bestätige Deine E-Mail-Adresse – wir haben Dir soeben eine Mail geschickt.
Es gab ein Problem beim Absenden. Bitte versuche es erneut.
Bitte bestätige Deine E-Mail-Adresse, um Updates zu erhalten.
Objektbeschreibung
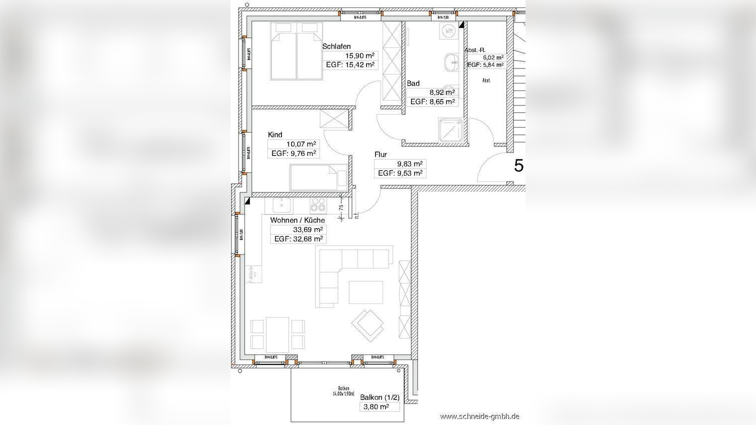
. Etagenwohnung WE5 .In unmittelbarer Nähe zum Geesthachter Zentrum entsteht mit diesem Projekt eine moderne Wohnanlage mit 7 Eigentumswohnungen. Das Gebäude wird nach den aktuellen Vorgaben und Richtlinien des GEG (Gebäudeenergiegesetz) errichtet.Die angebotene Wohnung (Whg. 5) befindet sich im 1. Obergeschoss, besticht mit ihrem durchdachten Grundriss und eignet sich optimal für Eigennutzer und Kapitalanleger gleichermaßen. Ein nach Süden ausgerichteter Balkon mit einer Grundfläche von ca. 7,60 m² bietet einen herrlichen Platz zum Verweilen in der Sonne. Die genaue Aufteilung der Wohnung entnehmen Sie bitte dem beigefügten Grundriss.Die Wohnfläche beträgt ca. 86 m² und verteilt sich auf das Wohnzimmer mit offenem Kochbereich, Schlafzimmer, Kinder-/ Arbeitszimmer Duschbad mit gefliesten Duschbereich und Abstellraum. Die Räume erhalten jeweils einzeln regulierbare Fußbodenheizungen, welche für eine gleichmäßige und angenehme Wärme sorgen. Dreifach verglaste Fenster in Kombination mit elektrischen Rollläden (in Süd-Ausrichtung) unterstreichen die energetische Bauweise.Bei der Bemusterung haben Sie zurzeit noch die besondere Möglichkeit, aktiv an der Gestaltung der Innenausstattung mitzuwirken. Wählen Sie ganz nach Ihrem Geschmack z.B. Bodenbeläge, Innentüren, Sanitärobjekte und weitere Ausstattungsdetails aus. So entsteht ein Zuhause, das genau Ihren Vorstellungen entspricht und Ihre persönliche Note trägt.Das Haus erhält sowohl einen Glasfaser- und Kabel-TV-Anschluss. Anschlüsse für TV und eine Netzwerkverkabelung sind in allen Wohn- und Schlafräumen vorhanden und können zentral über ein verbautes Patchfeld angesteuert werden.Ein zusätzlicher Abstellraum (Allgemein) bietet Platz für das abstellen von Fahrrädern. Ein (teils) freistehender PKW-Stellplatz steht ebenso zur Verfügung und ist für einen Kaufpreis von € 12.500,-- zusätzlich zu erwerben.Weitere Einzelheiten entnehmen Sie bitte den weiteren Ausführungen.
So funktioniert es
- Alle neuen Anzeigen matchen wir kostenlos mit Deinen Suchparametern.
- Passende Angebote senden wir Dir in einer E-Mail pro Tag.
- Du kannst auch verschiedene Suchen anlegen und Dich jederzeit abmelden. Mehr dazu
Wir haben soeben eine E-Mail mit Deinem Suchauftrag an Dich geschickt. – Klicke in dieser Mail auf den Bestätigungslink und schon geht's los. Prüfe ggf. auch Deinen Spamordner.
Es gab ein Problem beim Absenden Deiner E-Mail-Adresse. Bitte versuche es erneut.
WARNUNG: Bitte bestätige Deine E-Mail-Adresse, um regelmäßige Updates zu erhalten.