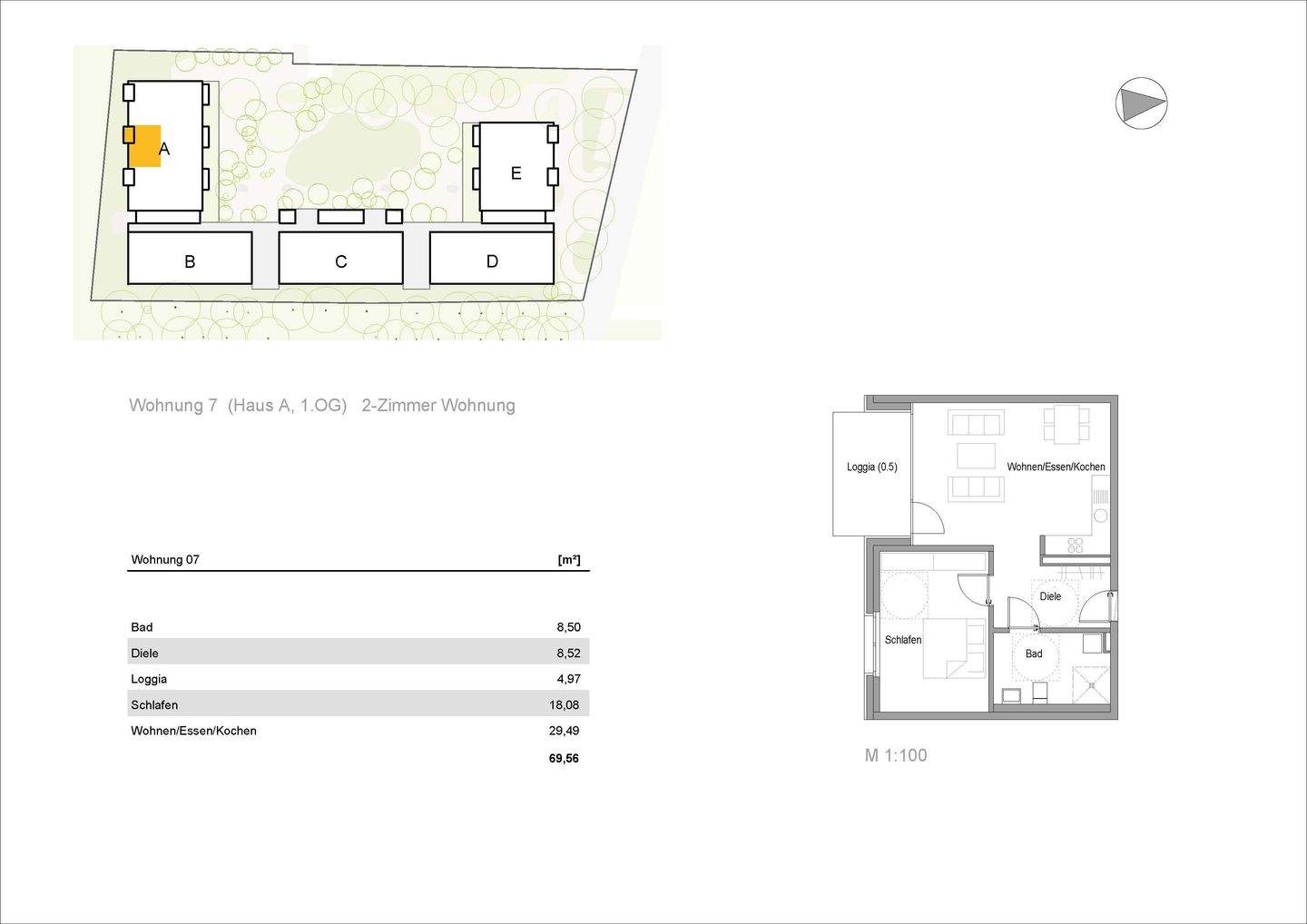
Haus A, W-07 Ihr neues Zuhause im Quartier am Schlosspark

Kaufpreis 441.300 €
Zimmer 2
Größe 69 m²
78166 Donaueschingen

Objektdaten

Veröffentlicht am: 17. März 2026
Energieausweis: Liegt bei der Besichtigung vor
Neu

Über ähnliche Angebote direkt informiert werden

  • Objektbeschreibung

    Kurzbeschreibung Komfortabel Wohnen im Haus A15 barrierefrei und uneingeschränkt mit dem Rollstuhl nutzbare Wohnungen nach DIN 18040-2 R mit Tagespflegeeinrichtung im Erdgeschoss. Objekt Das Quartier am Schlosspark bietet komfortables und selbstbestimmtes Wohnen für Senioren durch barrierefreie oder rollstuhlgerechte Wohnungen, eine Tagespflege und passende Gewerbeeinheiten und Serviceleistungen. Das U-förmige Ensemble besteht aus fünf über Laubengänge miteinander verbundenen Gebäuden, die Sitznischen und Platz für Fahrräder oder Gehhilfen bieten. Den Mittelpunkt bildet der Quartiersgarten - eine großzügig angelegte Grünfläche mit Spiel- und Sportmöglichkeiten für Senioren. Gemeinschaftliche Aktivitäten fördern soziale Kontakte und ein unterstützendes Miteinander. naturenergie legt Wert darauf, dass Bewohnerinnen und Bewohner - unabhängig von individuellen Bedürfnissen - ein erfülltes Leben führen können. Ein Hausmeisterdienst sorgt für die Pflege der Anlage und übernimmt den Winterdienst. Die Architektur kombiniert moderne Formen mit warmen Farben und Holzelementen für ein natürliches Flair. Die offenen Arkaden und Laubengänge ermöglichen eine gute Orientierung und witterungsgeschützte Erschließung. Das Bauvorhaben umfasst zwei Abschnitte: Der erste Abschnitt mit den Häusern A, B und C wird im Frühjahr 2028 fertiggestellt und beinhaltet 41 Wohnungen sowie die Tagespflege. Im Anschluss erfolgt dann der zweite Bauabschnitt mit den Häusern D und E. Das gesamte Quartier wird Anfang 2031 fertiggestellt sein. Die Gebäude werden nach den Richtlinien des aktuell gültigen Gebäudeenergiegesetzes (GEG) erstellt und werden an das lokale Wärmenetz der Brigachschiene GmbH & Co. KG angeschlossen und mit Wärme versorgt. Über die Mindestanforderung des GEGs werden die Anforderungen der KfW-Bank an den Förderstandard Klimafreundliche Wohngebäude erfüllt. Damit gelten die energetischen Anforderungen des Effizienzgebäudes-40-Standards.

    So funktioniert es

    • Alle neuen Anzeigen matchen wir kostenlos mit Deinen Suchparametern.
    • Passende Angebote senden wir Dir in einer E-Mail pro Tag.
    • Du kannst auch verschiedene Suchen anlegen und Dich jederzeit abmelden. Mehr dazu
    Nach oben scrollen