Attraktives Sanierungsprojekt im Denkmal – Renditechance im Sanierungsgebiet Magdeburg

Kaufpreis 900.000 €
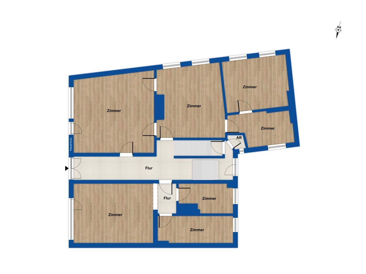
Zimmer 30
Größe 600 m²
39104 Magdeburg

Objektdaten

Veröffentlicht am: 17. März 2026
Energieausweis: Liegt bei der Besichtigung vor
  • Objektbeschreibung

    Das hier angebotene Mehrfamilienhaus wurde im Jahr ca. 1860 errichtet und befindet sich im Sanierungsgebiet der Stadt Magdeburg. Es handelt sich um ein denkmalgeschütztes Gebäude mit einer Wohnfläche von ca. 600 m² auf einem Grundstück von ca. 173 m². Das Haus ist voll unterkellert und verfügt über insgesamt 30 Zimmer, die sich auf mehrere Etagen verteilen.Die Immobilie befindet sich in einem modernisierungsbedürftigen Zustand und erfordert eine umfassende Sanierung. Dabei bietet sie großes Potenzial, um nach erfolgter Modernisierung wieder in neuem Glanz zu erstrahlen. Hohe Decken und alte Türen sind noch erhalten und verleihen dem Gebäude seinen besonderen Charakter.Durch die Lage im Sanierungsgebiet bestehen unter Umständen attraktive Fördermöglichkeiten sowie steuerliche Vergünstigungen für Sanierungsmaßnahmen. Die denkmalgerechte Instandsetzung kann zudem im Rahmen der geltenden Denkmalschutzrichtlinien unterstützt werden.Das Gebäude liegt in einem Bereich Magdeburgs, der sich derzeit in einer Phase aktiver städtebaulicher Aufwertung befindet. In der Umgebung finden sich zahlreiche sanierte Altbauten, wodurch das Viertel zunehmend an Attraktivität gewinnt. Einkaufsmöglichkeiten, öffentliche Verkehrsmittel, Schulen und kulturelle Einrichtungen sind gut erreichbar und tragen zu einer hohen Wohn- und Lebensqualität bei.Das Objekt eignet sich ideal für Investoren, Bauträger oder Liebhaber historischer Bausubstanz, die den Charme vergangener Zeiten bewahren und gleichzeitig modernen Wohnraum schaffen möchten. Mit einer sorgfältigen Sanierung kann dieses Haus zu einem architektonischen Schmuckstück werden, das Geschichte und Gegenwart auf einzigartige Weise verbindet.
    Nach oben scrollen