Wohnen am Hanauer Platz in Mannheim

Kaufpreis 827.000 €
Zimmer 4
Größe 127 m²
68305 Mannheim

Objektdaten

Veröffentlicht am: 18. März 2026
Baujahr: 2026
Energieausweis: Liegt bei der Besichtigung vor
Neu

Über ähnliche Angebote direkt informiert werden

  • Objektbeschreibung

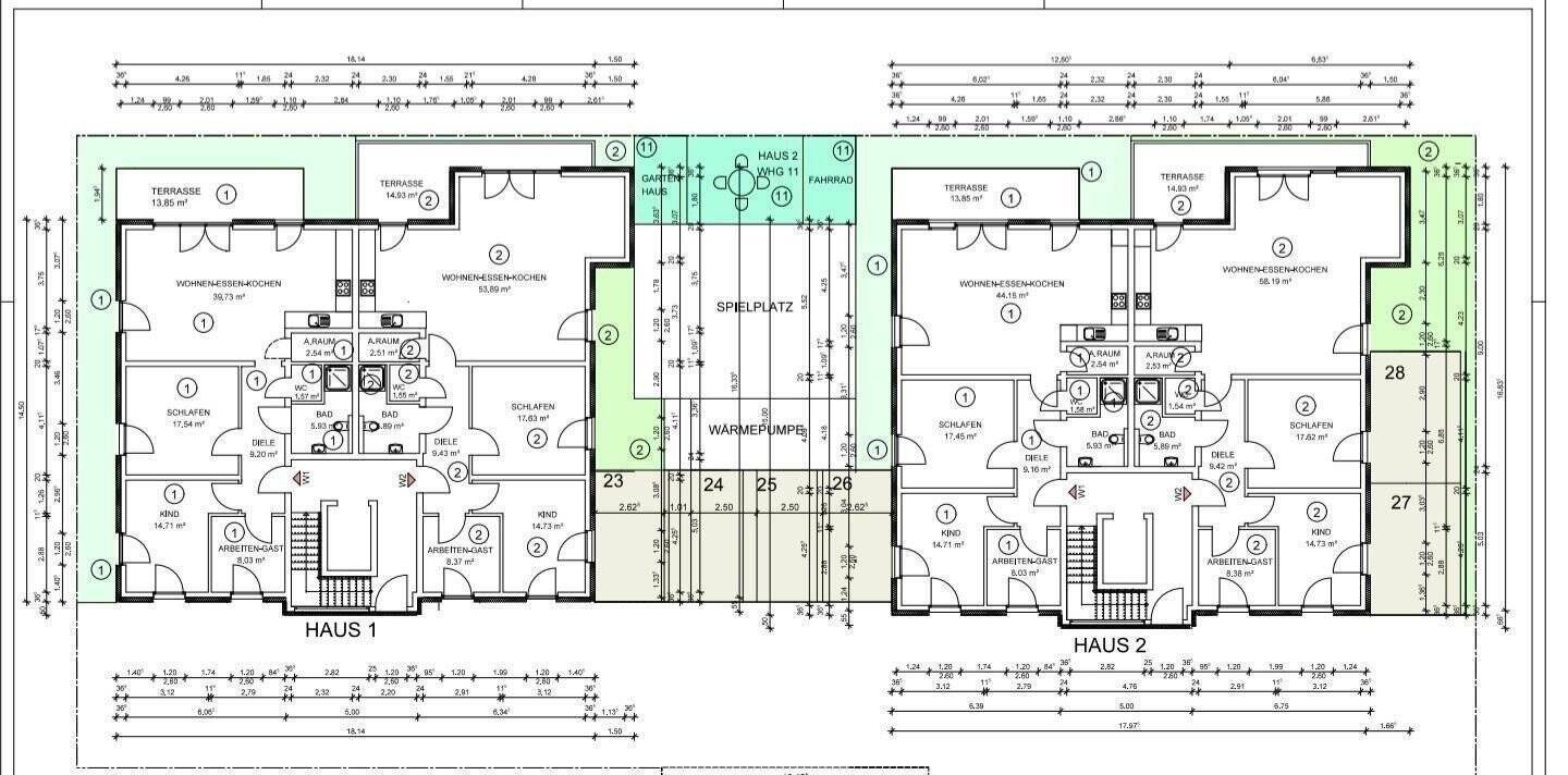
    Am Hanauer Platz in Mannheim entstehen zwei Mehrfamilienhäuser mit jeweils 11 Eigentumswohnungen, die Größen von etwa 106 bis 210 m² bieten.Die modernen Grundrisse gewährleisten in jeder Wohnung ein hohes Maß an Wohnqualität: Egal ob die Wohnungen in den oberen Etagen, die durch ihre großzügige Raumaufteilung überzeugen, oder die Erdgeschoss-Wohnungen mit eigenem Garten. Auch die Penthouse-Wohnungen mit rundläufigen Dachterrassen bieten zusätzlichen Komfort. Alle Ebenen sind bequem mit dem Aufzug erreichbar.Ausstattung im Überblick: • Energieeffizienzhaus nach EnEV • Effiziente Luftwärmepumpe • Photovoltaikanlage • Großzügig dimensionierte Aufzüge von der Tiefgarage in jedes Geschoss • Individuell steuerbare Fußbodenheizung in jedem Raum • Größtenteils bodentiefe Fenster • Dreischeiben-Wärmeschutzverglasung Ug 0,5 • Elektrische Rollläden. • Balkon (mit Ganzglasgeländer) oder Terrasse in jeder Wohnung • Alle Wohnungen mit Gäste-WC • Armaturen und Sanitärausstattung namhafter Hersteller • Begehbare bodengleich geflieste Dusche • Handtuchheizkörper im Bad • Sprechanlage mit Videomonitor • Wünsche können berücksichtigt werden • Wohnfläche 106m² - 210m² mit 4-6 Zimmern

    Ähnliche Angebote

    So funktioniert es

    • Alle neuen Anzeigen matchen wir kostenlos mit Deinen Suchparametern.
    • Passende Angebote senden wir Dir in einer E-Mail pro Tag.
    • Du kannst auch verschiedene Suchen anlegen und Dich jederzeit abmelden. Mehr dazu
    Nach oben scrollen