Kaufpreis 1.600.000 €
Zimmer 5
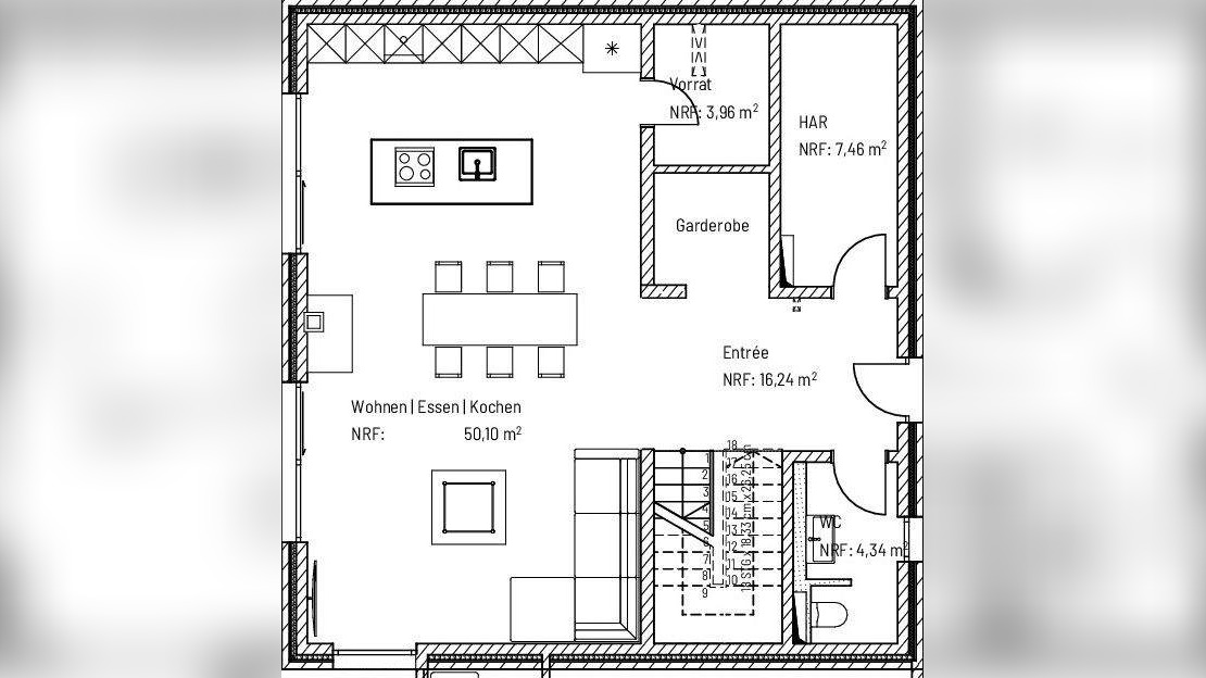
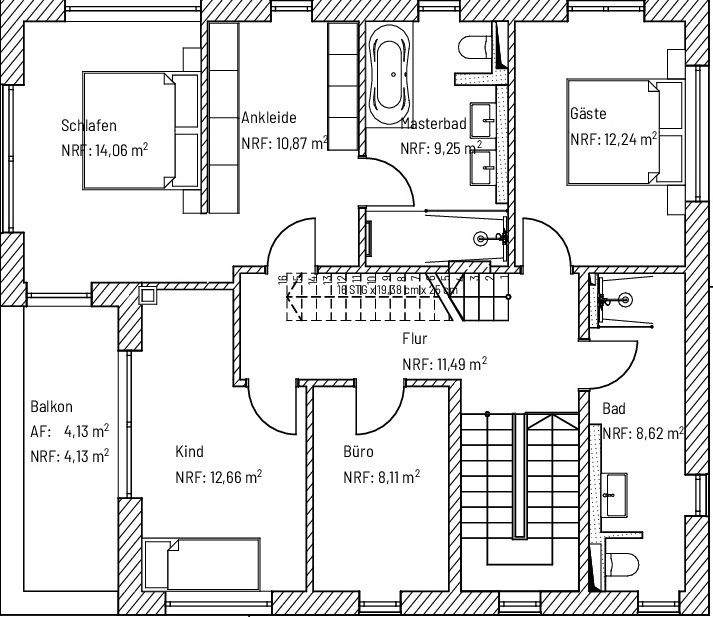
Größe 215 m²
04103 Leipzig
Objektdaten
Veröffentlicht am: 18. März 2026
Energieausweis: Liegt bei der Besichtigung vor
Danke! Bitte bestätige Deine E-Mail-Adresse – wir haben Dir soeben eine Mail geschickt.
Es gab ein Problem beim Absenden. Bitte versuche es erneut.
Bitte bestätige Deine E-Mail-Adresse, um Updates zu erhalten.
Objektbeschreibung
Ihre eigene Insel mitten in der Stadt - detailverliebt, modern und gleichermaßen perfekt für junge Familien, Paare und Individualisten. Zum Verkauf steht eine schlüsselfertige Stadtvilla mit einer Wohnfläche von ca. 215,3 m² in unmittelbarer Nähe zum Leipziger Stadtzentrum. Hierbei formen hoher Standard und Moderne die bestmögliche Symbiose für ihr Wohlbefinden. Das insgesamt 291,67 m²-große Grundstück befindet sich im hinteren Teil der Inselstraße 17a. Die Zuwegung ist über die gemeinsame Hofdurchfahrt des Vorderhauses und entsprechende Wegerechte gesichert.Geplant ist das Bauprojekt in folgendem Umfang:Das lichtdurchflutete Haus soll zwei Etagen, 5 Zimmer, eine Garage sowie eine sonnige Dachterrasse erhalten, welche zum Verweilen einlädt. Im gesamten Wohnbereich gibt es eine moderne Fußbodenheizung, in den Bädern zudem noch Heizkörper welche als Handtuchtrockner genutzt werden können. Zum Wärme-, Schall- und Sichtschutz erhalten alle Fenster und Fenstertüren in den Außenwänden elektrisch angetriebene Rollläden. Sie können Ihr neues Zuhause individuell in Eigenleistung nach Ihren Vorstellungen gestalten oder wir werden in Sachen Innenraum für Sie aktiv! Starke Leistungspakete lassen keine Wünsche offen:Paket "Wand und Decke". Reinigung von Wand- und Deckenflächen. Teilspachtelung von Wand- und Deckenflächen. Anbringung von Malervlies an Wand und Deckenflächen. Grundierung von Wand- und Deckenflächen. Streichen von Wand- und Deckenflächen mit einer Silikat-Innenwandfarbe; Farbton weiß ungetöntGesamtpreis zzgl. zum Kaufpreis 20.000,00 € Brutto.Paket "Böden". Lieferung und Verlegung von Industrie-Hochkantlamellenparkett, Eiche 10 mm, geölte Oberfläche. Lieferung und Verlegung von Sockelleisten, Cube 58x16 mm in Eiche. Angebot gilt für alle Räume ohne FliesenbelagGesamtpreis zzgl. zum Kaufpreis 20.000,00 € Brutto.Natürlich bringen wir Ihnen das Projekt auch gern in unserem Firmensitz in Leipzig näher. Vereinbaren Sie hierzu mit einem unserer Kollegen einen Termin. Wir freuen uns auf Sie!" frisch, engagiert, solide " Die Künne Immobilien Gruppe ist professioneller Dienstleister der Immobilienbranche und steht Ihnen in den Bereichen Projektentwicklung, Verkauf, Vermietung, Verwaltung und Facility Management zur Verfügung. Für weitere Informationen und Einblicke besuchen Sie unsere Homepage: www.kuenne-gruppe.de Sie wollen Ihre Immobilie verkaufen? Egal ob Mehrfamilien- oder Einfamilienhaus, Eigentumswohnung, Grundstück oder Neubau- bzw. Bauträgerprojekt. Wir vermitteln kompetent, transparent und zügig Ihre Immobilie, bundesweit.
So funktioniert es
- Alle neuen Anzeigen matchen wir kostenlos mit Deinen Suchparametern.
- Passende Angebote senden wir Dir in einer E-Mail pro Tag.
- Du kannst auch verschiedene Suchen anlegen und Dich jederzeit abmelden. Mehr dazu
Wir haben soeben eine E-Mail mit Deinem Suchauftrag an Dich geschickt. – Klicke in dieser Mail auf den Bestätigungslink und schon geht's los. Prüfe ggf. auch Deinen Spamordner.
Es gab ein Problem beim Absenden Deiner E-Mail-Adresse. Bitte versuche es erneut.
WARNUNG: Bitte bestätige Deine E-Mail-Adresse, um regelmäßige Updates zu erhalten.