Geradezu unbezogen gut.

Kaufpreis 1.325.000 €
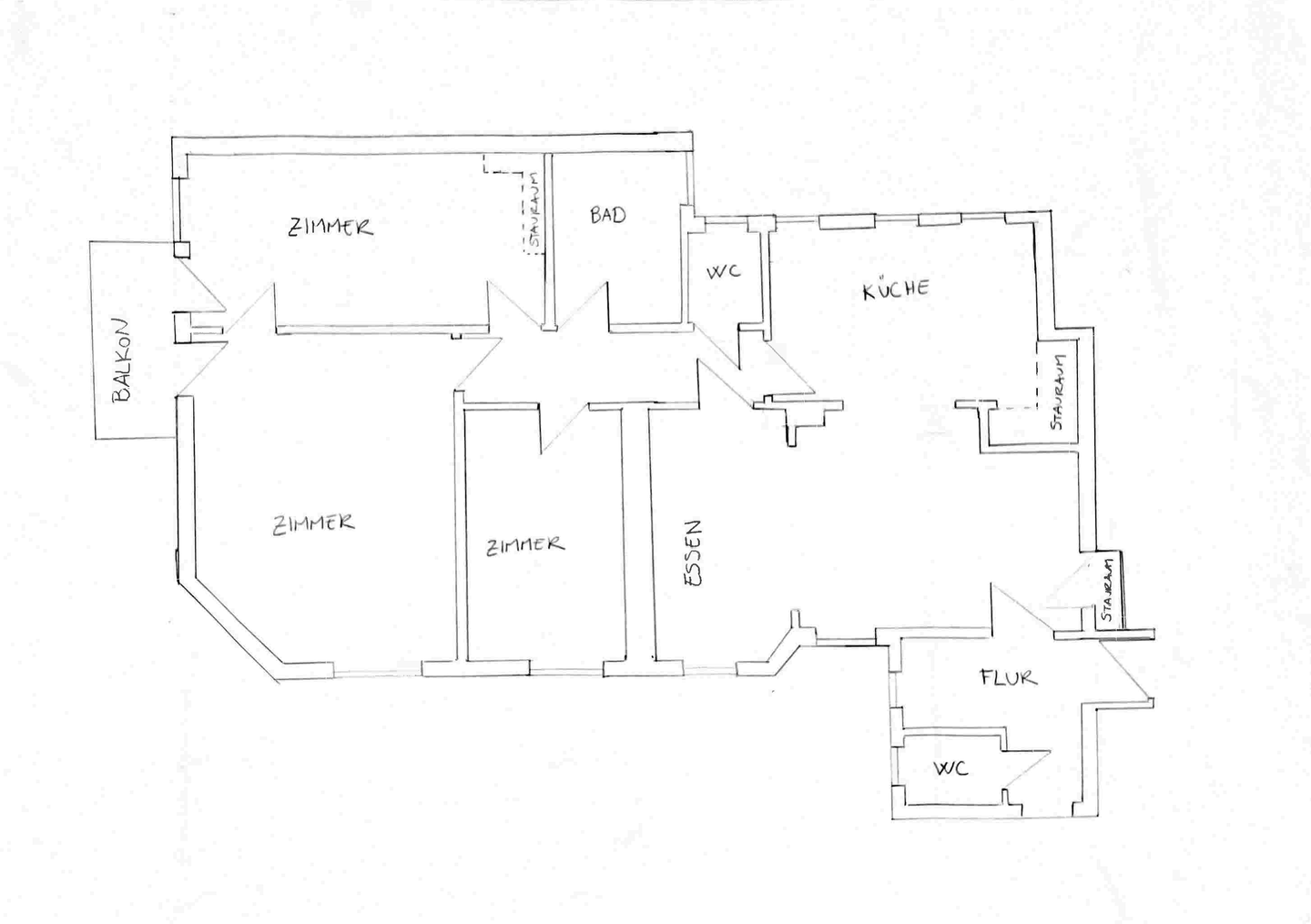
Zimmer 3
Größe 116 m²
22605 Hamburg

Objektdaten

Veröffentlicht am: 18. März 2026
Energieausweis: Liegt bei der Besichtigung vor
Neu

Über ähnliche Angebote direkt informiert werden

  • Objektbeschreibung

    Dieser individuelle Neubau mit 5 Wohnungen und hochwertiger Architektur im Herzen von Othmarschen. Durch die direkte Nachbarschaft zum Jenischpark und der beliebten Waitzstraße ist die Lage unvergleichlich. Das ca. 1.169 m² große Grundstück wird von Landschaftsarchitekten gestaltet und bietet den perfekten Ort für schöne und erholsame Momente - sonnige Stunden auf der Terrasse oder dem Balkon genießen Sie hier mit Blick ins Grüne.

    Ähnliche Angebote

    So funktioniert es

    • Alle neuen Anzeigen matchen wir kostenlos mit Deinen Suchparametern.
    • Passende Angebote senden wir Dir in einer E-Mail pro Tag.
    • Du kannst auch verschiedene Suchen anlegen und Dich jederzeit abmelden. Mehr dazu
    Nach oben scrollen