Objektdaten
Objektbeschreibung
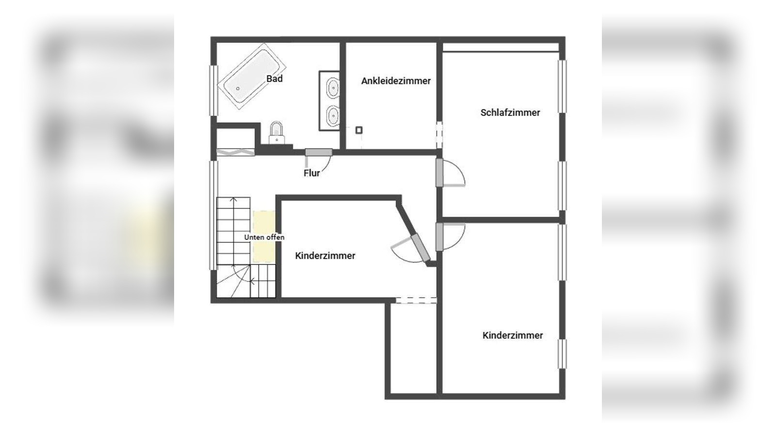
Willkommen in Ihrem neuen Zuhause! Auf 138 m2 erwartet Sie ein durchdachtes Wohnkonzept. Im Erdgeschoss begrüßt Sie ein einladender Flur, von dem nicht nur der großzügige Wohn-Essbereich mit offener Küche abgeht, sondern auch ein modernes Bad mit Dusche. Der angrenzende, lichtdurchflutete Wintergarten lädt zum Entspannen ein. Im Obergeschoss erwarten Sie drei vielseitige Zimmer und ein stilvolles Bad mit freistehender Wanne. Eine Einliegerwohnung im Nebengebäude bietet flexible Möglichkeiten - Büro, Gäste oder Vermietung. Die integrierte Garage und Werkstatt schaffen praktischen Stauraum. Das weitläufige Grundstück grenzt an ein offenes Feld und verspricht Ruhe in naturnaher Lage. Entdecken Sie Ihr neues Kapitel!. Ein perfektes Zuhause für Ihre Familie!So funktioniert es
- Alle neuen Anzeigen matchen wir kostenlos mit Deinen Suchparametern.
- Passende Angebote senden wir Dir in einer E-Mail pro Tag.
- Du kannst auch verschiedene Suchen anlegen und Dich jederzeit abmelden. Mehr dazu




