Kaufpreis 75.000 €
Zimmer 2
Größe 26 m²
78144 Schramberg
Objektdaten
Veröffentlicht am: 18. März 2026
Baujahr: 1978
Energieausweis: Liegt bei der Besichtigung vor
Danke! Bitte bestätige Deine E-Mail-Adresse – wir haben Dir soeben eine Mail geschickt.
Es gab ein Problem beim Absenden. Bitte versuche es erneut.
Bitte bestätige Deine E-Mail-Adresse, um Updates zu erhalten.
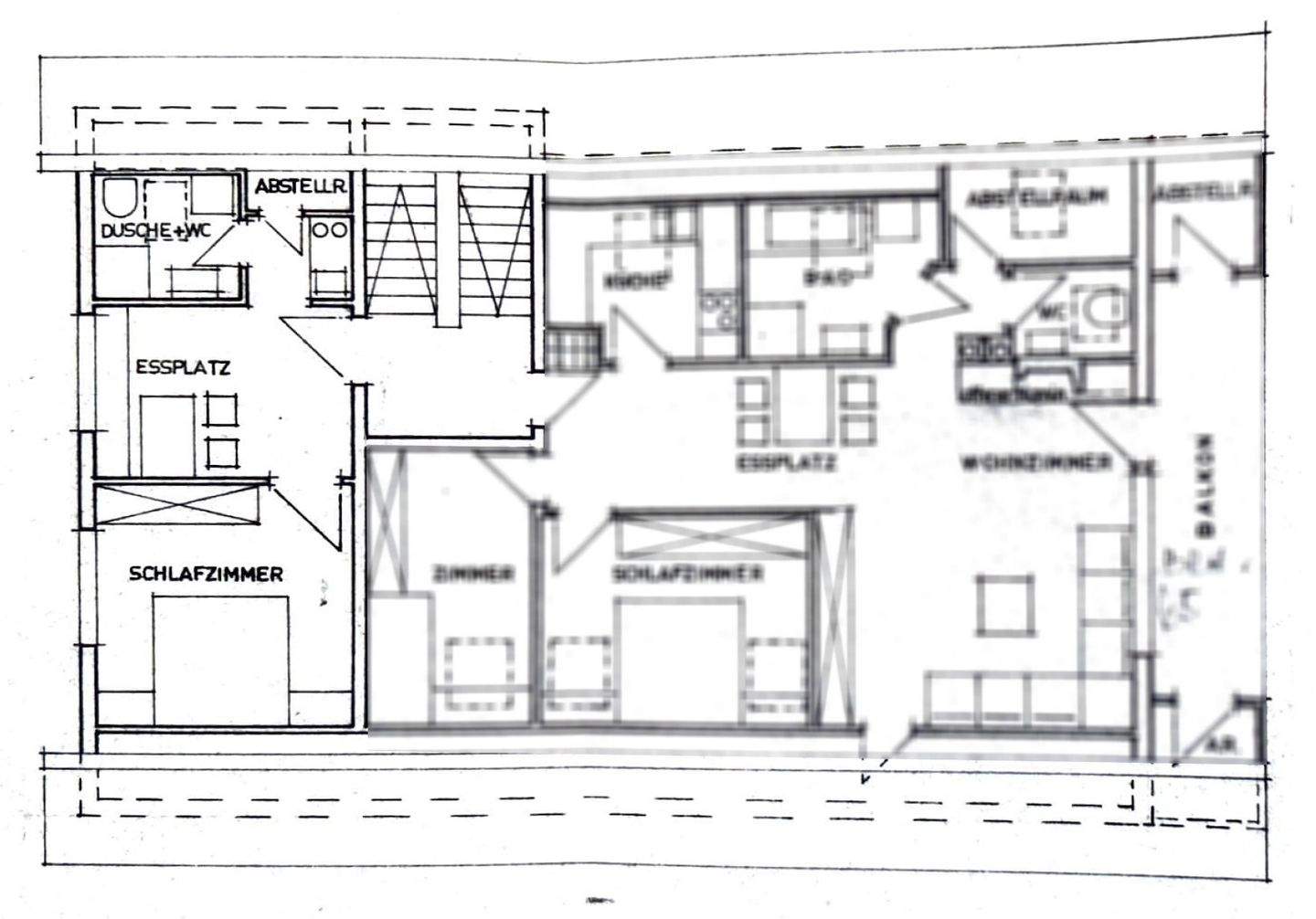
Objektbeschreibung
Diese ansprechende 2-Zimmer-Wohnung befindet sich in einem gepflegten Mehrfamilienhaus, das im Jahr 1979 erbaut wurde. Mit einer Wohnfläche von 26 m² eignet sie sich für Singles oder als Pendlerwohnung. Die Wohnanlage ist gepflegt und liegt am Waldrand. Das Haus wurde von der Eigentümerschaft gut gepflegt. So wurden im Jahr 2023 die Fenster erneuert und 2024 die Zentralheizung.Die lichtdurchfluteten Zimmer schaffen eine angenehme Wohnatmosphäre und ermöglichen eine optimale Nutzung des vorhandenen Platzes. Die Wohnung verfügt über ein gemütliches Schlafzimmer, einen Essplatz, ein Badezimmer mit Badewanne und WC und einer Küche mit vorhandenen Anschlüssen.Sie befindet sich im Dachgeschoss eines ruhigen Wohnhauses, das insgesamt drei Geschosse umfasst. Dies sorgt für eine angenehme Nachbarschaft und eine ruhige Wohnlage. Ein Stellplatz gehört ebenfalls zur Wohnung und bietet zusätzlichen Komfort.Die Wohnung eignet sich sehr gut zum Selbstbezug oder auch als Ferienimmobilie, da es nur 5 Minuten bis zum Premiumwanderweg, dem Freibad oder im Winter zu den Loipen sind. Mit dieser Immobilie haben Sie die Möglichkeit, im Eigentum zu wohnen, statt Miete zu bezahlen. Mit dem "Baustein Immobilie" können Sie sich eine langfristige und wertsteigernde Altersvorsorge aufbauen. Und das ohne weitere Sanierungsmaßnahmen, da die Immobilie, wie bereits erwähnt über eine neue Heizung und neue Fenster verfügt.Einziehen und wohlfühlen!Diese Wohnung könnte zusammen mit der auf dem selben Stock liegenden 3- Zimmer-Wohnung, Objekt Nr. 3006 erworben werden.Dann würden Ihnen auf einer Etage5 Zimmer und 99m² Wohnfläche zur Verfügung stehen. Dies bietet Ihnen ausreichend Platz für die Familie.
So funktioniert es
- Alle neuen Anzeigen matchen wir kostenlos mit Deinen Suchparametern.
- Passende Angebote senden wir Dir in einer E-Mail pro Tag.
- Du kannst auch verschiedene Suchen anlegen und Dich jederzeit abmelden. Mehr dazu
Wir haben soeben eine E-Mail mit Deinem Suchauftrag an Dich geschickt. – Klicke in dieser Mail auf den Bestätigungslink und schon geht's los. Prüfe ggf. auch Deinen Spamordner.
Es gab ein Problem beim Absenden Deiner E-Mail-Adresse. Bitte versuche es erneut.
WARNUNG: Bitte bestätige Deine E-Mail-Adresse, um regelmäßige Updates zu erhalten.