Erstbezug in Citynaher Wohnlage – hochwertige 2 Zimmer Wohnung mit Balkon

Warmmiete 1.079 €
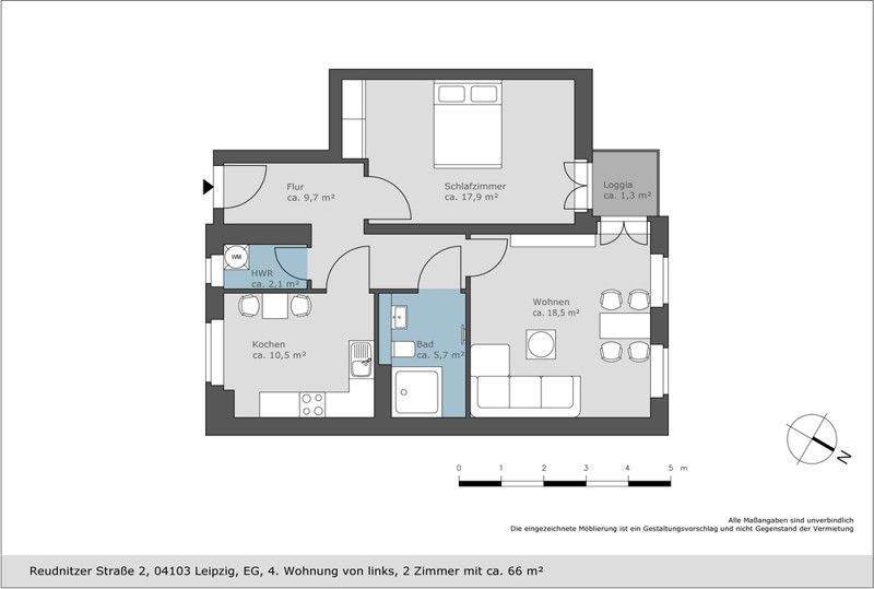
Zimmer 2
Größe 65 m²
04103 Leipzig

Objektdaten

Veröffentlicht am: 18. März 2026
Nebenkosten: 93 €
Kaltmiete 890 €
Baujahr: 2025
Energieausweis: Liegt bei der Besichtigung vor
Neu

Über ähnliche Angebote direkt informiert werden

  • Objektbeschreibung

    Genießen Sie die Vorzüge einer exklusiven Neubau-Wohnung im Herzen von Leipzig. Die Räume sind lichtdurchflutet, die Fußbodenheizung sorgt für ein angenehmes Raumklima, das moderne Badezimmer mit Dusche und weißen Marken-Sanitärobjekten überzeugt ebenso mit Stil wie das Echtholz-Parkett. Ein weiteres Highlight: der Balkon.Für Besichtigungsanfragen wenden Sie sich bitte schriftlich über die jeweilige Anzeige an uns.Sie haben Fragen zur Wohnung? Gerne können Sie unseren Vermieter Herrn Mattheis unter Tel. 0172 / 31 33 091 kontaktieren.

    Ähnliche Angebote

    So funktioniert es

    • Alle neuen Anzeigen matchen wir kostenlos mit Deinen Suchparametern.
    • Passende Angebote senden wir Dir in einer E-Mail pro Tag.
    • Du kannst auch verschiedene Suchen anlegen und Dich jederzeit abmelden. Mehr dazu
    Nach oben scrollen