Objektdaten
Objektbeschreibung
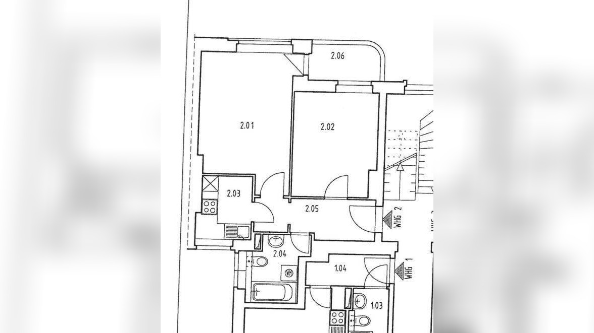
Architektur & EnsembleDie Parkwohnanlage Lindenhof wurde zwischen 1931 und 1936 errichtet. Adolf Stein prägte das Ensemble als Vertreter der Bauhausarchitektur maßgeblich. Gesamtanlage und Einzelgebäude stehen unter Denkmalschutz, was den historischen Charakter und die städtebauliche Bedeutung sichert.GebäudeDas angebotene Mehrfamilienhaus wurde 2005 umfassend saniert und umfasst 4 Etagen inkl. Erdgeschoss mit insgesamt 11 Wohneinheiten. Den Bewohnern steht ein Fahrradraum zur Verfügung.Die Wohneinheit (WE 02, Erdgeschoss)Grundriss & Ausrichtung: EG-Lage; Fenster zum begrünten InnenhofBad: Tageslichtbad mit BadewanneHeizung: Hausversorgung über Gas-Zentralheizung; in der Wohnung KompaktheizkörperInnenzustand: entspricht dem Stand der Sanierung (Baujahr der Sanierung 2005); keine Innenfotos verfügbarVermietung & WirtschaftlichesVermietet seit: gekündigtAktuelle Kaltmiete: Wohnung ist gekündigt zum 01.02.2026Hausgeld (ab 2026): 320,- €, davon 186,- € umlagefähigInstandhaltungsrücklage (Stand 31.12.2024): 66.242,21 € gesamt, 5.429,87 € der WE 02 zugeordnetDenkmalschutz / EnergiehinweisAufgrund des Denkmalschutzes gelten Sonderregelungen; bei denkmalgeschützten Gebäuden ist ein Energieausweis regelmäßig entbehrlich (gesetzliche Ausnahmen beachten).Ähnliche Angebote
So funktioniert es
- Alle neuen Anzeigen matchen wir kostenlos mit Deinen Suchparametern.
- Passende Angebote senden wir Dir in einer E-Mail pro Tag.
- Du kannst auch verschiedene Suchen anlegen und Dich jederzeit abmelden. Mehr dazu




