Interessante Investitionschance: vermietete Altbauwohnung in Berlin- Mariendorf

Kaufpreis 149.000 €
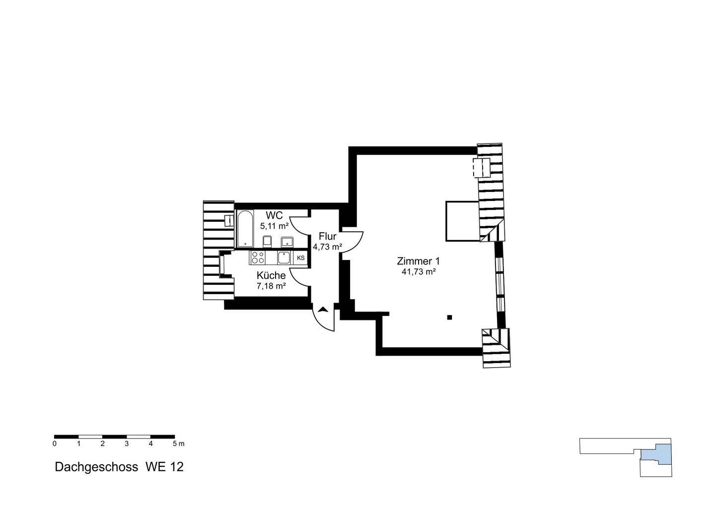
Zimmer 1
Größe 58 m²
12109 Berlin

Objektdaten

Veröffentlicht am: 18. März 2026
Energieausweis: Liegt bei der Besichtigung vor
Neu

Über ähnliche Angebote direkt informiert werden

  • Objektbeschreibung

    Dieser charmante Altbau aus dem Jahr 1905 beherbergt 13 Wohneinheiten. Darunter 10 vermietete, eine bezugsfreie und zwei freiwerdende Einheiten, ideal für Eigennutzer und Kapitalanleger. Die Wohnflächen reichen von ca. 51 m² bis ca. 95 m², verteilt auf 1 - 3 Zimmer. Sie begeistern mit gepflegten Dielenböden sowie charmanten Holzkassettentüren. Großzügige Fenster fluten die Räume mit natürlichem Licht und schaffen eine einladende Atmosphäre. Klimaanlagen bieten zusätzlichen Komfort, und einige Apartments sind mit Loggien, Abstellkammern und Tageslichtbädern ausgestattet. Im Erdgeschoss ergänzt eine charmante Gewerbeeinheit das Angebot, mit einer Fläche von rund 56 m². Besonders hervorzuheben ist der unausgebaute Dachboden, der Potenzial für zwei weitere Wohneinheiten mit Flächen von ca. 45 m² und ca. 131 m² bietet. Das gepflegte Gemeinschaftseigentum beeindruckt mit einem kunstvollen Eingangsbereich, dessen Wandfliesen mit floralen Jugendstil-Reliefs und Decken mit Stuckelementen verziert sind. Ein kürzlich neu verputzter Innenhof rundet das Angebot ab.

    Ähnliche Angebote

    So funktioniert es

    • Alle neuen Anzeigen matchen wir kostenlos mit Deinen Suchparametern.
    • Passende Angebote senden wir Dir in einer E-Mail pro Tag.
    • Du kannst auch verschiedene Suchen anlegen und Dich jederzeit abmelden. Mehr dazu
    Nach oben scrollen