Kaufpreis 225.000 €
04509 Krostitz
Objektdaten
Veröffentlicht am: 18. März 2026
Danke! Bitte bestätige Deine E-Mail-Adresse – wir haben Dir soeben eine Mail geschickt.
Es gab ein Problem beim Absenden. Bitte versuche es erneut.
Bitte bestätige Deine E-Mail-Adresse, um Updates zu erhalten.
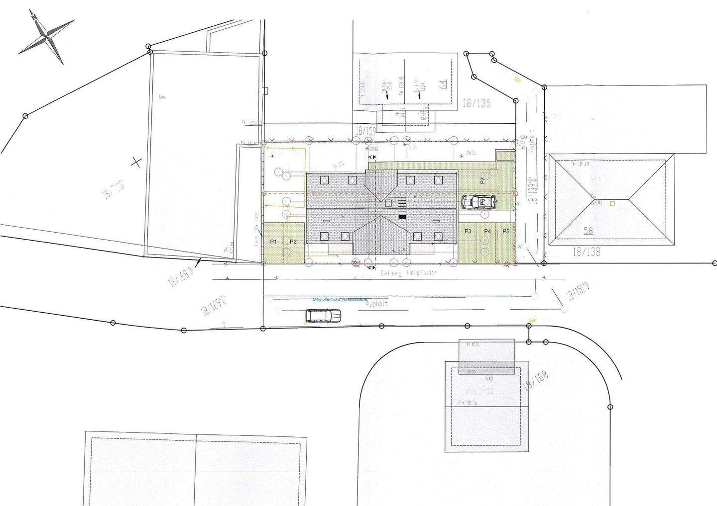
Objektbeschreibung
Bei diesem Immobilienangebot handelt es sich um ein ca. 463 m² großes Baugrundstück in einer gewachsenen Einfamilienhaussiedlung im grünen Krostitz. Für das Grundstück liegt eine Baugenehmigung vor, die zulässig ist für den Bau eines Mehrfamilienhauses mit vier Geschossflächen. Insgesamt sollen sechs Wohneinheiten auf einer vermietbaren Fläche von ca. 363,29 m² entstehen. Für jede Wohneinheit ist ein PKW-Stellplatz und ein Fahrradstellplatz vorgesehen. Ebenfalls ist die Bebauung mit einem Einfamilienhaus möglich. Das Grundstück ist voll erschlossen. Alle Medien liegen straßenseitig an. Ausstattung: - ca. 463 m² großes Baugrundstück- Wohnfläche/vermietbare Fläche: 363,29 m²- Baugenehmigung liegt vor (bis 2023)- MFH mit 6 Wohneinheiten- 7 Stellplätze- straßenseitig erschlossen (Strom/Wasser/Abwasser)- zum Teil eingezäuntWeitere Informationen erhalten Sie gern auf Anfrage!" frisch, engagiert, solide " Die Künne Immobilien Gruppe ist professioneller Dienstleister der Immobilienbranche und steht Ihnen in den Bereichen Projektentwicklung, Verkauf, Vermietung, Verwaltung und Facility Management zur Verfügung. Für weitere Informationen und Einblicke besuchen Sie unsere Homepage: www.kuenne-gruppe.de Sie wollen Ihre Immobilie verkaufen? Egal ob Mehrfamilien- oder Einfamilienhaus, Eigentumswohnung, Grundstück oder Neubau- bzw. Bauträgerprojekt. Wir vermitteln kompetent, transparent und zügig Ihre Immobilie, bundesweit.
So funktioniert es
- Alle neuen Anzeigen matchen wir kostenlos mit Deinen Suchparametern.
- Passende Angebote senden wir Dir in einer E-Mail pro Tag.
- Du kannst auch verschiedene Suchen anlegen und Dich jederzeit abmelden. Mehr dazu
Wir haben soeben eine E-Mail mit Deinem Suchauftrag an Dich geschickt. – Klicke in dieser Mail auf den Bestätigungslink und schon geht's los. Prüfe ggf. auch Deinen Spamordner.
Es gab ein Problem beim Absenden Deiner E-Mail-Adresse. Bitte versuche es erneut.
WARNUNG: Bitte bestätige Deine E-Mail-Adresse, um regelmäßige Updates zu erhalten.