Kaufpreis 685.000 €
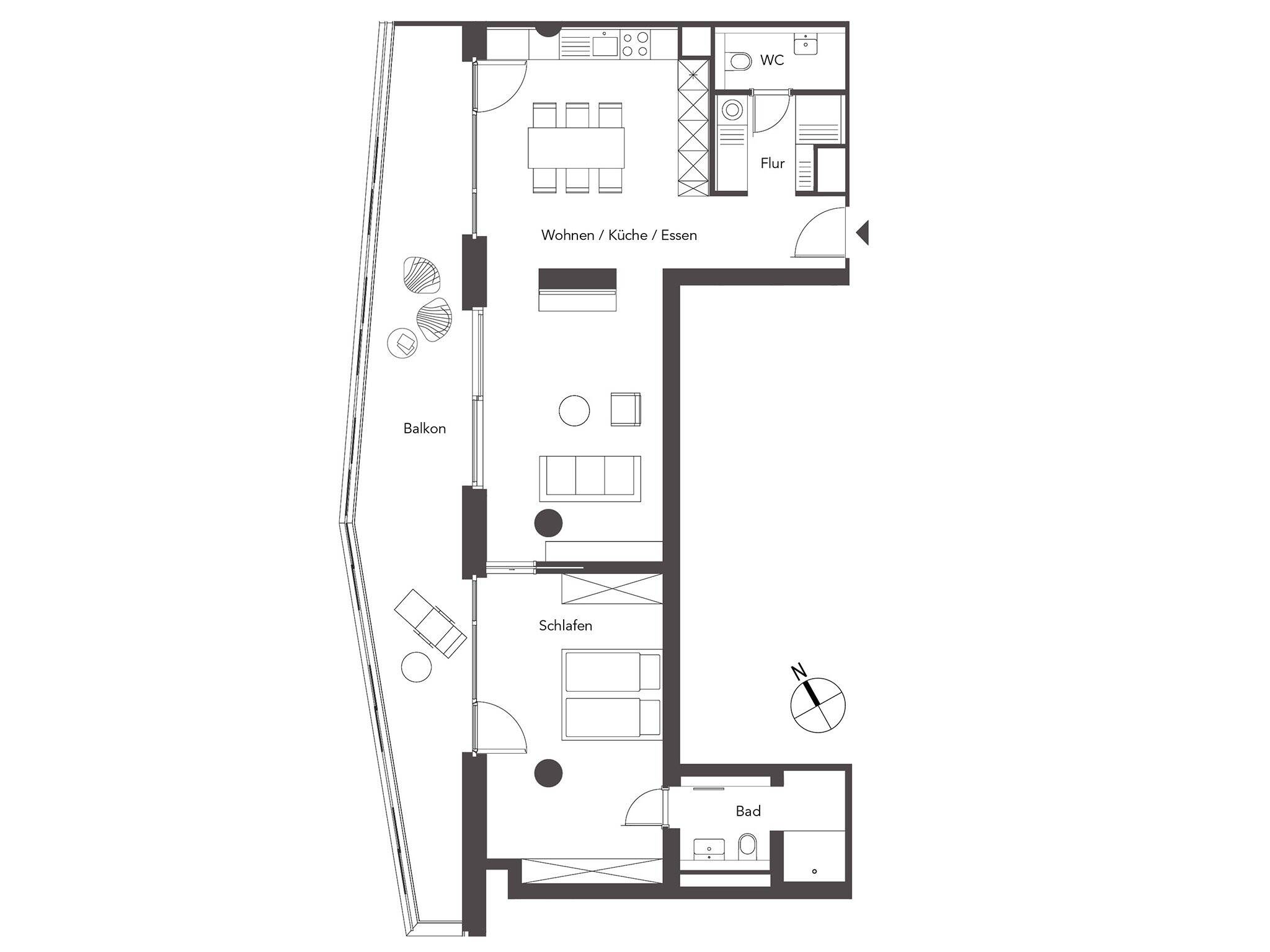
Zimmer 2
Größe 96 m²
78467 Konstanz
Objektdaten
Veröffentlicht am: 18. März 2026
Frei ab: 25. März 2026
Energieausweis: Liegt bei der Besichtigung vor
Danke! Bitte bestätige Deine E-Mail-Adresse – wir haben Dir soeben eine Mail geschickt.
Es gab ein Problem beim Absenden. Bitte versuche es erneut.
Bitte bestätige Deine E-Mail-Adresse, um Updates zu erhalten.
Objektbeschreibung
Zwischen See und HimmelDas markante Hochhaus in Konstanz Petershausen hat in seiner Geschichte ein neues Kapitel aufgeschlagen: Durch die Umwandlung des ehemaligen Post- und Bürogebäudes in die modernen ODE LOFTS wird hier Raum geschaffen für komfortables Wohnen mit einem atemberaubenden Blick über die Dächer der Stadt, auf den Bodensee und bis zu den Alpen. Zusammen mit dem international tätigen Architekturbüro Sauerbruch Hutton aus Berlin wurde ein einzigartiges Projekt mit 98 Wohnungen entworfen, die ein einmaliges Wohngefühl versprechen. Lichtdurchflutetes WohnflairDie hohen Innenräume werden zu modernen Lofts mit offenen Wohnbereichen ausgebaut. Somit bleibt die Grundstruktur des Gebäudes mit seinen runden Betonstützen und Decken mit offenen Unterzügen erhalten – dies gibt den Räumen durch ihre Weite eine besondere Wirkung. Großzügige Fensterfronten lassen das Tageslicht in die Räume strömen und schaffen ein Zuhause mit Offenheit, Helligkeit und einer wertigen Innenausstattung. Die geschwungenen Balkone erweitern den Wohnbereich nach außen und können größtenteils mit einer Schiebeverglasung zu ca. zwei Dritteln windgeschützt geschlossen werden. Gemeinschaftliche Dachterrasse mit AusblickEine Dachterrasse im 16. Obergeschoss ist für alle Bewohnerinnen und Bewohner des Hauses zugänglich und bietet einen atemberaubenden Ausblick. Genießen Sie von dort vielfältige Blicke in die Umgebung – den Bodensee, die historische Altstadt, die Insel Reichenau, die Berge und den Hegau.Eine Ode an die Architektur Das 16-stöckige Gebäude liegt zwischen Grünanlagen und Parks. Durch die Fassadengestaltung der ODE LOFTS mit hochwertigen Keramikscherben in unterschiedlichen Farbtönen bietet die Architektur des Gebäudes ein harmonisches Zusammenspiel mit seiner Umgebung. Die Umwandlung des Büro- zu einem Wohngebäude ist nicht nur ein beeindruckendes Beispiel für modernes Wohnen, sondern auch ein wichtiger Beitrag für eine nachhaltigere und lebenswertere Stadt. Durch die Umnutzung vorhandener Bausubstanz und der Wiederverwendung bestehender Ressourcen wird nicht nur neuer Wohnraum geschaffen, sondern es werden gleichzeitig Baumaterial und dadurch auch Emissionen eingespart.
So funktioniert es
- Alle neuen Anzeigen matchen wir kostenlos mit Deinen Suchparametern.
- Passende Angebote senden wir Dir in einer E-Mail pro Tag.
- Du kannst auch verschiedene Suchen anlegen und Dich jederzeit abmelden. Mehr dazu
Wir haben soeben eine E-Mail mit Deinem Suchauftrag an Dich geschickt. – Klicke in dieser Mail auf den Bestätigungslink und schon geht's los. Prüfe ggf. auch Deinen Spamordner.
Es gab ein Problem beim Absenden Deiner E-Mail-Adresse. Bitte versuche es erneut.
WARNUNG: Bitte bestätige Deine E-Mail-Adresse, um regelmäßige Updates zu erhalten.