Kaufpreis 532.000 €
Zimmer 3
Größe 80 m²
88250 Weingarten
Objektdaten
Veröffentlicht am: 18. März 2026
Energieausweis: Liegt bei der Besichtigung vor
Danke! Bitte bestätige Deine E-Mail-Adresse – wir haben Dir soeben eine Mail geschickt.
Es gab ein Problem beim Absenden. Bitte versuche es erneut.
Bitte bestätige Deine E-Mail-Adresse, um Updates zu erhalten.
Objektbeschreibung
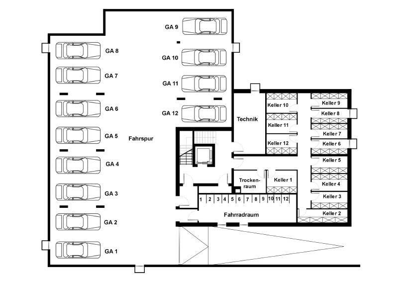
BAUVORANKÜNDIGUNG:In beliebter Stadtlage entsteht hier ein projektierter Neubau, im KfW 55 Standard, mit insgesamt 12 Wohnungen ( 2,3,4-Zimmer ) und 12 Stellplätzen in der Tiefgarage, mit Wohnflächen von ca. 39 m² bis ca. 97 m². Der Baubeginn wird, nach Erteilung der Baugenehmigung und eine Verkaufsstand von mindestens 4 Wohnungen, voraussichtlich nach den Handwerkerferien ( Anfang September/Oktober ) mit dem Abbruch erfolgen können. Die Bauzeit beträgt nach Baubeginn ca. 15 - 18 Monate bis zur Bezugsfertigkeit. Die Bauausführung erfolgt entsprechend unserer Bau- und Leistungsbeschreibung, die Sie gerne anfordern können. Das Gebäude und die Gebäudetechnik werden selbstverständlich nach den Vorgaben der jeweils neuesten, gesetzlich vorgeschriebenen Energieeinsparverordnung erstellt. Erstellung und Abwicklung unterliegen der gesetzlichen Vorgaben. Drei wichtige oft gestellte Fragen: 1)Wie erfolgt die Bezahlung ?Die Bezahlung erfolgt nach den Vorgaben der gesetzlich gültigen und vorgeschriebenen Makler und Bauträgerverordnung , der sogenannten "MaBv", ein Ratenzahlungsplan entsprechend dem Baufortschritt. Erst nach der Fertigstellung des entsprechenden Gewerkes, ist die Rechnungsstellung der Rate erlaubt. 2) Können noch Änderungswünsche berücksichtigt werden: Änderungs- und Sonderwünsche hinsichtlich der Grundrissgestaltung sind nach statischer und bautechnischer Prüfung, selbstverständlich möglich. 3) Wie lange haftet der Bauträger ?Mit der Bauabnahme beginnt der Countdown für die Gewährleistungsfrist. Da Baumängel am Haus häufig erst nach einiger Zeit sichtbar werden, ist die Gewährleistungsfrist laut Verbraucherschutzgesetzt großzügig auf einen Zeitraum von 5 Jahren bemessen. Die Gewährleistungsfrist beginnt mit der Bauabnahme und gilt für Mängel, die eindeutig auf die Bauausführung zurückzuführen sind. Haben Sie weitere Fragen zu diesem besonderen Neubauprojekt, dann vereinbaren Sie doch einfach ein ersten, unverbindlichen Gesprächstermin in unserem Hause, in der Schussenstrasse 4, in 88212 Ravensburg.Bauträger und Vertragspartner ist die Hochmann Wohn- und Gewerbebau GmbH.Der Erwerb ist selbstverständlich provisionsfrei.
So funktioniert es
- Alle neuen Anzeigen matchen wir kostenlos mit Deinen Suchparametern.
- Passende Angebote senden wir Dir in einer E-Mail pro Tag.
- Du kannst auch verschiedene Suchen anlegen und Dich jederzeit abmelden. Mehr dazu
Wir haben soeben eine E-Mail mit Deinem Suchauftrag an Dich geschickt. – Klicke in dieser Mail auf den Bestätigungslink und schon geht's los. Prüfe ggf. auch Deinen Spamordner.
Es gab ein Problem beim Absenden Deiner E-Mail-Adresse. Bitte versuche es erneut.
WARNUNG: Bitte bestätige Deine E-Mail-Adresse, um regelmäßige Updates zu erhalten.