Platz für die Familie und Homeoffice!

Kaufpreis 992.000 €
Zimmer 5
Größe 161 m²
71570 Oppenweiler

Objektdaten

Veröffentlicht am: 18. März 2026
Energieausweis: Liegt bei der Besichtigung vor
Neu

Über ähnliche Angebote direkt informiert werden

  • Objektbeschreibung

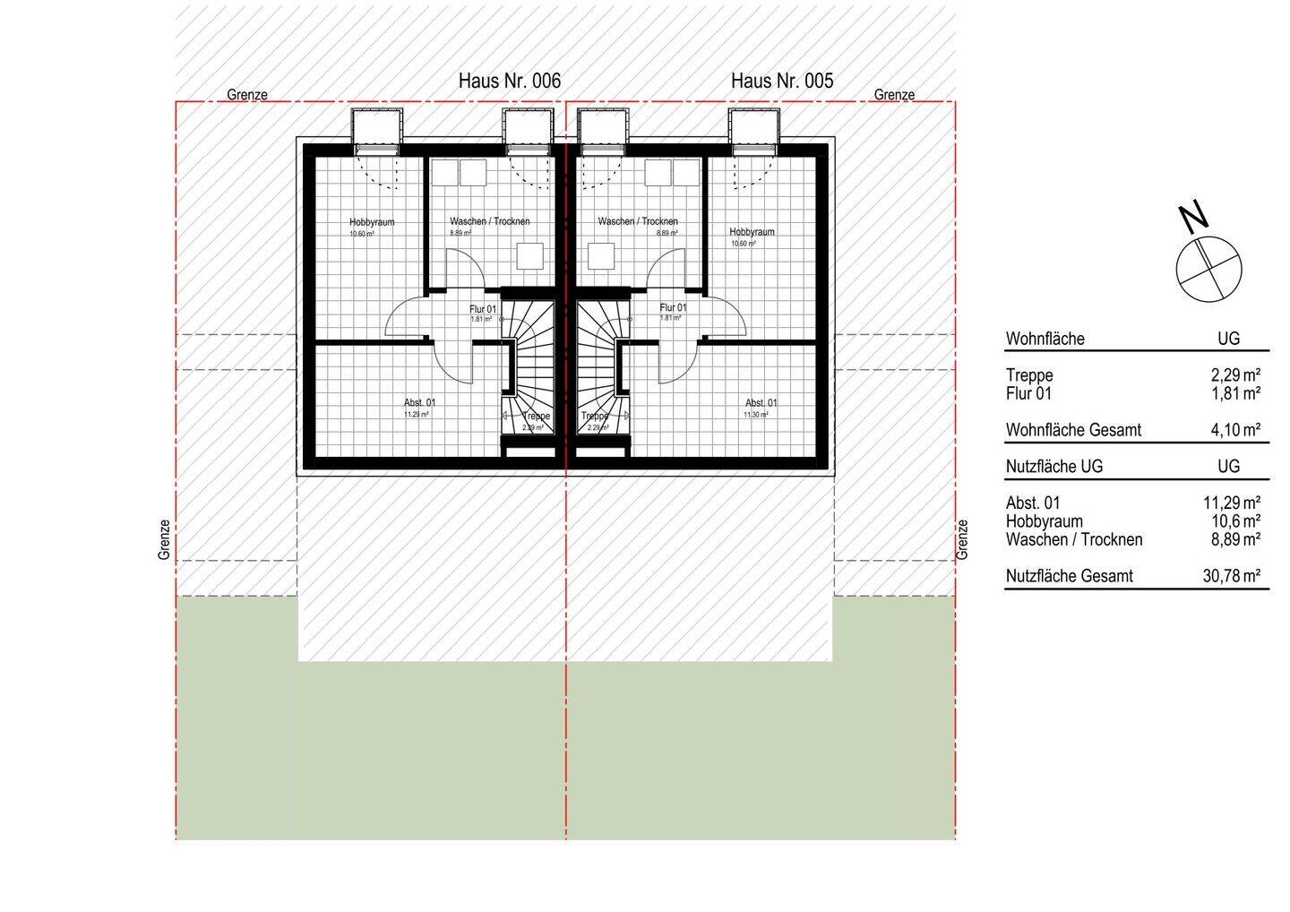
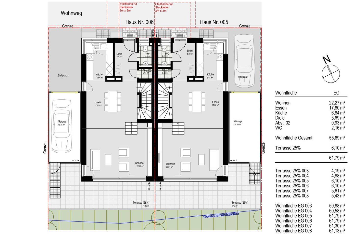
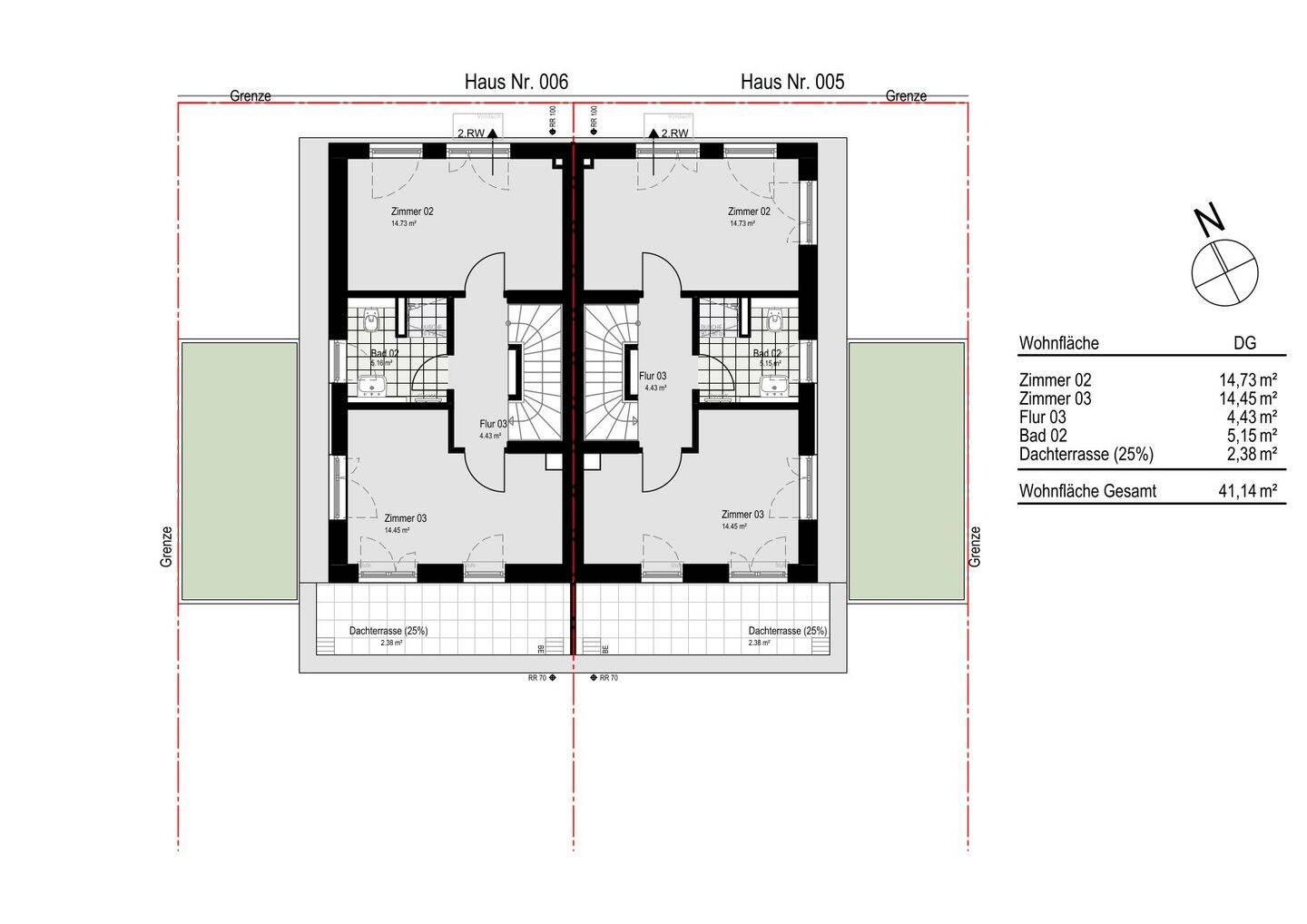
    In einem ruhigen Wohngebiet entstehen am südwestlichen Ortsrand von Oppenweiler zwei Mehrfamilienhäuser und sechs Doppelhaushälften. Die Doppelhaushälften verfügen über ca. 159 - 161 m² Wohnfläche und bieten jeweils großzügige, helle Räume. Im Erdgeschoss befindet sich der Wohnbereich mit offener Küche, die beiden Obergeschosse bieten insgesamt vier Zimmer und zwei Bäder. Um Untergeschoss befinden sich die Nebenräume für Waschen, Abstellmöglichkeit und Hobby.Die moderne Architektur und das Wohnen auf versetzten Wohnebenen verspricht ein exklusives Wohnflair. Große Fensterflächen sorgen für viel Licht in den Räumen. Zwei Bäder stehen für Eltern und Kinder zur Verfügung. Zudem verfügt jedes Haus über eine Terrasse mit Gartenanteil und eine Dachterrasse. Zu jedem Haus gibt es eine Einzelgarage und einen Aussenstellplatz, ein Haus davon verfügt über zwei Carports.

    So funktioniert es

    • Alle neuen Anzeigen matchen wir kostenlos mit Deinen Suchparametern.
    • Passende Angebote senden wir Dir in einer E-Mail pro Tag.
    • Du kannst auch verschiedene Suchen anlegen und Dich jederzeit abmelden. Mehr dazu
    Nach oben scrollen