Objektdaten
Objektbeschreibung
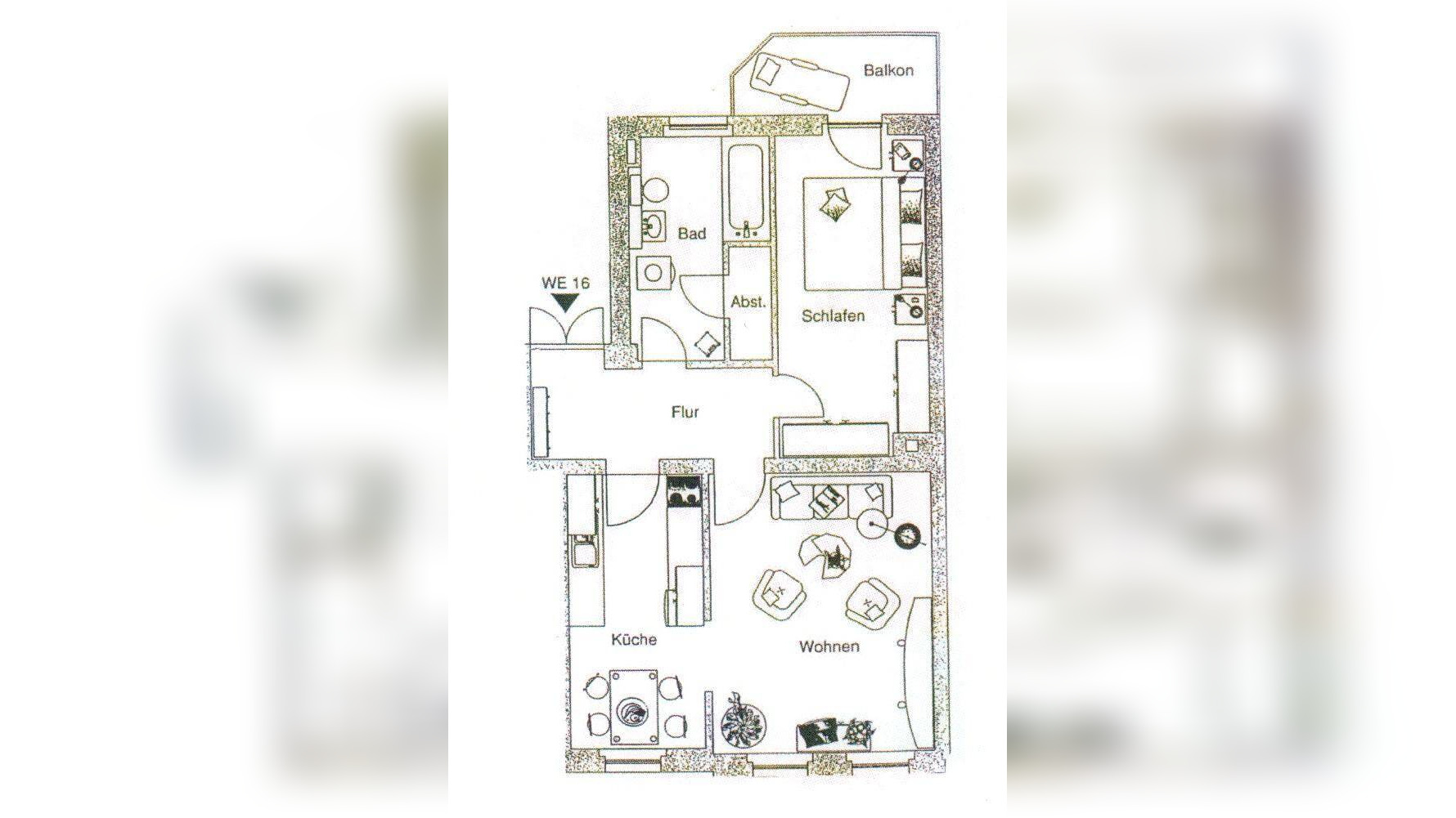
Die zu verkaufenden Wohneinheit befindet sich in einem 2004 aufwendig sanierten Wohngebäude welches unter Denkmalschutz steht. Das Gebäude wurde 1910 errichtet. Die zwei Wohnhäuser Ricarda-Huch-Str. 8 und 10 bilden eine Verwaltungseinheit mit 24 Wohneinheiten. Im 2. OG befindet sich die angebotene Wohneinheit 16. In den Räumlichkeiten ist eine Laminatboden verlegt. Das Bad und die Küche sind gefliest. Das Tageslichtbad verfügt über eine Waschmaschinenanschluss eine Badewanne und einem Zugang zu einem Abstellraum. Vom Wohnzimmer und Flur aus ist die teiloffene Küche zugängig. Das großzüge Wohnzimmer zeigt in Richtung Straße und Südseite. Ein Kellerabteil ist der Wohneinheit zugeordnet. Das Hausgeld beträgt 217,54 € davon sind 136,50 € umlagefähig. Die Instandhaltunsrücklage Stand 31.12.23 beträgt 53.669,64 € davon sind 2373,81,- € der Wohnung zugeordnet. Das Mietverhältnis besteht seit 08/2015 und beläuft sich auf 307,- € Kaltmiete. Alle weiteren Informationen und Daten kann ich Ihnen gerne auf Anfrage zur Verfügung stellen.Ähnliche Angebote
So funktioniert es
- Alle neuen Anzeigen matchen wir kostenlos mit Deinen Suchparametern.
- Passende Angebote senden wir Dir in einer E-Mail pro Tag.
- Du kannst auch verschiedene Suchen anlegen und Dich jederzeit abmelden. Mehr dazu




