Kaufpreis 245.000 €
Zimmer 1
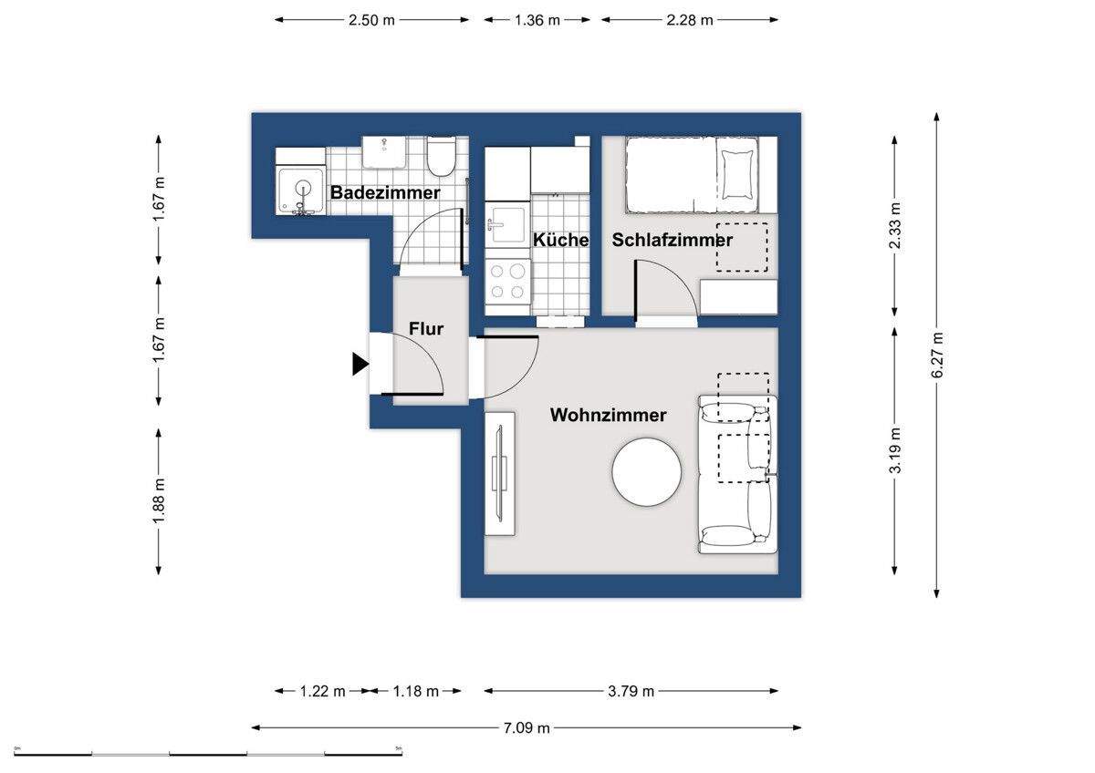
Größe 26 m²
22761 Hamburg
Objektdaten
Veröffentlicht am: 18. März 2026
Baujahr: 1910
Energieausweis: Liegt bei der Besichtigung vor
Danke! Bitte bestätige Deine E-Mail-Adresse – wir haben Dir soeben eine Mail geschickt.
Es gab ein Problem beim Absenden. Bitte versuche es erneut.
Bitte bestätige Deine E-Mail-Adresse, um Updates zu erhalten.
Objektbeschreibung
Diese attraktiv geschnittene Dachgeschosswohnung bietet eine ideale Kombination aus funktionalem Grundriss, heller Wohnatmosphäre und sofortiger Nutzbarkeit. Die Wohnung wird voll möbliert angeboten und eignet sich damit sowohl für Eigennutzer als auch für Kapitalanleger, die ohne weiteren Aufwand direkt einziehen oder vermieten möchten.Der Wohn- und Arbeitsbereich präsentiert sich offen, lichtdurchflutet und modern. Großzügige Dachflächenfenster sorgen für eine angenehme Helligkeit und unterstreichen das freundliche Raumgefühl. Die vorhandene Möblierung ist geschmackvoll gewählt und ermöglicht eine klare Trennung zwischen Wohnen, Arbeiten und Entspannen - ideal für modernes Stadtwohnen.Die Küche ist kompakt und funktional gestaltet und fügt sich harmonisch in das Wohnkonzept ein. Durch die vollständige Ausstattung ist sie sofort nutzbar und optimal auf den täglichen Bedarf abgestimmt.Der integrierter Schlafbereich bietet trotz Dachschrägen ein ruhiges und gemütliches Ambiente. Die Möblierung ist platzsparend gewählt und schafft ein angenehmes Gleichgewicht zwischen Schlafkomfort und Stauraum.Das Badezimmer ist modern und gepflegt ausgestattet und verfügt über eine Dusche, ein Waschbecken sowie ein WC. Die klare, zeitlose Gestaltung sorgt für ein dauerhaft ansprechendes Erscheinungsbild.Ein zusätzlicher Mehrwert ist der gepflegte, begrünte Innenhof, der den Bewohnern als ruhiger Rückzugsort im Freien zur Verfügung steht und das Gesamtangebot abrundet.
So funktioniert es
- Alle neuen Anzeigen matchen wir kostenlos mit Deinen Suchparametern.
- Passende Angebote senden wir Dir in einer E-Mail pro Tag.
- Du kannst auch verschiedene Suchen anlegen und Dich jederzeit abmelden. Mehr dazu
Wir haben soeben eine E-Mail mit Deinem Suchauftrag an Dich geschickt. – Klicke in dieser Mail auf den Bestätigungslink und schon geht's los. Prüfe ggf. auch Deinen Spamordner.
Es gab ein Problem beim Absenden Deiner E-Mail-Adresse. Bitte versuche es erneut.
WARNUNG: Bitte bestätige Deine E-Mail-Adresse, um regelmäßige Updates zu erhalten.