Objektdaten
Objektbeschreibung
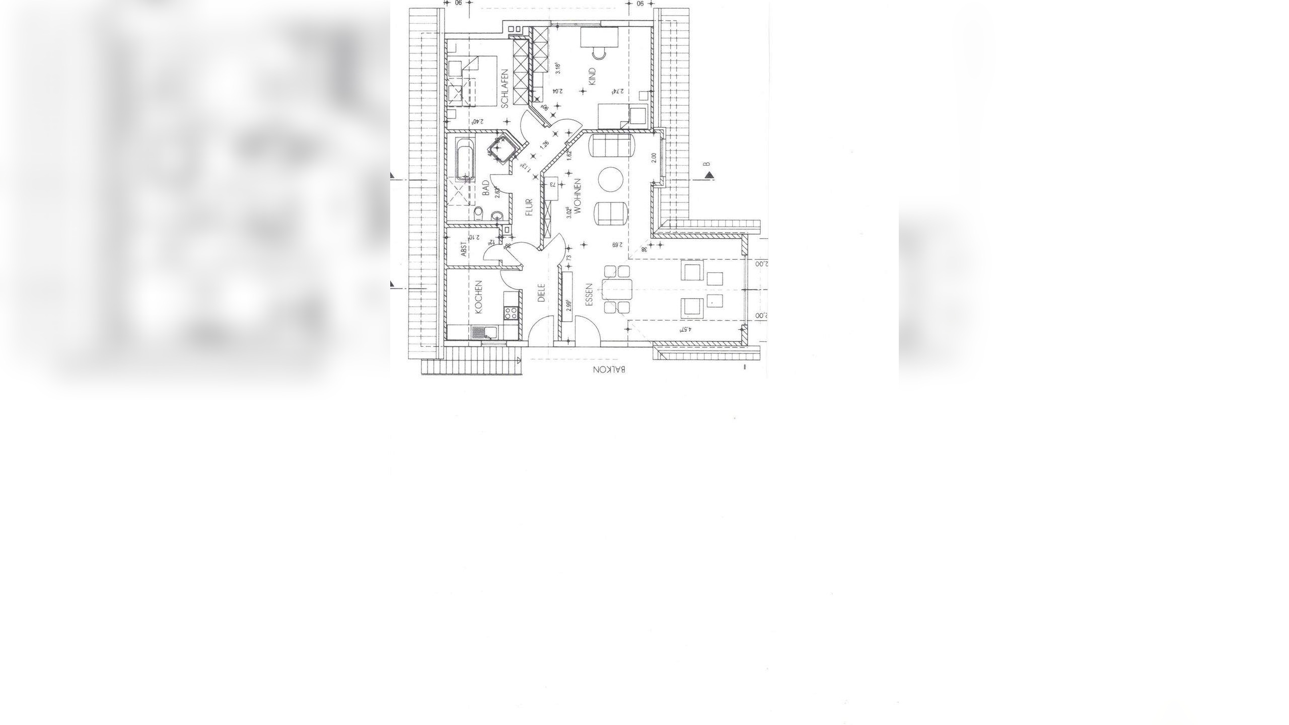
Das eindrucksvolle Zweifamilienhaus (Massivbau) eignet sich perfekt als 2 Generationenhaus.Die im Erdgeschoss befindliche Wohneinheit ca. 140m2 müsste renoviert werden während sich die Wohneinheit im Obergeschoß, auch ca. 140m2 ,wenn das Dachgeschoss mit eingerechnet wird, noch im Rohbau befindet.Das Haus steht auf einem einzigartigen Grundstück von über 1300m2 in bevorzugter Wohnlage von Overberge.Das Haus wurde 2005 aufgestockt und erhielt einen neuen Dachstuhl und ein neues Dach und doppelt verglaste Fenster.Zwischen 2007 und 2010 wurde auch das Erdgeschoss mit neuen Fenstern versehen zusätzlich isoliert und neu verputzt. Das Haus verfügt über einen Erdgasanschluss.Durch die Nutzung als Zweifamilienhaus können auch die Kosten des Kaufes sowie die Folgekosten geteilt werden.Selbstverständlich könnte auch eine der Wohneinheiten bewohnt und die andere vermietet werden.Die Mieteinnahme könnte ca. 1200€ Kaltmiete monatlich betragen.Das Haus verfügt über ca. 120 m2 Keller und eine Doppelgarage.Das Haus wird provisionsfrei vom Eigentümer verkauft, Notorkosten trägt der Käufer.Die Badezimmerwände und die Esszimmerwand zur Küche im EG sind laut Bauzeichnung nicht tragend.Ähnliche Angebote
So funktioniert es
- Alle neuen Anzeigen matchen wir kostenlos mit Deinen Suchparametern.
- Passende Angebote senden wir Dir in einer E-Mail pro Tag.
- Du kannst auch verschiedene Suchen anlegen und Dich jederzeit abmelden. Mehr dazu




