Cosmea in Sachsen bei Ansbach – Urbanes Leben genießen mit fränkisch-idyllischem Flair

Kaufpreis 232.300 €
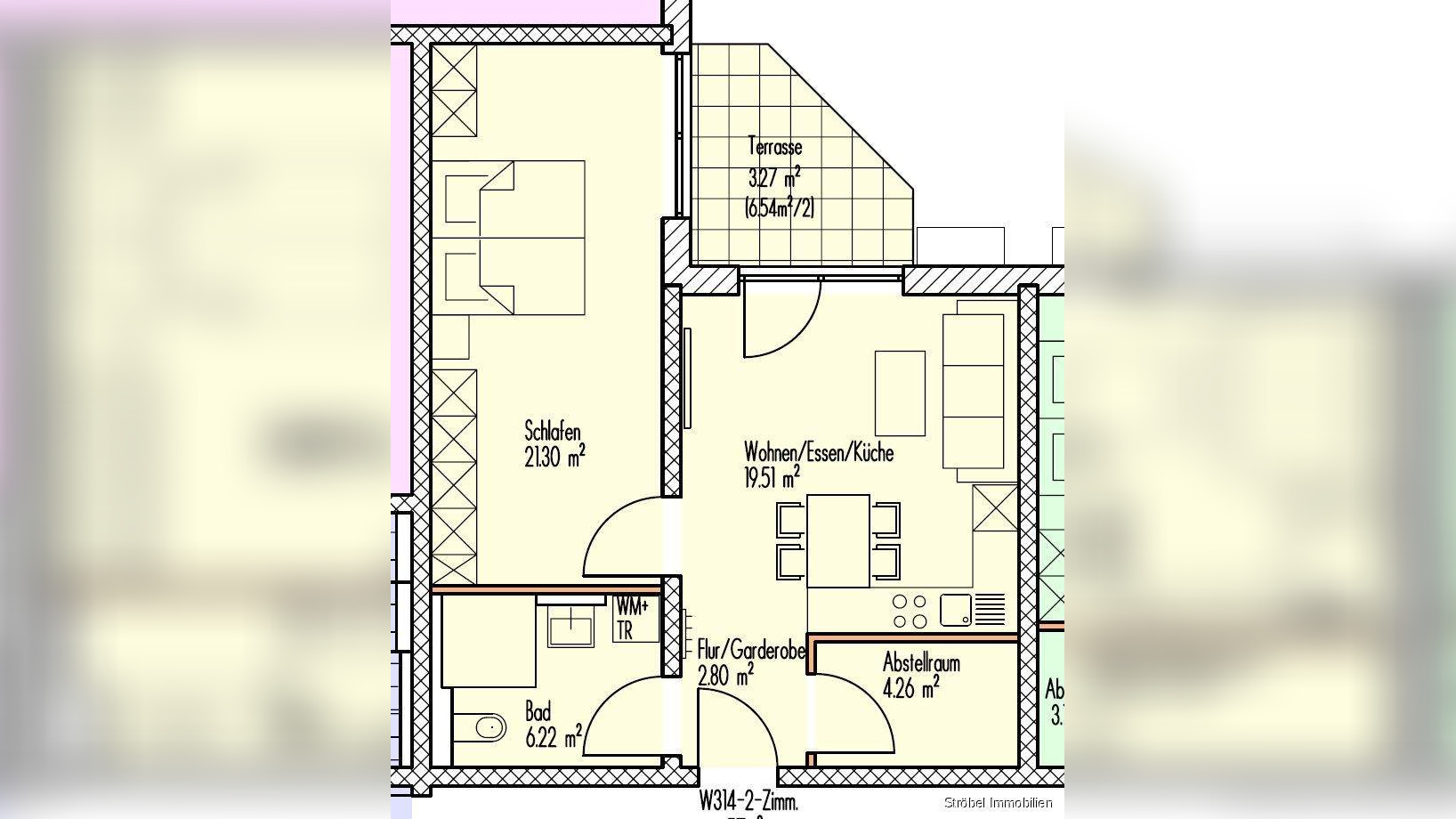
Zimmer 2
Größe 57 m²
91623 Sachsen b. Ansbach

Objektdaten

Veröffentlicht am: 18. März 2026
Energieausweis: Liegt bei der Besichtigung vor
Neu

Über ähnliche Angebote direkt informiert werden

  • Objektbeschreibung

    Unser Generationenpark "Cosmea" ist etwas ganz Besonderes. Er bietet allen Komfort, den Sie für ein selbstbestimmtes Leben brauchen, egal ob zu zweit oder alleine. Moderne und gelungene Wohnungsgrundrisse bieten viel Platz, um den individuellen Bedürfnissen des Einzelnen genügend Raum zu geben. Neben den Wohnungen sind auch Apartments in zwei Wohngruppen sowie Gewerberäume in die Anlage integriert.

    So funktioniert es

    • Alle neuen Anzeigen matchen wir kostenlos mit Deinen Suchparametern.
    • Passende Angebote senden wir Dir in einer E-Mail pro Tag.
    • Du kannst auch verschiedene Suchen anlegen und Dich jederzeit abmelden. Mehr dazu
    Nach oben scrollen