Objektdaten
Objektbeschreibung
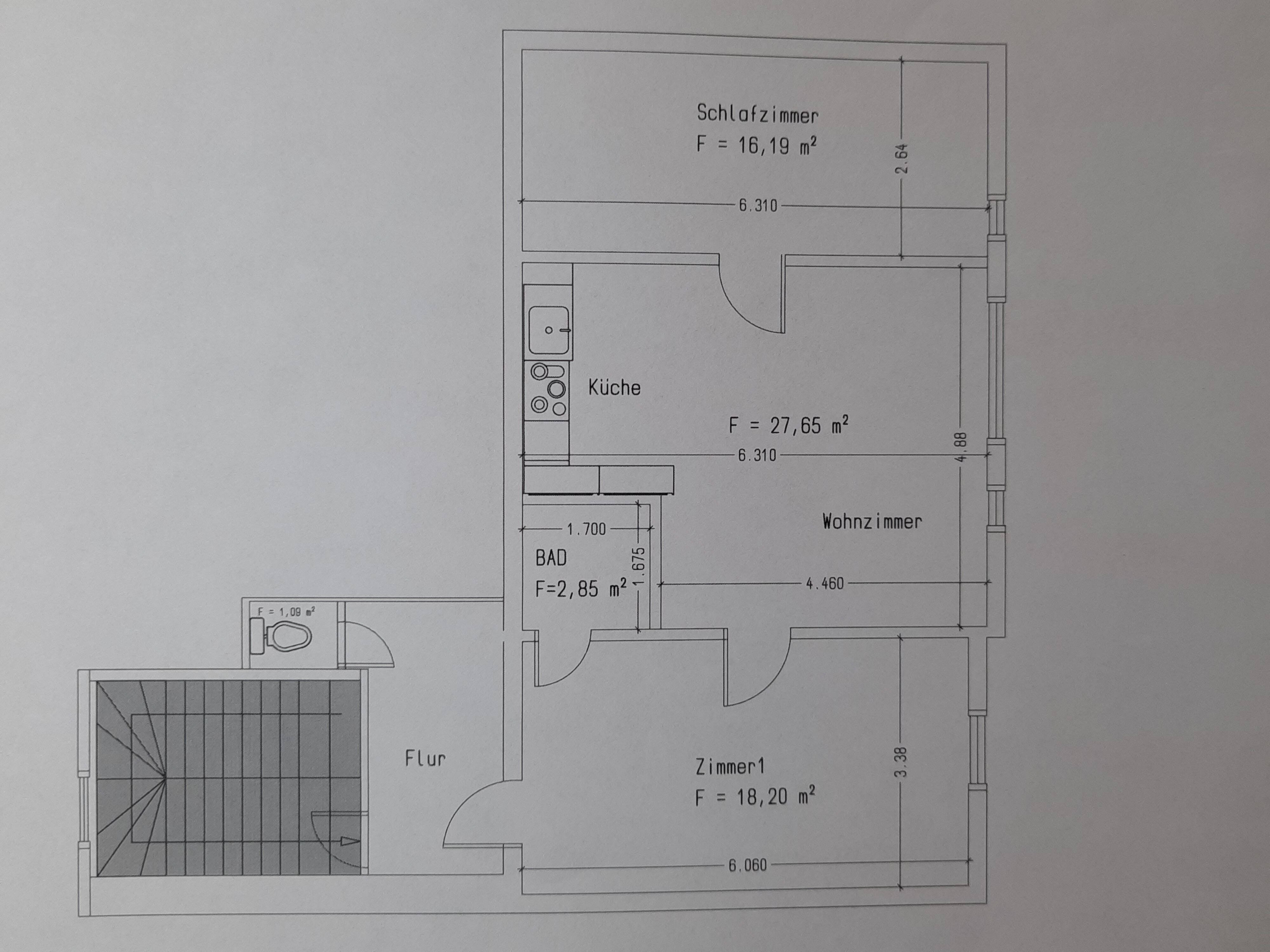
Ihre Neue Wohnung befindet sich im 3.OG (DG) eines sanierten Wohn-Geschäftshauses in zentraler Lage von Köthen. Alle Zimmer der Wohnung sind hell und geräumig. Das Wohnzimmer ist der größte Raum der Wohnung, hier befindet sich auch die offene Küche mit allen notwendigen Anschlüssen für Ihre eigene Küche.Vom Wohnzimmer geht es ins Schlafzimmer, welches ebenfalls eine angenehme Größe hat. Ein weiteres Zimmer ist ein Durchgangszimmer und eignet sich gut als Arbeitszimmer. Das Bad ist gefliest und mit einer Wanne ausgestattet. Das WC ist separat zugänglich.Alle Fußböden sind mit Laminat verlegt.Die Wohnung wurde neu renoviert und ist ab sofort verfügbarSo funktioniert es
- Alle neuen Anzeigen matchen wir kostenlos mit Deinen Suchparametern.
- Passende Angebote senden wir Dir in einer E-Mail pro Tag.
- Du kannst auch verschiedene Suchen anlegen und Dich jederzeit abmelden. Mehr dazu





