Kaufpreis 67.200 €
Zimmer 2
Größe 64 m²
09111 Chemnitz
Objektdaten
Veröffentlicht am: 18. März 2026
Energieausweis: Liegt bei der Besichtigung vor
Danke! Bitte bestätige Deine E-Mail-Adresse – wir haben Dir soeben eine Mail geschickt.
Es gab ein Problem beim Absenden. Bitte versuche es erneut.
Bitte bestätige Deine E-Mail-Adresse, um Updates zu erhalten.
Objektbeschreibung
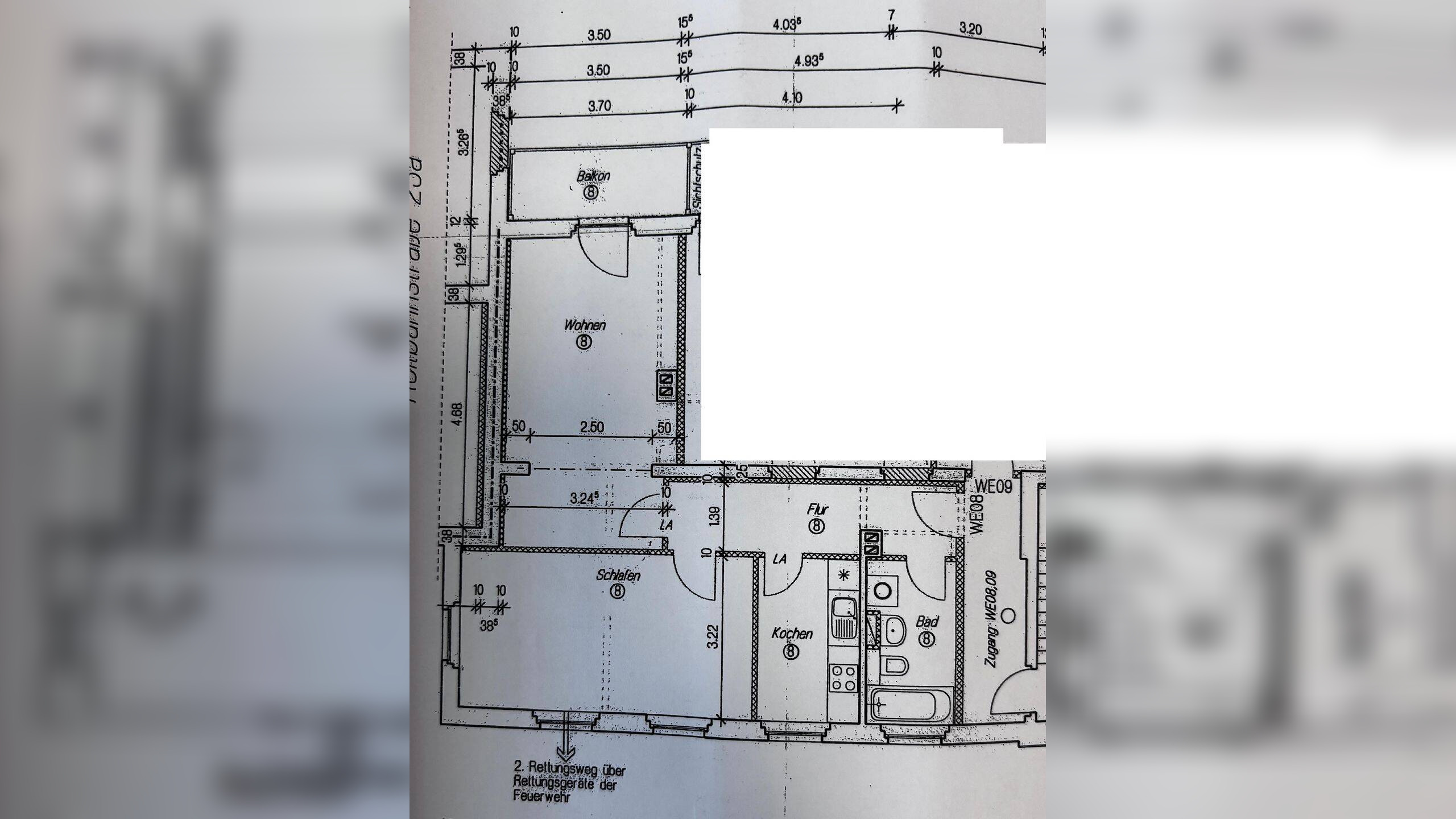
ermietete 2-Zimmer-Wohnung mit Balkon im Denkmalobjekt - Reitbahnstraße 25, ChemnitzZum Verkauf steht eine gepflegte 2-Zimmer-Wohnung im 3. Obergeschoss eines denkmalgeschützten Mehrfamilienhauses in zentraler Lage von Chemnitz. Das Gebäude wurde in den 1930er Jahren errichtet und ca. 2007 umfassend saniert. Es umfasst insgesamt 11 Wohneinheiten und präsentiert sich in gutem Zustand.Die Wohnung ist seit 2009 zuverlässig vermietet und bietet eine solide Kapitalanlage mit langfristiger Perspektive.Objektdaten:Adresse: Reitbahnstraße 25, WE 08, 09111 ChemnitzEtage: 3. ObergeschossWohnfläche: ca. 64?m²Zimmer: 2Balkon: vorhandenBodenbeläge: Laminat in den Wohnräumen, Fliesen im BadBad: Tageslichtbad mit Fenster und BadewanneNebenräume: Keller, Bodenkammer, gemeinschaftlicher WäschebodenNutzung & Einnahmen:Aktuell vermietetMonatliche Kaltmiete: 300?€Mietverhältnis seit: 2009Wirtschaftliche Daten:Hausgeld: 330,02?€/Monatdavon umlagefähig: 257,85?€/MonatInstandhaltungsrücklage (Stand 31.12.2023):Gesamtrücklage der WEG: 60.687,64?€Anteil dieser Wohnung: 4.469,64?€Besonderheiten:Denkmalgeschütztes Gebäude - mögliche steuerliche Vorteile gemäß § 7i EStGKomplettsanierung ca. 2007 (inkl. Dach, Fenster, Leitungen, Fassade, Heizung etc.)Zentrale Lage mit sehr guter Anbindung an ÖPNV, Einkaufsmöglichkeiten und InnenstadtLangjähriges, stabiles MietverhältnisSolide Hausgemeinschaft in gepflegtem UmfeldHinweis:Aufgrund des Denkmalschutzes ist kein Energieausweis erforderlich.Interesse geweckt?Gern stellen wir Ihnen weitere Unterlagen zur Verfügung oder koordinieren einen persönlichen Besichtigungstermin. PS.: Die Bilder zeigen eine andere Wohnung mit identischem Grundriss im Haus. Aufgrund der langjährigen Mieterin liegen keine Bilder vom inneren vor.
So funktioniert es
- Alle neuen Anzeigen matchen wir kostenlos mit Deinen Suchparametern.
- Passende Angebote senden wir Dir in einer E-Mail pro Tag.
- Du kannst auch verschiedene Suchen anlegen und Dich jederzeit abmelden. Mehr dazu
Wir haben soeben eine E-Mail mit Deinem Suchauftrag an Dich geschickt. – Klicke in dieser Mail auf den Bestätigungslink und schon geht's los. Prüfe ggf. auch Deinen Spamordner.
Es gab ein Problem beim Absenden Deiner E-Mail-Adresse. Bitte versuche es erneut.
WARNUNG: Bitte bestätige Deine E-Mail-Adresse, um regelmäßige Updates zu erhalten.