Kaufpreis 453.900 €
Zimmer 2
Größe 64 m²
85051 Ingolstadt
Objektdaten
Veröffentlicht am: 18. März 2026
Energieausweis: Liegt bei der Besichtigung vor
Danke! Bitte bestätige Deine E-Mail-Adresse – wir haben Dir soeben eine Mail geschickt.
Es gab ein Problem beim Absenden. Bitte versuche es erneut.
Bitte bestätige Deine E-Mail-Adresse, um Updates zu erhalten.
Objektbeschreibung
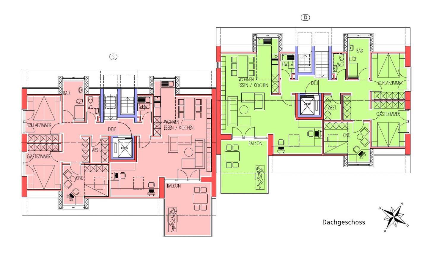
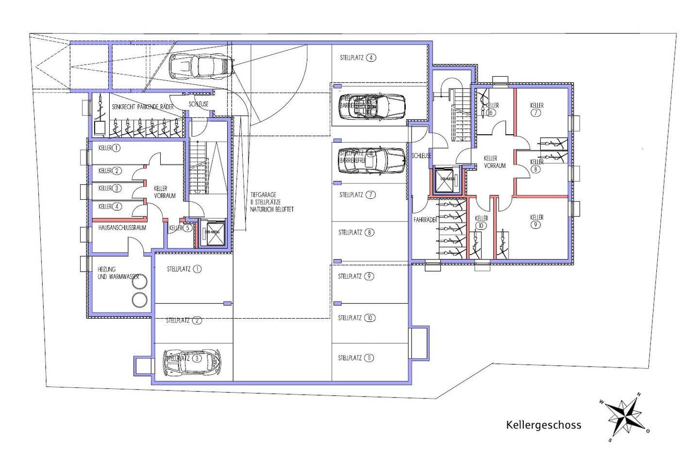
Im Ingolstädter Südwesten wird ein attraktives Wohngebäude mit 10 Wohneinheiten und 2 Treppenhäusern samt Tiefgarage in bewährter Ausführungsqualität des Bauträgers errichtet. Angeboten werden moderne Wohnungen mit 2 bis 5 Zimmern. Die integrierten Personenaufzüge fahren die Geschosse von der Tiefgarage bis ins Dachgeschoss an. In Abhängigkeit des Bautenstandes besteht die Möglichkeit, individuelle Grundrissgestaltungs- und Ausstattungswünsche zu realisieren. Die Fertigstellung ist für Ende 2026 geplant.Gegen Aufpreis kann ein Tiefgaragen-Stellplatz für 28.900 € und / oder ein oberirdischer Stellplatz für 14.900 € erworben werden. Eckdaten:Wohnflächen: ca. 64,80 m² bis ca. 113,28 m² Erdgeschoss-Wohnungen mit Terrasse und GartenanteilObergeschoss-Wohnungen mit Balkon Dachgeschoss-Wohnungen mit Balkon KfW-Effizienzhausstandard 40: Energieeffizient Bauen - Fördermöglichkeiten unter www.kfw.de (Zinsverbilligter Förderkredit bis zu 100.000,00 € /Wohneinheit) wertbeständige hochdämmende Ziegelbauweise (42,5 cm stark)Heizung als Luft-Wasser-Wärmepumpe mit Photovoltaik-Anlagedezentrale Lüftung mit Wärmerückgewinnung Wasserenthärtungsanlage 3 -Scheiben-Wärmeschutzverglasung Kellerabstellraum zu jeder WohnungAusstattungsdetails.: Fußbodenheizung mit Einzelraumregelung elektrische Rollläden alle TG-Stellplätze mit Anbindemöglichkeit für Wallboxen Fertigparkett in den Wohnbereichen Innentüren weiß lackiert mit Edelstahl-Drückergarnitur bodengleiche Duschen mit Entwässerungsrinnen und Echtglaskabinen Handtuchheizkörper im Bad Fensterbänke in Granit, u.v.m.
So funktioniert es
- Alle neuen Anzeigen matchen wir kostenlos mit Deinen Suchparametern.
- Passende Angebote senden wir Dir in einer E-Mail pro Tag.
- Du kannst auch verschiedene Suchen anlegen und Dich jederzeit abmelden. Mehr dazu
Wir haben soeben eine E-Mail mit Deinem Suchauftrag an Dich geschickt. – Klicke in dieser Mail auf den Bestätigungslink und schon geht's los. Prüfe ggf. auch Deinen Spamordner.
Es gab ein Problem beim Absenden Deiner E-Mail-Adresse. Bitte versuche es erneut.
WARNUNG: Bitte bestätige Deine E-Mail-Adresse, um regelmäßige Updates zu erhalten.