großzügiges Mehrgenerationenwohnen bei Pinneberg mit vielen Möglichkeiten

Kaufpreis 499.000 €
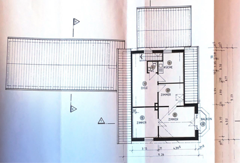
Zimmer 6
Größe 223 m²
25494 Borstel-Hohenraden

Objektdaten

Veröffentlicht am: 18. März 2026
Baujahr: 1920
Energieausweis: Liegt bei der Besichtigung vor
  • Objektbeschreibung

    Objektbeschreibung Diese Immobilie lässt sich sowohl als großzügiges Einfamilienhaus nutzenund ist auch für Mehrgenerationenwohnen geeignet.Gestalten Sie die großen, freundlichen Räume nach Ihren Vorstellungen, oderinvestieren Sie in ein gut vermietbares Anlageobjekt.Beide Wohneinheiten sind durch 2 separate Eingänge voneinander getrennt.Die obere Wohnung mit einer modernen Einbauküche aus dem Jahre 2005 und einem Balkon erreichen Sie durch den vorderen Eingang (Haupteingang).Die untere Wohnung im Hochparterre mit großen Fenstern, einem Erker, einem Badezimmer und einem Gäste-WC, erreichen Sie sowohl durch den vorderen, als auch durch den hinteren Eingang.Den ruhigen Garten genießen Sie bei jedem Wetter in der großen Loggia, die zu jeder Jahreszeit das überdachte Grillen erlaubt.Die obere Wohnung ist zurzeit für 800,- pro Monat warm vermietet, die untere Wohnung steht seit kurzem leer und ist für ca. 1200.- € vermietbar. Objektbeschreibung -Hauptgebäude Baujahr 1920-Anbau Baujahr 1974-Garage-Carport-2 weitere Stellplätze auf dem Grundstück-Keller-Garten-Loggia-auch als Kapitalanlage geeignetBeispiel Kaufpreis 500.000€Tilgung 2%Zinsen 4 %Rate 2.500€Mieteinnahme bei Neuvermietung ca. 2.500€ gesamt / Monat- 30.000€ Jahresmiete
    Nach oben scrollen