Zeitlose Eleganz trifft modernes Wohnen – Ihr Traumhaus mit allkauf individuell gestaltet

Kaufpreis 245.879 €
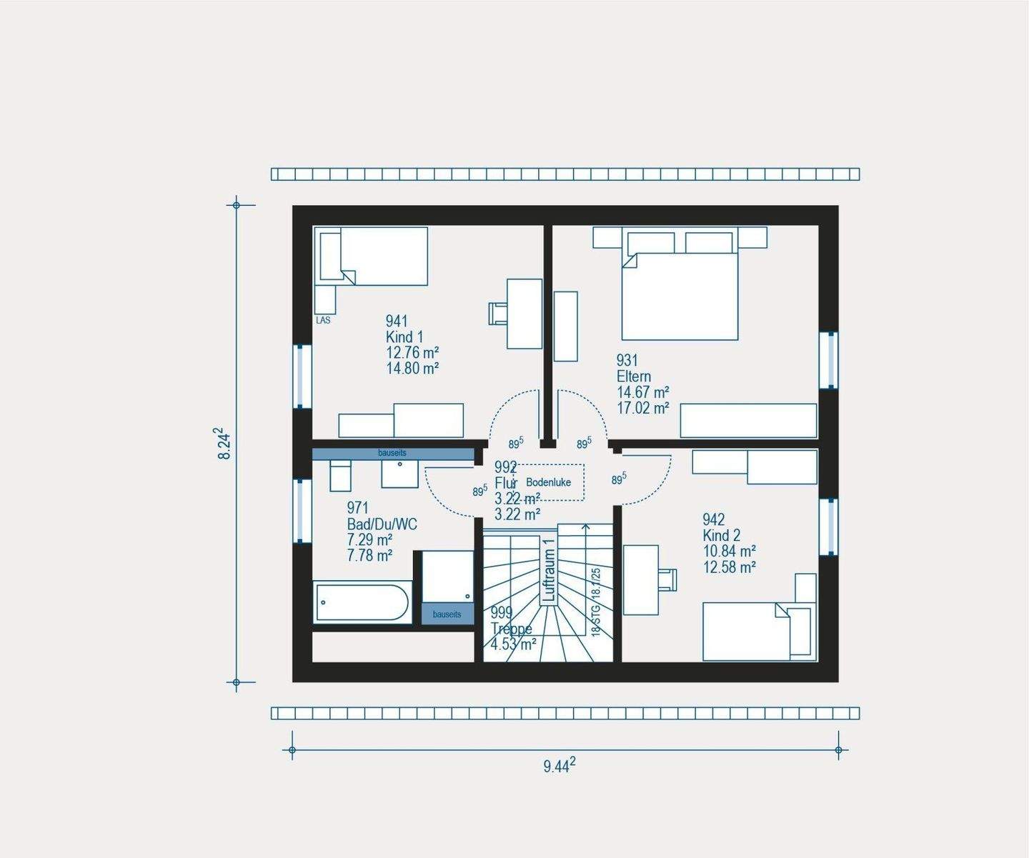
Zimmer 3
Größe 119 m²
02953 Bad Muskau

Objektdaten

Veröffentlicht am: 19. März 2026
Energieausweis: Liegt bei der Besichtigung vor
  • Objektbeschreibung

    Dieses Fertighaus besticht durch eine klassische Architektur, die mit einem clever geplanten Grundriss viel Raum für Ihre Familie, Freunde und persönliche Vorstellungen schafft. Großzügige Fensterflächen vom Boden bis zur Decke lassen reichlich Tageslicht herein und zaubern eine helle, einladende Atmosphäre, in der Sie sich sofort geborgen fühlen. Ob lebendiges Familienleben im offenen Wohn- und Essbereich oder ruhige Rückzugsorte in den privaten Räumen - das Aktionshaus PLACE 4 passt sich Ihrem Alltag flexibel an. Zahlreiche Inklusivleistungen sowie die Vorteile unserer aktuellen Sonderaktion machen den Weg zu Ihrem Eigenheim jetzt besonders attraktiv und erschwinglich.
    Nach oben scrollen