Kaufpreis 875.000 €
Zimmer 2
Größe 68 m²
25980 Sylt
Objektdaten
Veröffentlicht am: 21. März 2026
Energieausweis: Liegt bei der Besichtigung vor
Danke! Bitte bestätige Deine E-Mail-Adresse – wir haben Dir soeben eine Mail geschickt.
Es gab ein Problem beim Absenden. Bitte versuche es erneut.
Bitte bestätige Deine E-Mail-Adresse, um Updates zu erhalten.
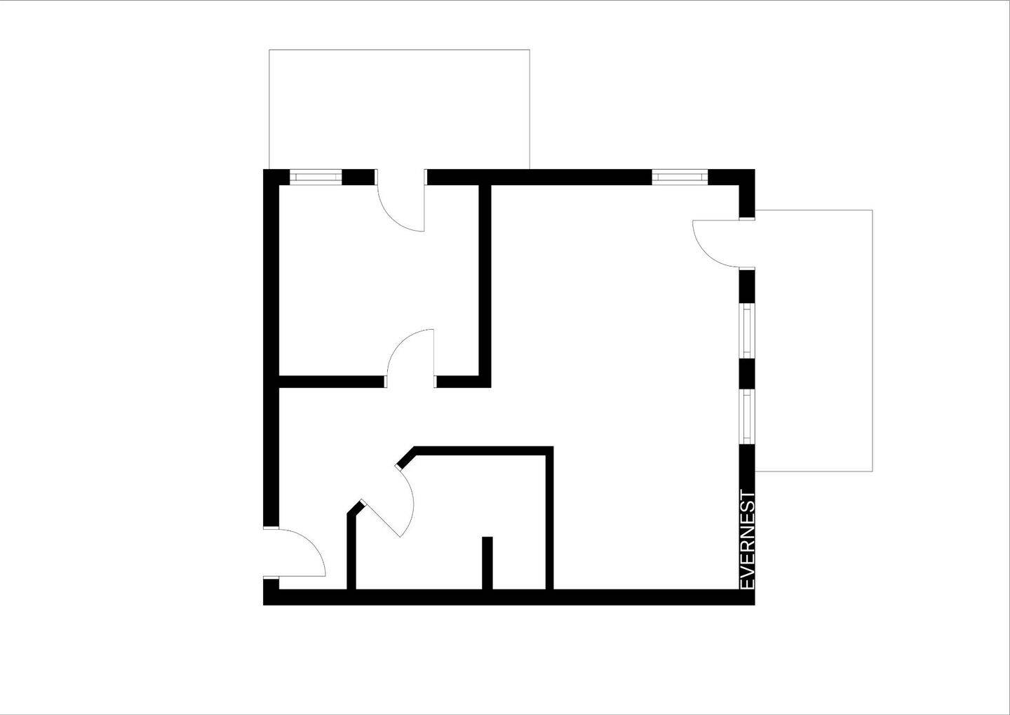
Objektbeschreibung
Diese moderne Erdgeschosswohnung in einem 2012 erbauten Apartmenthaus bietet Ihnen die perfekte Kombination aus komfortablem Wohnen und einer erstklassigen Lage in Westerland auf Sylt. Das Apartment befindet sich in einer ruhigeren, aber dennoch zentralen Lage, nur einen kurzen Spaziergang vom Strand und der Innenstadt entfernt. Hier genießen Sie sowohl die Nähe zum Meer als auch die Annehmlichkeiten der Inselhauptstadt.Die Wohnung auf einer Ebene ist großzügig geschnitten und überzeugt durch lichtdurchflutete Räume. Der helle Wohnbereich mit der offenen Küche sowie das Schlafzimmer schaffen eine einladende Atmosphäre. Das Duschbad/WC sowie der Flur runden das Angebot ab. Besonders hervorzuheben sind die beiden Terrassen, die mit direktem Zugang zu Ihrem eigenen Gartenanteil von ca. 83 qm zum Entspannen einladen.Zur Wohnung gehört ein Tiefgaragenstellplatz sowie ein separater Kellerraum, der zusätzlichen Stauraum bietet. Außerdem stehen Ihnen im Untergeschoss ein gemeinschaftlicher Fahrradkeller, eine Waschküche sowie ein Trockenraum zur Verfügung.Ein weiterer Vorteil dieser Wohnung ist die bereits hervorragende Auslastung in der Ferienvermietung. Dies macht die Wohnung besonders attraktiv für Kapitalanleger, die von der hohen Nachfrage auf Sylt profitieren möchten.Die Wohnung ist perfekt geeignet für eine Nutzung als Ferienimmobilie, aber auch für diejenigen, die das Leben auf Sylt genießen und gleichzeitig die Nähe zum Zentrum und zum Strand suchen.
So funktioniert es
- Alle neuen Anzeigen matchen wir kostenlos mit Deinen Suchparametern.
- Passende Angebote senden wir Dir in einer E-Mail pro Tag.
- Du kannst auch verschiedene Suchen anlegen und Dich jederzeit abmelden. Mehr dazu
Wir haben soeben eine E-Mail mit Deinem Suchauftrag an Dich geschickt. – Klicke in dieser Mail auf den Bestätigungslink und schon geht's los. Prüfe ggf. auch Deinen Spamordner.
Es gab ein Problem beim Absenden Deiner E-Mail-Adresse. Bitte versuche es erneut.
WARNUNG: Bitte bestätige Deine E-Mail-Adresse, um regelmäßige Updates zu erhalten.