Warmmiete 1.279 €
Zimmer 3
Größe 98 m²
32839 Steinheim
Objektdaten
Veröffentlicht am: 23. März 2026
Frei ab: 20. März 2026
Kaltmiete 979 €
Energieausweis: Liegt bei der Besichtigung vor
Danke! Bitte bestätige Deine E-Mail-Adresse – wir haben Dir soeben eine Mail geschickt.
Es gab ein Problem beim Absenden. Bitte versuche es erneut.
Bitte bestätige Deine E-Mail-Adresse, um Updates zu erhalten.
Objektbeschreibung
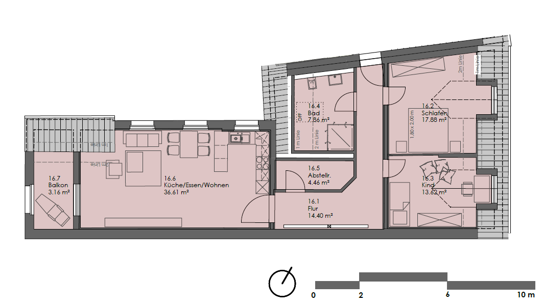
Diese hochwertig ausgestattete Dachgeschosswohnung mit ca. 100 m² Wohnfläche überzeugt durch ihren großzügigen Grundriss, moderne Ausstattung und ein angenehmes Wohnambiente.
Herzstück der Wohnung ist der offene Wohn-, Ess- und Küchenbereich, der durch große Fensterflächen sehr hell und freundlich wirkt. Die moderne Einbauküche ist bereits im Mietumfang enthalten und fügt sich harmonisch in den Wohnraum ein – ideal für gemeinsames Kochen und Wohnen.
Ein separates Schlafzimmer, ein geräumiger Flur, ein modern ausgestattetes Badezimmer sowie eine praktische Abstellkammer bieten ausreichend Platz und Stauraum für den Alltag. Ein besonderes Highlight ist der Balkon, der zusätzlichen Wohnkomfort im Außenbereich schafft.
Die im Dachgeschoss sichtbar herausgearbeiteten alten Holzbalken verleihen der Wohnung einen besonderen Charme und sorgen für eine gelungene Verbindung aus modernem Wohnen und historischem Charakter.
Die Wohnung verfügt über hochwertige Bodenbeläge, frisch ausgeführte Malerarbeiten sowie eine insgesamt helle und zeitgemäße Gestaltung.
Wohnen im Quartier am Kump
Die Bestandsgebäude werden im Bereich Wohnen auf den energetischen Standard eines Effizienzhauses 85 EE ertüchtigt. Dazu zählen Dämmmaßnahmen an Fassade und Dach, der Einbau neuer Fenster und Türen nach aktuellen energetischen Anforderungen sowie eine zukunftsorientierte Wärmeversorgung über eine Luftwärmepumpe.Wohnen im Quartier am Kump
Das Wohnen im Quartier am Kump bietet Ihnen zusätzliche Annehmlichkeiten für einen komfortablen Alltag. Unter anderem stehen Wallboxen für das Laden Ihres Elektrofahrzeugs zur Verfügung. Ergänzend profitieren Sie von den umfassenden Leistungen der KHWE, die direkt im Haus angeboten werden.
Gern stellen wir Ihnen hierzu weiteres Informationsmaterial zur Verfügung – sprechen Sie uns einfach an.
So funktioniert es
- Alle neuen Anzeigen matchen wir kostenlos mit Deinen Suchparametern.
- Passende Angebote senden wir Dir in einer E-Mail pro Tag.
- Du kannst auch verschiedene Suchen anlegen und Dich jederzeit abmelden. Mehr dazu
Wir haben soeben eine E-Mail mit Deinem Suchauftrag an Dich geschickt. – Klicke in dieser Mail auf den Bestätigungslink und schon geht's los. Prüfe ggf. auch Deinen Spamordner.
Es gab ein Problem beim Absenden Deiner E-Mail-Adresse. Bitte versuche es erneut.
WARNUNG: Bitte bestätige Deine E-Mail-Adresse, um regelmäßige Updates zu erhalten.