Objektdaten
Objektbeschreibung
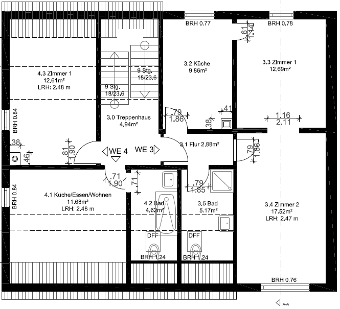
Provisionfrei!!!Diese moderne Eigentumswohnung mit ca. 77,03 m² Wohnfläche befindet sich in einer ruhigen und beliebten Wohnlage von Offenbach-Bieber. Das Gebäude wird derzeit umfassend saniert, sodass die Wohnung in rund zwei Monate in neuem Glanz fertiggestellt und bezugsfertig sein wird.Aktuell haben Sie die Möglichkeit, die Wohnung bereits jetzt zum attraktiven Kaufpreis von 260.000 € zu erwerben - noch bevor die Sanierung vollständig abgeschlossen ist. Auf Wunsch können unsere erfahrenen Partner die komplette Fertigstellung für Sie übernehmen. Damit erhalten Sie eine vollständig sanierte Wohnung im Wert von rund 300.000 €, exakt so, wie sie in den Visualisierungen dargestellt ist.Ähnliche Angebote
So funktioniert es
- Alle neuen Anzeigen matchen wir kostenlos mit Deinen Suchparametern.
- Passende Angebote senden wir Dir in einer E-Mail pro Tag.
- Du kannst auch verschiedene Suchen anlegen und Dich jederzeit abmelden. Mehr dazu




