Kaufpreis 349.000 €
Zimmer 6
Größe 187 m²
21339 Lüneburg
Objektdaten
Veröffentlicht am: 24. März 2026
Baujahr: 1896
Energieausweis: Liegt bei der Besichtigung vor
Danke! Bitte bestätige Deine E-Mail-Adresse – wir haben Dir soeben eine Mail geschickt.
Es gab ein Problem beim Absenden. Bitte versuche es erneut.
Bitte bestätige Deine E-Mail-Adresse, um Updates zu erhalten.
Objektbeschreibung
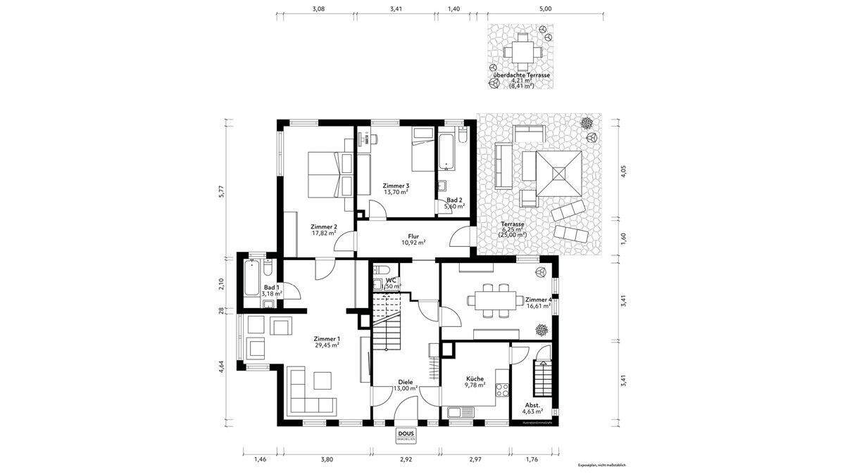
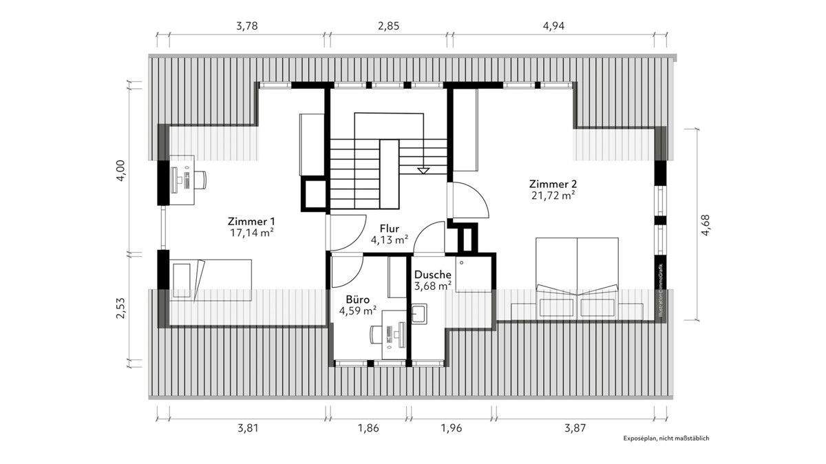
Dieses um 1900 errichtete Wohnhaus überzeugt durch seinen historischen Charme, eine großzügige Raumaufteilung und ein eingewachsenes Grundstück mit vielfältigen Nutzungsmöglichkeiten. Auf einer Wohnfläche von etwa 188 m² bietet das Haus ausreichend Platz für Familien, Mehrgenerationenwohnen oder individuelles Wohnen mit Arbeitsbereich. Das Grundstück umfasst insgesamt ca. 754 m² und bietet genügend Raum für Garten, Freizeit und Erholung.Im Erdgeschoss befinden sich vier Wohn- und Schlafzimmer, die flexibel als Wohn-, Schlaf-, Gäste- oder Arbeitsräume genutzt werden können. Die Küche verfügt über eine gemütliche Sitzgelegenheit und bildet einen zentralen Treffpunkt des Hauses. Ergänzt wird diese Etage durch zwei Badezimmer, die den Wohnkomfort im Alltag erhöhen.Das Obergeschoss erweitert das Raumangebot um zwei großzügige Zimmer, die sich ideal als Schlaf- oder Wohnräume eignen. Zusätzlich stehen hier ein Duschbad sowie ein kleiner Büroraum zur Verfügung, der sich hervorragend als Homeoffice oder ruhiger Arbeitsbereich nutzen lässt.Das Haus präsentiert sich insgesamt in einem gepflegten Zustand, weist jedoch altersbedingt Sanierungsbedarf auf. Dadurch bietet sich künftigen Eigentümern die Möglichkeit, Modernisierungsmaßnahmen nach eigenen Vorstellungen umzusetzen und den besonderen Charakter des Hauses mit zeitgemäßem Wohnkomfort zu verbinden.Durch seine solide Substanz, die großzügige Wohnfläche und das attraktive Grundstück bietet diese Immobilie viel Potenzial für Menschen, die den Charme eines Hauses aus der Jahrhundertwende schätzen und gleichzeitig Raum für individuelle Gestaltung suchen.Weitere Informationen erhalten Sie gern telefonisch oder bei einer Besichtigung.
So funktioniert es
- Alle neuen Anzeigen matchen wir kostenlos mit Deinen Suchparametern.
- Passende Angebote senden wir Dir in einer E-Mail pro Tag.
- Du kannst auch verschiedene Suchen anlegen und Dich jederzeit abmelden. Mehr dazu
Wir haben soeben eine E-Mail mit Deinem Suchauftrag an Dich geschickt. – Klicke in dieser Mail auf den Bestätigungslink und schon geht's los. Prüfe ggf. auch Deinen Spamordner.
Es gab ein Problem beim Absenden Deiner E-Mail-Adresse. Bitte versuche es erneut.
WARNUNG: Bitte bestätige Deine E-Mail-Adresse, um regelmäßige Updates zu erhalten.