Kaufpreis 344.000 €
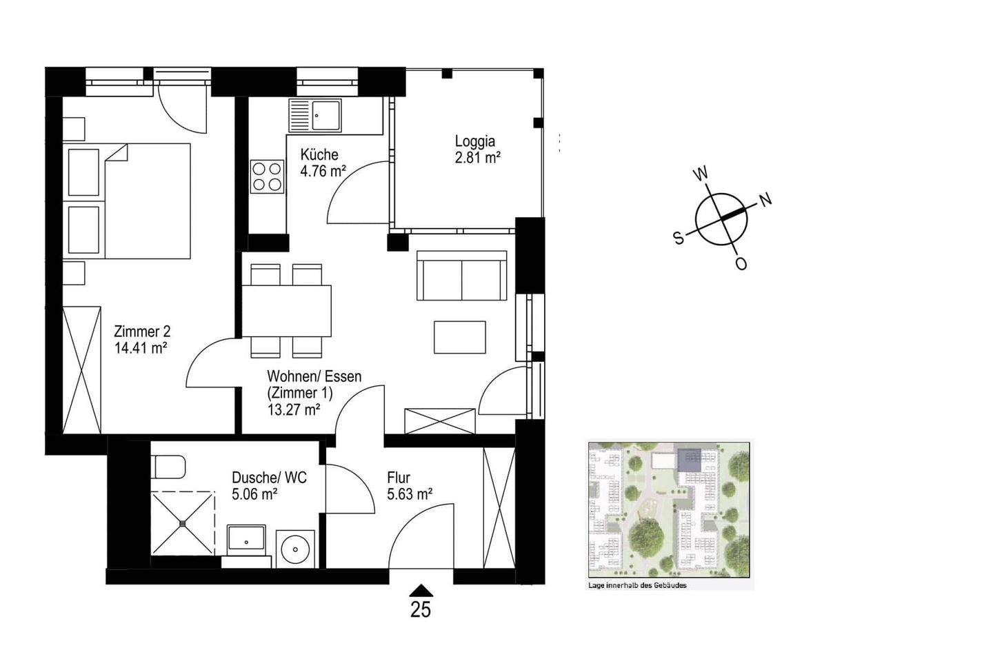
Zimmer 2
Größe 46 m²
79115 Freiburg im Breisgau
Objektdaten
Veröffentlicht am: 24. März 2026
Baujahr: 2025
Energieausweis: Liegt bei der Besichtigung vor
Danke! Bitte bestätige Deine E-Mail-Adresse – wir haben Dir soeben eine Mail geschickt.
Es gab ein Problem beim Absenden. Bitte versuche es erneut.
Bitte bestätige Deine E-Mail-Adresse, um Updates zu erhalten.
Objektbeschreibung
Kurzbeschreibung
Ihr neues Kapitel: "Drei-Ähren-Straße"
Objekt
Stellen Sie sich vor, Sie kommen nach Hause - umgeben von viel Grün, lichtdurchfluteten Räumen und einer Architektur, die modernes Wohnen mit natürlicher Lebensqualität verbindet. In Freiburg-Haslach entsteht mit der "Drei-Ähren-Straße" ein Wohnensemble, das mehr ist als ein Neubauprojekt: Es ist ein Ort zum Ankommen, Aufwachsen und Älterwerden - ein Zuhause für jede Lebensphase. Das Wohnensemble besteht aus drei Gebäuderiegel mit vier bzw. fünf Geschossen. Die klaren, zeitlosen Gebäude fügen sich harmonisch in die gewachsene Umgebung ein. Zwischen den Häusern öffnen sich geschützte, parkähnliche Freiräume - Orte der Begegnung, an denen Kinder spielen, Nachbarn ins Gespräch kommen und man einfach den Moment genießen kann. So entsteht ein lebendiges, zugleich entspanntes Wohnumfeld. Abgerundet wird das Wohnkonzept durch ein klimafreundliches Energie- und Mobilitätskonzept - nachhaltig gedacht, verantwortungsvoll umgesetzt und bereit für die Anforderungen von morgen.Die Wohnungen selbst überzeugen durch Helligkeit und Großzügigkeit. Teilweise bodentiefe Fenster holen das Tageslicht in jeden Raum und schaffen eine freundliche, offene Atmosphäre. Die durchdachten Grundrisse - von der komfortablen 2-Zimmer-Wohnung bis zur großzügigen 4-Zimmer-Familienwohnung - bieten Raum für individuelle Lebensentwürfe. Jede Wohnung verfügt über einen privaten Außenbereich: Terrassen in Erdgeschosswohnungen oder Loggien in den Obergeschosswohnungen. Drei ausgewählte Erdgeschosswohnungen verfügen darüber hinaus über einen eigenen Gartenanteil - ideal für alle, die zusätzlichen Freiraum und ein Höchstmaß an Privatsphäre schätzen. Komfort wird hier großgeschrieben: Alle Wohnungen sind bequem und barrierefrei per Aufzug erreichbar. So verbindet das Projekt modernes Design mit langfristiger Wohnqualität und einem guten Gefühl für die Zukunft. Ob Kapitalanlage oder neues Zuhause - wir nehmen uns Zeit für Ihre Wünsche und begleiten Sie kompetent und persönlich auf dem Weg zu Ihrer Entscheidung.
So funktioniert es
- Alle neuen Anzeigen matchen wir kostenlos mit Deinen Suchparametern.
- Passende Angebote senden wir Dir in einer E-Mail pro Tag.
- Du kannst auch verschiedene Suchen anlegen und Dich jederzeit abmelden. Mehr dazu
Wir haben soeben eine E-Mail mit Deinem Suchauftrag an Dich geschickt. – Klicke in dieser Mail auf den Bestätigungslink und schon geht's los. Prüfe ggf. auch Deinen Spamordner.
Es gab ein Problem beim Absenden Deiner E-Mail-Adresse. Bitte versuche es erneut.
WARNUNG: Bitte bestätige Deine E-Mail-Adresse, um regelmäßige Updates zu erhalten.