Kaufpreis 320.000 €
Zimmer 3
Größe 75 m²
12489 Berlin
Objektdaten
Veröffentlicht am: 25. März 2026
Baujahr: 1999
Energieausweis: Liegt bei der Besichtigung vor
Danke! Bitte bestätige Deine E-Mail-Adresse – wir haben Dir soeben eine Mail geschickt.
Es gab ein Problem beim Absenden. Bitte versuche es erneut.
Bitte bestätige Deine E-Mail-Adresse, um Updates zu erhalten.
Objektbeschreibung
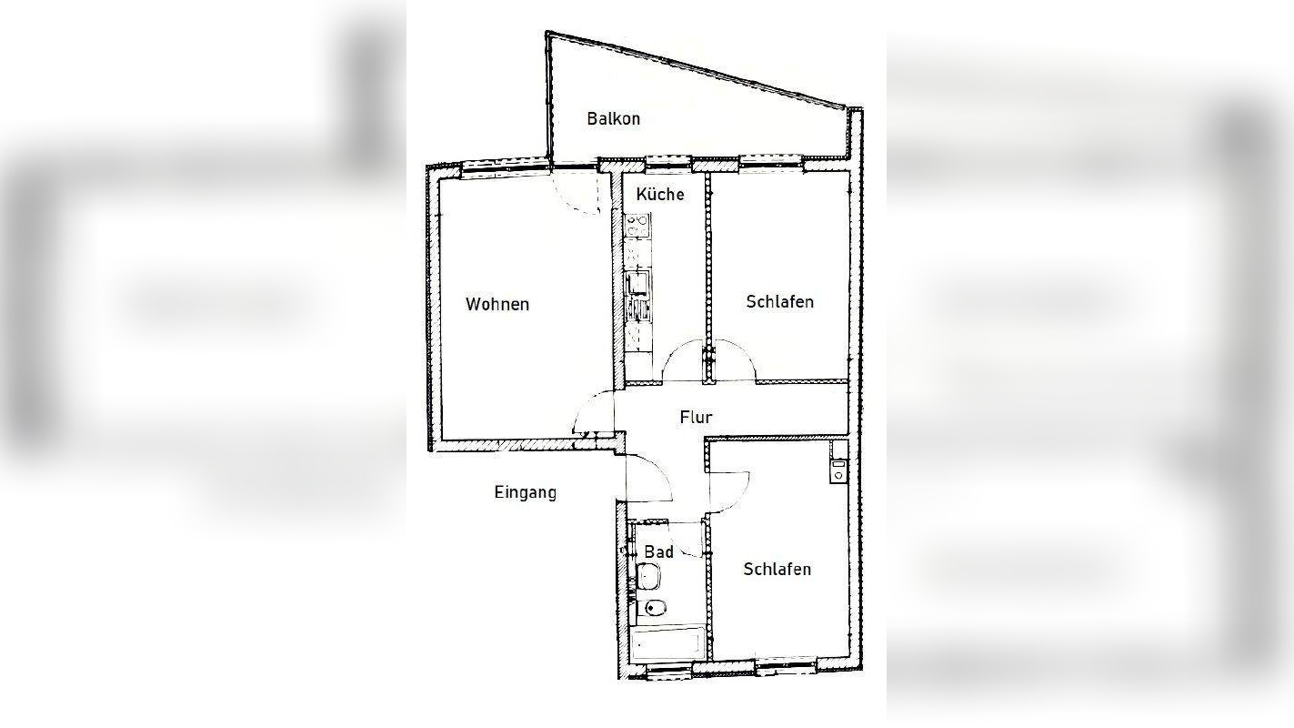
For English version please see below:Bezugsfreie 3-Zimmer Hochparterre-Wohnung in Berlin Adlershof, gelegen in einer ruhigen Wohnstraße und unweit der beliebten Dörpfeldstraße. Der Flughafen BER ist sowohl mit dem Auto als auch von der S-Bahn Station Adlershof in 17 Minuten zu erreichen. Berlin Adlershof, als wichtiger Wissenschaftsstandort, zeichnet sich nicht nur durch eine Nähe zu Landschafts- und Erholungsgebieten aus, sondern ebenfalls durch eine gute Anbindung an die Innenstadtbezirke. Selbst die Tesla Fabrik in Grünheide, Brandenburg lässt sich von dort schnell erreichen.Im Haus wurden in den letzten Jahren die Heizungsanlage komplett erneuert sowie die Balkone saniert.Die Wohnung:1 Wohnraum1 Balkon mit Süd-West-Ausrichtung2 Schlafzimmer 1 Küche1 Badezimmer 1 Flur mit Platz für eine Abstellkammer1 Keller1 PKW-StellplatzZur Ausstattung:Kunststofffenster Gefliester Boden in Küche und BadLaminatfußboden in den übrigen RäumenWände tapeziert und weiß gestrichenRaumhöhe ca. 2,50 mBalkon nach Süd-Westen und mit Blick in den ruhigen, begrünten InnenhofDer Waschmaschinenanschluß befindet sich im BadezimmerWohnungseingangstür mit SpionTreppenhaus mit Fenstern, die Böden im Treppenhaus sind aus GranitKlingel mit GegensprechanlageZu der Einheit gehört ein etwa 6 qm großer, heller, sauberer und trockener Keller mit eigener Steckdose und LichtschalterIm Haus gibt es einen FahrradkellerDas monatliche Wohngeld liegt derzeit bei 459,00 €. Der darin enthaltene Anteil der Instandhaltungsrücklage beträgt 111,77 €. Die Grundsteuer p.a. beträgt 250,92 €.Das Haus hat insgesamt 7 Wohnungen. In der angegebenen Wohnfläche von 75,98 qm ist der Balkon zu 50% mit eingerechnet. Unseren Angeboten liegen die uns von unserem Auftraggeber erteilten Auskünfte zugrunde. Die Angebote werden nach bestem Wissen und Gewissen erteilt. Eine Haftung für den Inhalt wird nicht übernommen. Die Angebote sind freibleibend und unverbindlich. Irrtum, Zwischenverkauf bzw. Zwischenvermietung bleiben vorbehalten.Sofern Ihnen eine durch uns nachgewiesene Gelegenheit im Hinblick auf das angebotene Objekt und die Bereitschaft des anderen Vertragsteils zum Abschluss eines Vertrages bereits bekannt ist, teilen Sie uns dies bitte mit. Zur Abstimmung eines Besichtigungstermin senden Sie uns gern Ihre Telefonnummer.English version:This 2-bedroom-apartment is located in Berlin Adlershof, in a quiet residential street but not far from the popular Dörpfeldstraße. The airport BER can be reached by car as well as from the S-Bahn station Adlershof in 17 minutes. Berlin Adlershof, as an important science location, is not only characterized by a proximity to landscape and recreational areas, but likewise by a good connection to the inner city districts. Even the Tesla factory in Grünheide, Brandenburg can be reached quickly from there.In recent years, the heating system in the building has been completely replaced and the balconies have been renovated.The apartment:1 living room1 balcony with south-west orientation2 bedrooms 1 kitchen1 bathroom 1 hallway with space for a storage room1 cellar1 parking-placeTo the equipment:Plastic windows Tiled floor in kitchen and bathroomLaminate flooring in the other roomsWalls wallpapered and painted whiteroom height approx. 2.50 mBalcony facing south-west and with a view of the quiet, leafy inner courtyardThe washing machine connection is in the bathroomApartment entrance door with peepholeStaircase with windows, the floors in the staircase are made of graniteDoorbell with intercomTo the unit belongs a bright, clean and dry cellar of about 6 square meters with its own socket and light sliderThere is a bicycle cellar in the houseThe monthly housing allowance is currently € 459.00.The included share of the maintenance reserve amounts to € 111.77.The property tax p.a. amounts to 250.92 €.The house has a total of 7 apartments.In the indicated living space of 75,98 sqm the balcony is included to 50%. Our offers are based on the information given to us by our client. The offers are made to the best of our knowledge and belief. We do not assume any liability for the content. The offers are subject to change and non-binding. Errors, prior sale or prior rental are reserved.If you are already aware of an opportunity proven by us with regard to the offered property and the willingness of the other party to conclude a contract, please let us know. To arrange a viewing appointment, please send us your telephone number.
So funktioniert es
- Alle neuen Anzeigen matchen wir kostenlos mit Deinen Suchparametern.
- Passende Angebote senden wir Dir in einer E-Mail pro Tag.
- Du kannst auch verschiedene Suchen anlegen und Dich jederzeit abmelden. Mehr dazu
Wir haben soeben eine E-Mail mit Deinem Suchauftrag an Dich geschickt. – Klicke in dieser Mail auf den Bestätigungslink und schon geht's los. Prüfe ggf. auch Deinen Spamordner.
Es gab ein Problem beim Absenden Deiner E-Mail-Adresse. Bitte versuche es erneut.
WARNUNG: Bitte bestätige Deine E-Mail-Adresse, um regelmäßige Updates zu erhalten.