Kaufpreis 784.108 €
Zimmer 3
Größe 160 m²
01689 Weinböhla
Objektdaten
Veröffentlicht am: 25. März 2026
Energieausweis: Liegt bei der Besichtigung vor
Danke! Bitte bestätige Deine E-Mail-Adresse – wir haben Dir soeben eine Mail geschickt.
Es gab ein Problem beim Absenden. Bitte versuche es erneut.
Bitte bestätige Deine E-Mail-Adresse, um Updates zu erhalten.
Objektbeschreibung
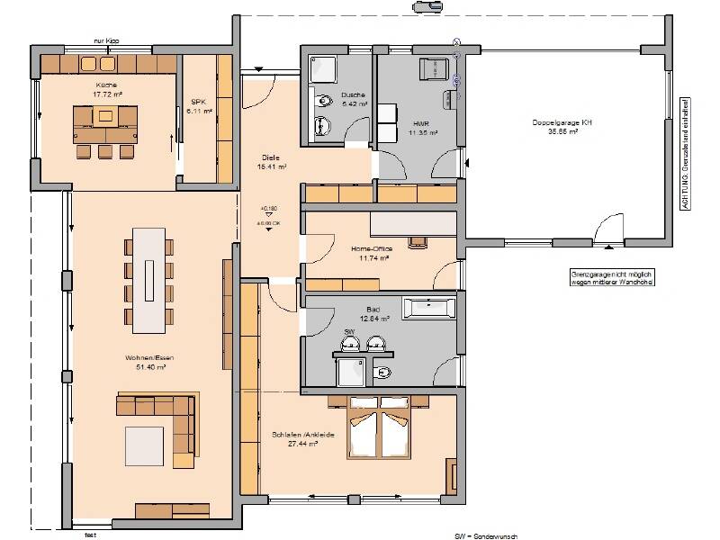
Der klar strukturierte Grundriss ermöglicht großzügiges und offenes Wohnen auf einer Ebene. Wer zur Haustür eintritt, findet sich in einer geräumigen Diele mit großer Garderobenfläche wieder. Linkerhand befindet sich ein Gäste-WC mit Dusche und der Zugang zum Hauswirtschaftsraum. Dahinter ein Home-Office, das auch als Gästezimmer genutzt werden kann. Der eigene Zugang zum Garten bietet einen besonderen Nutzen. Am Ende des Flurs befindet sich das Schlafzimmer. Seine bodentiefen Fenster ermöglichen den freien Blick ins Grüne - direkt aus dem Bett. Das Badezimmer mit Wellness-Ausstattung kann direkt aus dem Schlafzimmer betreten werden. Der rechte Teil des Bungalows, der rund 75 Quadratmeter umfasst, beherbergt einen großzügigen Wohn-Essbereich mit offener Küche. Ganz im Stil einer modernen Küche berücksichtigt der Entwurf viel Platz für eine große Kochinsel. In der direkt angrenzenden, großen Speisekammer können die Vorräte für gemeinsame kulinarische Abende mit Freunden gelagert werden. Im lichtdurchflutete Wohn- und Essbereich findet das Leben statt: Fernsehen und Musik hören, bei Kaffee oder Tee entspannt ein Buch lesen oder einfach nur den Blick durch die großen Schiebetüren nach Draußen schweifen lassen ... In den Hausentwurf integriert ist eine praktische Doppelgarage mit großem Sektionaltor. Die Garage ist mit zwei Tageslicht-Fenstern und einer Zugangstür zum Garten ausgestattet. So können in der Garage verstaute Gartengeräte ganz einfach verwendet werden. Als praktisch erweist sich die Verbindungstür von Doppelgarage zum Hauswirtschafsraum, was sich besonders beim Ausladen der Einkäufe als hilfreich erweist.Dieses Haus wird nach Ihren individuellen Wünschen geplant und ausgestattet!
So funktioniert es
- Alle neuen Anzeigen matchen wir kostenlos mit Deinen Suchparametern.
- Passende Angebote senden wir Dir in einer E-Mail pro Tag.
- Du kannst auch verschiedene Suchen anlegen und Dich jederzeit abmelden. Mehr dazu
Wir haben soeben eine E-Mail mit Deinem Suchauftrag an Dich geschickt. – Klicke in dieser Mail auf den Bestätigungslink und schon geht's los. Prüfe ggf. auch Deinen Spamordner.
Es gab ein Problem beim Absenden Deiner E-Mail-Adresse. Bitte versuche es erneut.
WARNUNG: Bitte bestätige Deine E-Mail-Adresse, um regelmäßige Updates zu erhalten.