Objektdaten
Objektbeschreibung
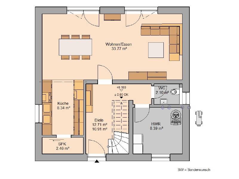
Wohngefühl pur! Die Stadtvilla begeistert die gesamte Nachbarschaft und die stolzen Bewohner fühlen sich wohl. Der großzügige Wohnbereich mit Couch und TV geht über in den Essbereich. Von hier gelangen Sie in die Küche mit zwei Zeilen. Perfekt gemacht wird der Stauraum mit einer angrenzenden Speisekammer. Zum Erdgeschoss gehören auch ein Hauswirtschaftraum und ein Gäste-WC.Das Obergeschoss des Architektenhauses erreichen Sie über die Treppe. Diese führt in zwei Kinderzimmer, ein Elternschlafzimmer und das geräumige Familienbad.Dieses Haus wird nach Ihren individuellen Wünschen geplant und ausgestattet!Ähnliche Angebote
So funktioniert es
- Alle neuen Anzeigen matchen wir kostenlos mit Deinen Suchparametern.
- Passende Angebote senden wir Dir in einer E-Mail pro Tag.
- Du kannst auch verschiedene Suchen anlegen und Dich jederzeit abmelden. Mehr dazu



