Objektdaten
Objektbeschreibung
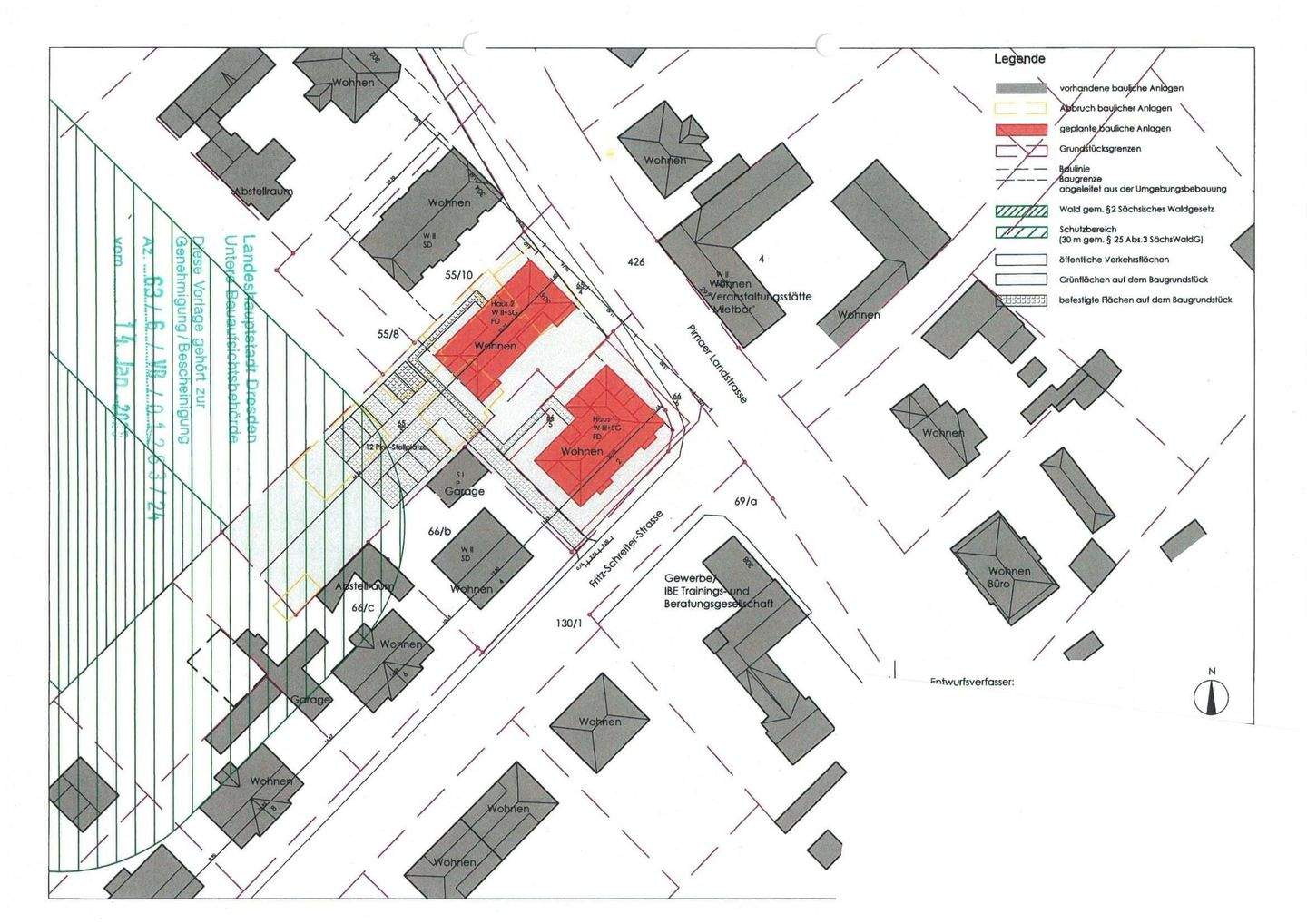
Die beiden zum Verkauf stehenden Grundstücke sind derzeit mit einem alten nicht mehr sanierungswürdigen zweigeschossigen teilunterkellerten Wohnhaus sowie einem Werkstattgebäude, einer Garage und viel Nebengelass bzw. Lager bebaut.Ein Abriss dieser Bebauung ist möglich.Für eine Neubebauung mit zwei unterkellerten Wohngebäuden und 12 PKW-Stellplätzen im Grundstück liegt seit Anfang 2025 eine positive Bauvoranfrage vor. Danach könnten in den beiden Häusern zwölf 3 und 4-R-Wohnungen, alle mit Terrassen, Balkonen oder Dachterrassen entstehen.Ähnliche Angebote
So funktioniert es
- Alle neuen Anzeigen matchen wir kostenlos mit Deinen Suchparametern.
- Passende Angebote senden wir Dir in einer E-Mail pro Tag.
- Du kannst auch verschiedene Suchen anlegen und Dich jederzeit abmelden. Mehr dazu




