Objektdaten
Objektbeschreibung
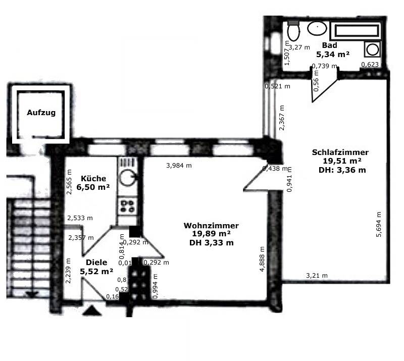
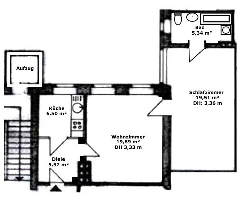
Baujahr:Altbau vom 19022021: Fassaden- und Treppenhaussanierung2022:Anbau eines neuen Fahrstuhls2024:Neue Hauseingangstür, Klingeltableau, Sisalteppich im Treppenhaus Etage:4. OGWohnfläche ca.:56 m² (gem. TE und Mietvertrag)Wohnfläche ca.:56,75 m² (gem. Aufmaß)Anzahl der Zimmer:2Deckenhöhe ca.:3,33-3,36 mFenster:HolzverbundfensterBoden:LaminatBad:mit Fenster, Wanne und FliesenZustand:EinfachHeizung:FernwärmeWarmwasser:enthalten. BoilerVermietet seit:15.04.2004Vorkaufsrecht:jaEigenbedarfskündigungsschutz:10 Jahre ab dem KaufBrutto-Kaltmiete:410,00 € (ab dem 1.7.2022)Heizkosten-VZ:60,00 €Warmmiete:472,00 €Ähnliche Angebote
So funktioniert es
- Alle neuen Anzeigen matchen wir kostenlos mit Deinen Suchparametern.
- Passende Angebote senden wir Dir in einer E-Mail pro Tag.
- Du kannst auch verschiedene Suchen anlegen und Dich jederzeit abmelden. Mehr dazu




