Objektdaten
Objektbeschreibung
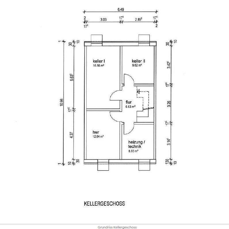
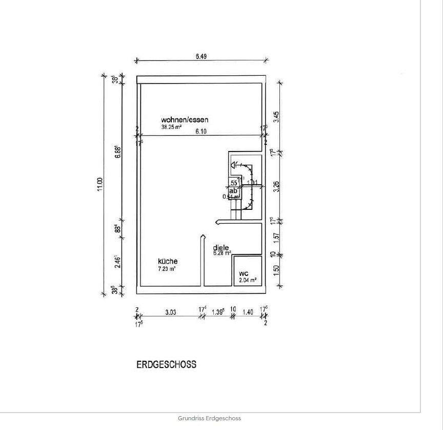
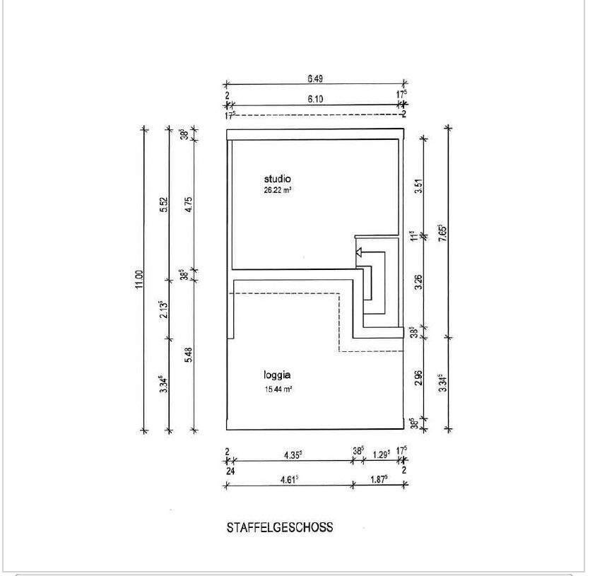
Bei dem dreistöckigen Reihenhaus handelt es sich um einenErstbezug in eine ansprechende Immobilie, die durch einegehobene Innenausstattung besticht und ist zum Verkaufprojektiert. Zu der Immobilie zählt neben fünf einladenden Zimmernauch ein separates Gäste-WC. Das Haus wird 2026 erbaut undwird per Wärmepumpe beheizt. Durch den Auto-Stellplatz, dersich direkt am Haus befindet, können Sie Ihre Wocheneinkäufeentspannt nach Hause tragen. Ebenfalls komfortabel ist derKellerraum, der Stauraum für Ihr Hab und Gut bietet. Besonderstoll ist die großzügige Grundstücksfläche von 212 Quadratmetern, die Ihnen im Sommer zu einem regelrechtenOutdoor-Zimmer werden kann.Ähnliche Angebote
So funktioniert es
- Alle neuen Anzeigen matchen wir kostenlos mit Deinen Suchparametern.
- Passende Angebote senden wir Dir in einer E-Mail pro Tag.
- Du kannst auch verschiedene Suchen anlegen und Dich jederzeit abmelden. Mehr dazu




