Kaufpreis 125.000 €
Zimmer 8
Größe 350 m²
84371 Triftern
Objektdaten
Veröffentlicht am: 25. März 2026
Energieausweis: Liegt bei der Besichtigung vor
Danke! Bitte bestätige Deine E-Mail-Adresse – wir haben Dir soeben eine Mail geschickt.
Es gab ein Problem beim Absenden. Bitte versuche es erneut.
Bitte bestätige Deine E-Mail-Adresse, um Updates zu erhalten.
Objektbeschreibung
Kurzbeschreibung
Renovierungsbedürftig, WG geeignet und mit üppiger Wohnfläche
Objekt
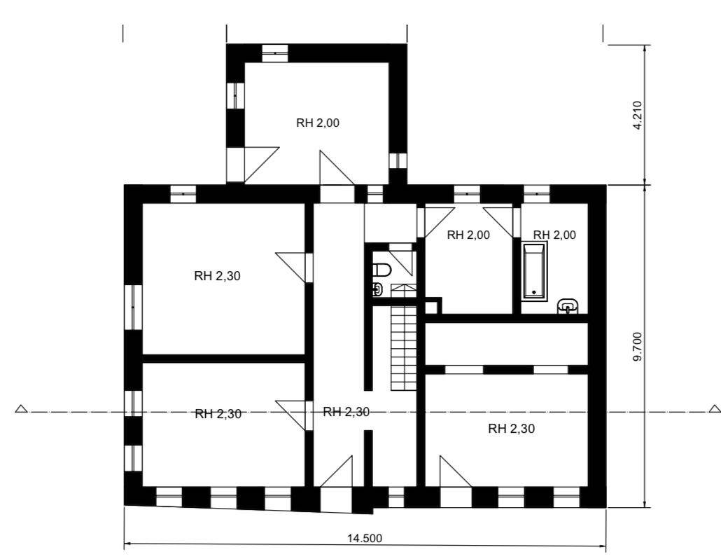
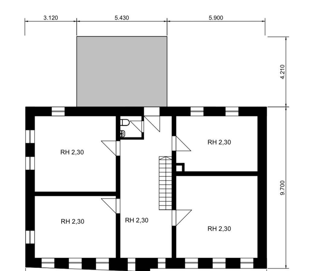
Sie träumen vom einfachen Landleben in unverbaubarer Ortsrandlage? Sie können sich handwerklich helfen und verfügen über ausreichend Phantasie, etwas Einzigartiges zu erschaffen? Dann sind Sie angekommen. Dieses Gebäude wurde in zwei Bauabschnitten vor ca. 250 bzw. 300 Jahren mit den damals üblichen Baustoffen errichtet. Der Baukörper mit 14 x 9,70 Metern Grundfläche ist solide, bereits entkernt und kann nach eigenen Ideen und Vorstellungen neu aufgebaut werden. Die Substanz ist gut und solide. Das ausbaubare Dachgeschoss bietet Ihnen zusätzliche Nutzungsnöglichkeiten. Das Dach selbst und der Dachstuhl wurden vor ca. 15 Jahren neu erstellt. Das sollte Ihnen eine trockene und entspannte Umbauphase sichern. Strom- und Wasseranschlüsse sind noch intakt und auf dieser Basis können Sie Schritt für Schritt die Verwirklichung Ihres Traums vom Landleben angehen. Die zur Verfügung stehende Fläche bietet Ihnen auch die Gelegenheit, als Basis für eine Alters-WG, eine Eigentümergemeinschaft oder auch für eine große Familie als Wohnraum zu dienen. Wenn Sie die Sanierungskosten ggf. auf mehrere Schultern verteilen können, sollte der anstehende Kostenrahmen umso leichter zu schultern sein. Einige Räume sind durchaus noch bewohnbar und so können Sie Ihre Ausbaupläne nach und nach verwirklichen. Da es sich hierbei um ein seit längerem unbewohntes Sanierungsobjekt handelt, können wir Ihnen logischerweise keinen Energieausweis vorlegen. Den sollte der zukünftige Eigentümer nach erfolgtem Umbau und der Installation einer für ihn geeigneten Heizanlage selbst erstellen lassen. Die einzigartige Lage am Ortsrand mit eigenem Bachlauf und angrenzendem Naturschutzgebiet, sowie das überschaubar große Grundstück werden Ihnen vom ersten Moment an das Gefühl von Ruhe und Freiheit vermitteln.Und noch ein wichtiger Hinweis: Im Hinblick auf die unverändert undurchsichtige Zins- und Banken-Lage, wo man die jüngsten Zinssenkungen der EZB nur zögerlich oder auch gar nicht an die Kunden weitergibt, können wir Ihnen über einen Pool aus deutschlandweit tätigen Kreditinstituten hochinteressante Finanzierungskonditionen anbieten. Ein Vergleich, der für Sie bares Geld wert sein kann. Testen Sie uns!
So funktioniert es
- Alle neuen Anzeigen matchen wir kostenlos mit Deinen Suchparametern.
- Passende Angebote senden wir Dir in einer E-Mail pro Tag.
- Du kannst auch verschiedene Suchen anlegen und Dich jederzeit abmelden. Mehr dazu
Wir haben soeben eine E-Mail mit Deinem Suchauftrag an Dich geschickt. – Klicke in dieser Mail auf den Bestätigungslink und schon geht's los. Prüfe ggf. auch Deinen Spamordner.
Es gab ein Problem beim Absenden Deiner E-Mail-Adresse. Bitte versuche es erneut.
WARNUNG: Bitte bestätige Deine E-Mail-Adresse, um regelmäßige Updates zu erhalten.