Kaufpreis 595.000 €
Zimmer 3
Größe 85 m²
87459 Pfronten
Objektdaten
Veröffentlicht am: 25. März 2026
Baujahr: 2025
Energieausweis: Liegt bei der Besichtigung vor
Danke! Bitte bestätige Deine E-Mail-Adresse – wir haben Dir soeben eine Mail geschickt.
Es gab ein Problem beim Absenden. Bitte versuche es erneut.
Bitte bestätige Deine E-Mail-Adresse, um Updates zu erhalten.
Objektbeschreibung
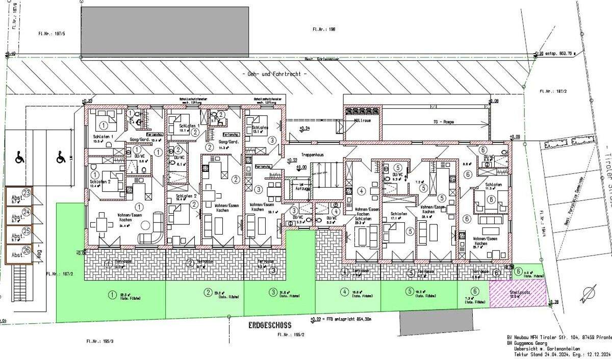
Wohnung mit Möglichkeit zur Nutzung als Ferienwohnung.Auf Wunsch kümmert sich eine Agentur für Sie um die Organisation oder EinrichtungTreten Sie ein in eine Welt, in der modernes Design und durchdachte Raumaufteilung miteinander verschmelzen. Diese exklusive Erdgeschosswohnung besticht mit einer großzügigen Wohnfläche von 85,24 m² und bietet Ihnen das perfekte Umfeld für zeitgemäßes Wohnen. Sieben intelligent gestaltete Zimmer sorgen dafür, dass jeder Bereich seinen eigenen, harmonischen Platz findet. Zwei stilvolle Schlafzimmer laden zum Träumen ein, während der weitläufige Wohnbereich den idealen Rückzugsort für entspannte Abende oder gesellige Zusammenkünfte bietet.Erleben Sie Komfort auf höchstem Niveau, beginnend mit einer Fußbodenheizung, die für angenehme Wärme sorgt und über eine umweltfreundliche Luft/Wasser-Wärmepumpe betrieben wird. Ein modernes Badezimmer und ein separates WC bieten Ihnen zusätzlichen Komfort und Funktionalität. Die offene Raumgestaltung verleiht der Wohnung eine angenehme Leichtigkeit und lässt viel Raum für individuelle Gestaltungsideen. Das Highlight der Wohnung ist die einladende Terrasse, die nahtlos in den Wohnbereich übergeht und Ihnen einen Platz im Freien bietet, um die frische Luft zu genießen. Der Zustand als Erstbezug garantiert Ihnen nicht nur eine makellose Ausstattung, sondern auch die modernsten Standards in Sachen Energieeffizienzklasse A. Dies ist nicht nur ein Zuhause, sondern ein Ort, der durch Stil, Qualität und Nachhaltigkeit besticht.
So funktioniert es
- Alle neuen Anzeigen matchen wir kostenlos mit Deinen Suchparametern.
- Passende Angebote senden wir Dir in einer E-Mail pro Tag.
- Du kannst auch verschiedene Suchen anlegen und Dich jederzeit abmelden. Mehr dazu
Wir haben soeben eine E-Mail mit Deinem Suchauftrag an Dich geschickt. – Klicke in dieser Mail auf den Bestätigungslink und schon geht's los. Prüfe ggf. auch Deinen Spamordner.
Es gab ein Problem beim Absenden Deiner E-Mail-Adresse. Bitte versuche es erneut.
WARNUNG: Bitte bestätige Deine E-Mail-Adresse, um regelmäßige Updates zu erhalten.