Objektdaten
Objektbeschreibung
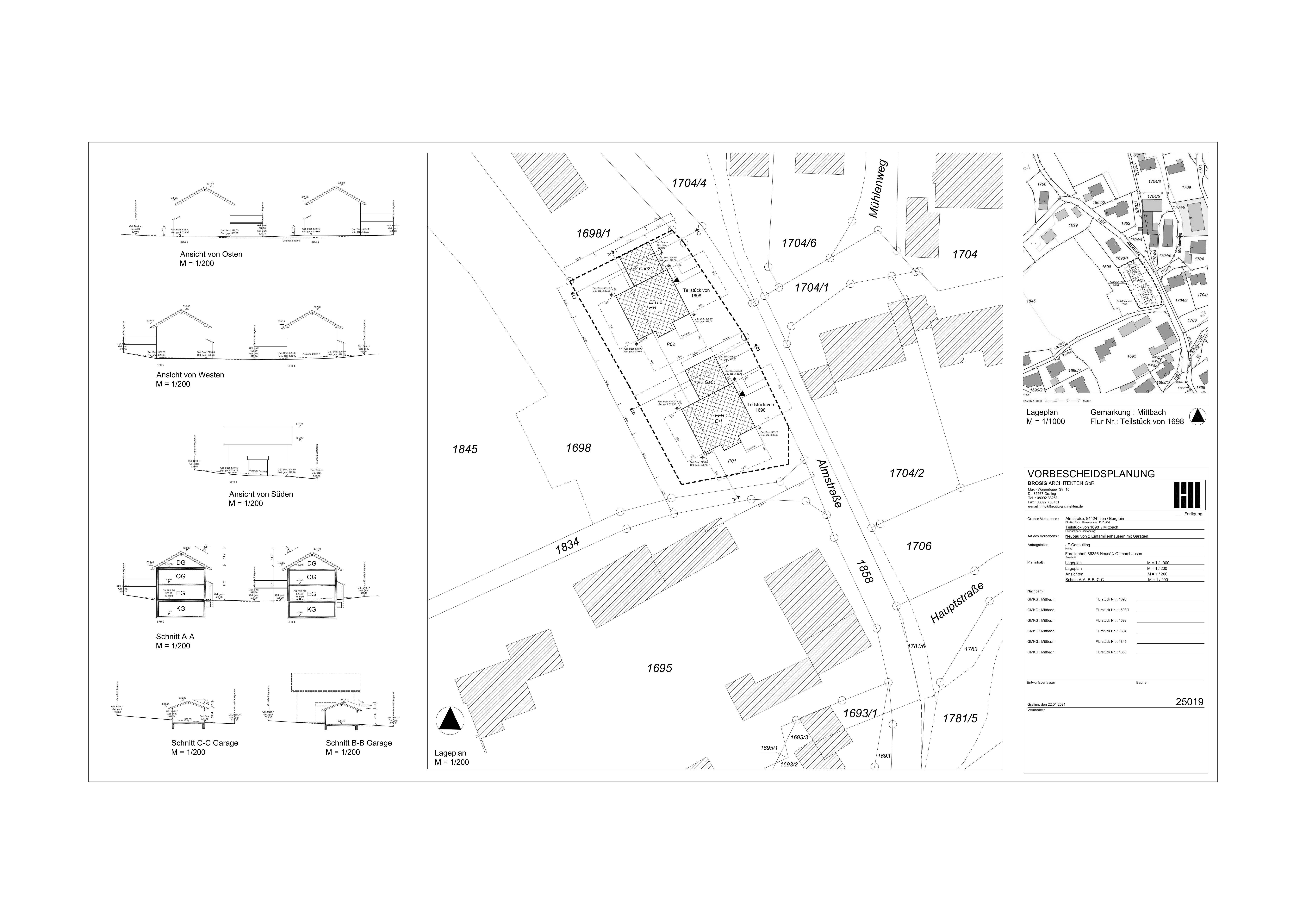
Exklusiv zum Verkauf steht hier ein knapp 13.000 m² Grundstück in absolut ruhiger & leichter Hanglage. Das Grundstück setzt sich aus zwei Flurstücken zusammen:- Flurstück 1698 mit annähernd 2.400 m² ist Bauland und könnte mit zwei großzügigen Einfamilienhäusern (zwei Vollgeschosse plus Dachgeschoss) bebaut werden. Hierfür liegt bereits ein genehmigter Vorbescheid vor.- Flurstück 1845 mit 10.580 m² ist derzeit landwirtschaftliche Fläche. Das diese Fläche als Bauland ausgewiesen wird ist aus unserer Sicht eine Frage der Zeit, da es sich hierbei um eine Ortsabrundung handeln würde.Der Ort Burgrain besteht überwiegend aus Einfamilien- & Doppelhäusern.So funktioniert es
- Alle neuen Anzeigen matchen wir kostenlos mit Deinen Suchparametern.
- Passende Angebote senden wir Dir in einer E-Mail pro Tag.
- Du kannst auch verschiedene Suchen anlegen und Dich jederzeit abmelden. Mehr dazu




