Kaufpreis 190.000 €
16727 Oberkrämer
Objektdaten
Veröffentlicht am: 25. März 2026
Danke! Bitte bestätige Deine E-Mail-Adresse – wir haben Dir soeben eine Mail geschickt.
Es gab ein Problem beim Absenden. Bitte versuche es erneut.
Bitte bestätige Deine E-Mail-Adresse, um Updates zu erhalten.
Objektbeschreibung
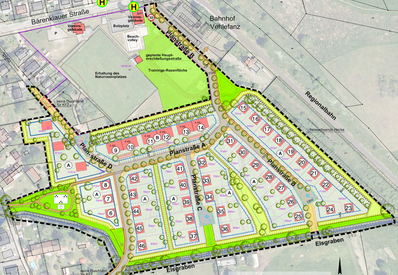
In diesem Areal entstehen über 40 individuelle Baugrundstücke mit unterschiedlichen Größen und Schnitten zur Bebauung Ihres Traumhauses.Die Grundstücksgrößen variieren zwischen ca. 700 qm und ca. 1.205 qm.Entsprechend dem Bebauungsplan Nr. 82/2022 „Schäferweg / Koppehof – am Bahnhof“ der Gemeinde Oberkrämer können die Grundstücke im Bauanzeigeverfahren bebaut werden. Das zeit- und kostenaufwendige Genehmigungsverfahren vereinfacht sich und verkürzt die Bauzeit somit erheblich.Im Gebiet A können Einfamilienhäuser auch als Stadtvillen mit ggf. einer kleinen Einliegerwohnung bei maximal 2 Vollgeschossen und unter Berücksichtigung einer Grundflächenzahl (GRZ) von 0,25 errichtet werden.Im Gebiet B können Mehrfamilienhäuser als Einzel- oder Doppelhaus mit maximal 3 Vollgeschossen und unter Berücksichtigung eine GRZ von 0,3 errichtet werden.Die Grundstücke sind werden voll erschlossen verkauft. Alle Medien werden auf die jeweiligen Grundstücke gelegt.Die Grundstücke werden außerdem bauträgerfrei und provisionsfrei angeboten.Der Grundstückspreis beträgt 250,00 Euro pro qm zuzüglich einmaliger Erschließungskostenpauschale in Höhe von 15.000,00 Euro.Beispiel 1:Grundstück Nr. 40: 700 qm x 250,00 Euro = 175.000,00 Euro + 15.000,00 Euro = 190.000,00 Euro (Gesamtkaufpreis) Beispiel 2:- Grundstück Nr. 46: 816 qm x 250,00 Euro = 204.000,00 Euro + 15.000,00 Euro = 219.000,00 Euro (Gesamtkaufpreis)Wir haben Ihr Interesse geweckt und sie möchten mehr erfahren, dann zögern Sie bitte nicht uns zu kontaktieren und vereinbaren Sie ein kostenloses Beratungsgespräch.Sichern Sie sich schon heute Ihr Wunschgrundstück mit einer Reservierung!
So funktioniert es
- Alle neuen Anzeigen matchen wir kostenlos mit Deinen Suchparametern.
- Passende Angebote senden wir Dir in einer E-Mail pro Tag.
- Du kannst auch verschiedene Suchen anlegen und Dich jederzeit abmelden. Mehr dazu
Wir haben soeben eine E-Mail mit Deinem Suchauftrag an Dich geschickt. – Klicke in dieser Mail auf den Bestätigungslink und schon geht's los. Prüfe ggf. auch Deinen Spamordner.
Es gab ein Problem beim Absenden Deiner E-Mail-Adresse. Bitte versuche es erneut.
WARNUNG: Bitte bestätige Deine E-Mail-Adresse, um regelmäßige Updates zu erhalten.