ZU VERKAUFEN | 1,5 Zimmer auf 49,95qm | Balkon & Stellplatz | meroplan Immobilien GmbH

Kaufpreis 139.500 €
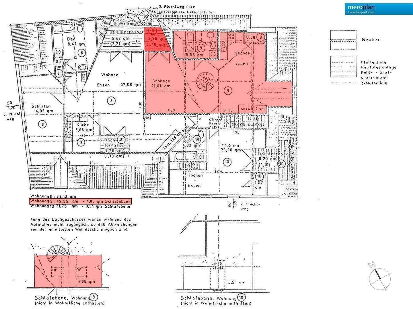
Zimmer 2
Größe 49 m²
99423 Weimar

Objektdaten

Veröffentlicht am: 25. März 2026
Baujahr: 1928
Energieausweis: Liegt bei der Besichtigung vor
  • Objektbeschreibung

    Nach oben scrollen